Для студентов МГТУ им. Н.Э.Баумана по предмету Проектирование технологических комплексов механосборочного производства (МТ-3)Технологический комплекс производства деталей насосовТехнологический комплекс производства деталей насосов
5,0051
2021-07-132021-07-13СтудИзба
Курсовая работа: Технологический комплекс производства деталей насосов
-50%
Описание
Характеристики курсовой работы
Учебное заведение
Просмотров
37
Размер
8,49 Mb
Список файлов
22
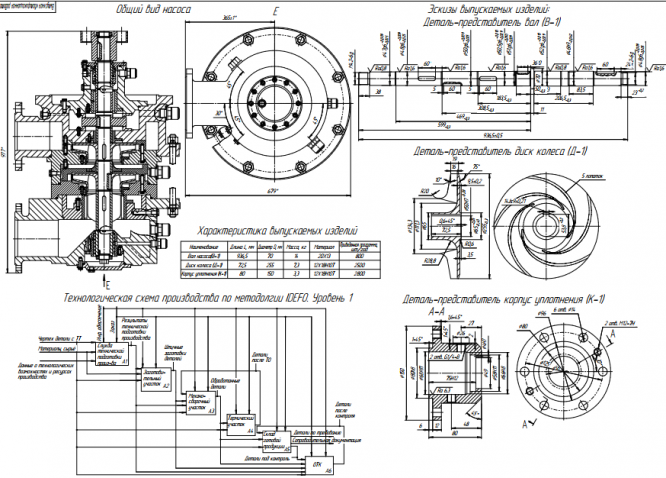
Лист 1 - Анализ исходных данных.pdf
Лист 2 - МТП корпуса уплотнения_1.pdf
Лист 3 - МТП корпуса уплотнения_2.pdf
Лист 4 - ОТП корпуса уплотнения.pdf
Лист 5 - Экономическая часть.pdf
Лист 6 - НИР_1.pdf
Лист 7 - НИР_2.pdf
Лист 8 - Станочное приспособление.pdf
Лист 9 - Сборка корпуса и ротора.pdf
Лист 10 - Варианты компоновочных схем.pdf
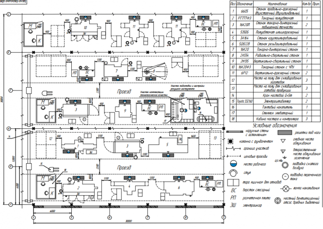
Лист 11 - Компоновочный план цеха.pdf
Лист 12 - Планировка производственных участков.pdf
Лист 13 - Планировка вспомогательных участков.pdf
Лист 14 - Стенд.pdf
РПЗ.pdf

МГТУ им. Н.Э.Баумана



















