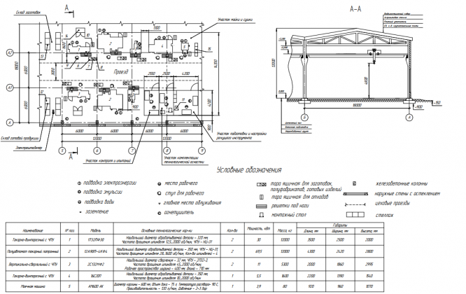
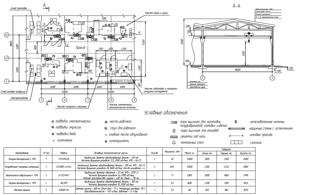
Для студентов МГТУ им. Н.Э.Баумана по предмету Проектирование технологических комплексов механосборочного производства (МТ-3)Разработка участка механической обработки цеха по изготовлению втулок и разработка контрольного приспособленияРазработка участка механической обработки цеха по изготовлению втулок и разработка контрольного приспособления
5,0051
2021-06-272021-06-27СтудИзба
Курсовая работа: Разработка участка механической обработки цеха по изготовлению втулок и разработка контрольного приспособления
Описание
Разработка участка механической обработки цеха по изготовлению втулок и разработка контрольного приспособления
![]()

Характеристики курсовой работы
Учебное заведение
Просмотров
32
Размер
2,79 Mb
Список файлов
Курсовой проект на тему Разработка механического участка изготовления втулок
Анализ исходных данных.pdf
МТП.pdf
ОТП.pdf
Планировка.pdf
Приспособление.pdf
РПЗ.pdf
МГТУ им. Н.Э.Баумана



















