Для студентов МГТУ им. Н.Э.Баумана по предмету ПрактикаОтчет по практике (Рычаг)Отчет по практике (Рычаг)
4,8859085
2023-08-21СтудИзба

Отчёт по практике: Отчет по практике (Рычаг)

Описание

ИНДИВИДУАЛЬНОЕ ЗАДАНИЕ
Используя полученные знания на учебной практике по «Автоматизации
инженерной деятельности» из приведенной прорисовки детали создать плоский сборочный чертеж, чертеж деталей и спецификацию. Предоставить отчет по проделанной работе, оформленный согласно требованиям ГОСТ 7.32-2017.

РЕФЕРАТ
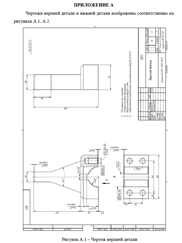
Отчет 19 с., 4 рис., 8 источн., 3 прил.
3D модель, автоматизированное проектирование, сборочный чертеж,
чертеж детали.
Объектом разработки является сборочный чертеж.
Основная цель практики - составить сборочный чертеж и спецификацию к нему в системе автоматизированного проектирования, рассмотреть сам процесс проектирования, разработать 3D модель заданной детали в САПР Autodesk Inventor.

ВВЕДЕНИЕ
Необразмеренная деталь – сборочная единица. В соответствии с ГОСТ
2.101-68 сборочная единица – изделие, составные части которого подлежат соединению между собой на предприятии - изготовителе сборочными операциями.
Одним из этапов проектирования любых изделий является разработка
рабочей документации, в состав которой входят чертежи составных частей рукоятки и ее сборочный чертеж.
Другим документом, сопровождающим любую сборочную единицу,
является спецификация.


Характеристики отчёта по практике

Предмет
Учебное заведение
Семестр
Теги
Просмотров
1
Размер
1,47 Mb

Список файлов

Отчет по практике (Рычаг)
Верхняя деталь.pdf
Нижняя деталь.pdf
Отчет по практике.pdf
Рычаг - СБ.pdf
Рычаг - Спецификация.pdf
Обратите внимание, что данная работа уже сдавалась в МГТУ им. Н.Э.Баумана, а также её могли покупать другие студенты, поэтому её уникальность может быть нулевой. Для получения уникальной работы воспользуйтесь услугами.
Картинка-подпись
НОВИНКА: отчеты по практикам! Поиск - по названию предприятия в тэге. База учебных материалов МГТУ им. Н.Э. Баумана в формате pdf, оригиналы файлов отсутствуют (если иное не оговорено в описании). Вопросы задавайте ДО покупки в комментариях под файлами.

Комментарии

Нет комментариев
Стань первым, кто что-нибудь напишет!
Поделитесь ссылкой:
Цена: 450 руб.
Расширенная гарантия +3 недели гарантии, +10% цены
Рейтинг автора
4,88 из 5
Поделитесь ссылкой:
Сопутствующие материалы

Подобрали для Вас услуги

-20%
Вы можете использовать отчёт для примера, а также можете ссылаться на неё в своей работе. Авторство принадлежит автору работы, поэтому запрещено копировать текст из этой работы для любой публикации, в том числе в свой отчёт в учебном заведении, без правильно оформленной ссылки. Читайте как правильно публиковать ссылки в своей работе.
Свежие статьи
Популярно сейчас
Зачем заказывать выполнение своего задания, если оно уже было выполнено много много раз? Его можно просто купить или даже скачать бесплатно на СтудИзбе. Найдите нужный учебный материал у нас!
Ответы на популярные вопросы
Да! Наши авторы собирают и выкладывают те работы, которые сдаются в Вашем учебном заведении ежегодно и уже проверены преподавателями.
Да! У нас любой человек может выложить любую учебную работу и зарабатывать на её продажах! Но каждый учебный материал публикуется только после тщательной проверки администрацией.
Вернём деньги! А если быть более точными, то автору даётся немного времени на исправление, а если не исправит или выйдет время, то вернём деньги в полном объёме!
Да! На равне с готовыми студенческими работами у нас продаются услуги. Цены на услуги видны сразу, то есть Вам нужно только указать параметры и сразу можно оплачивать.
Отзывы студентов
Ставлю 10/10
Все нравится, очень удобный сайт, помогает в учебе. Кроме этого, можно заработать самому, выставляя готовые учебные материалы на продажу здесь. Рейтинги и отзывы на преподавателей очень помогают сориентироваться в начале нового семестра. Спасибо за такую функцию. Ставлю максимальную оценку.
Лучшая платформа для успешной сдачи сессии
Познакомился со СтудИзбой благодаря своему другу, очень нравится интерфейс, количество доступных файлов, цена, в общем, все прекрасно. Даже сам продаю какие-то свои работы.
Студизба ван лав ❤
Очень офигенный сайт для студентов. Много полезных учебных материалов. Пользуюсь студизбой с октября 2021 года. Серьёзных нареканий нет. Хотелось бы, что бы ввели подписочную модель и сделали материалы дешевле 300 рублей в рамках подписки бесплатными.
Отличный сайт
Лично меня всё устраивает - и покупка, и продажа; и цены, и возможность предпросмотра куска файла, и обилие бесплатных файлов (в подборках по авторам, читай, ВУЗам и факультетам). Есть определённые баги, но всё решаемо, да и администраторы реагируют в течение суток.
Маленький отзыв о большом помощнике!
Студизба спасает в те моменты, когда сроки горят, а работ накопилось достаточно. Довольно удобный сайт с простой навигацией и огромным количеством материалов.
Студ. Изба как крупнейший сборник работ для студентов
Тут дофига бывает всего полезного. Печально, что бывают предметы по которым даже одного бесплатного решения нет, но это скорее вопрос к студентам. В остальном всё здорово.
Спасательный островок
Если уже не успеваешь разобраться или застрял на каком-то задание поможет тебе быстро и недорого решить твою проблему.
Всё и так отлично
Всё очень удобно. Особенно круто, что есть система бонусов и можно выводить остатки денег. Очень много качественных бесплатных файлов.
Отзыв о системе "Студизба"
Отличная платформа для распространения работ, востребованных студентами. Хорошо налаженная и качественная работа сайта, огромная база заданий и аудитория.
Отличный помощник
Отличный сайт с кучей полезных файлов, позволяющий найти много методичек / учебников / отзывов о вузах и преподователях.
Отлично помогает студентам в любой момент для решения трудных и незамедлительных задач
Хотелось бы больше конкретной информации о преподавателях. А так в принципе хороший сайт, всегда им пользуюсь и ни разу не было желания прекратить. Хороший сайт для помощи студентам, удобный и приятный интерфейс. Из недостатков можно выделить только отсутствия небольшого количества файлов.
Спасибо за шикарный сайт
Великолепный сайт на котором студент за не большие деньги может найти помощь с дз, проектами курсовыми, лабораторными, а также узнать отзывы на преподавателей и бесплатно скачать пособия.
Популярные преподаватели
Добавляйте материалы
и зарабатывайте!
Продажи идут автоматически
6989
Авторов
на СтудИзбе
262
Средний доход
с одного платного файла
Обучение Подробнее
{user_main_secret_data}