Для студентов МГТУ им. Н.Э.Баумана по предмету ПрактикаОтчет по производственной практике (ПАО "РУСПОЛИМЕТ")Отчет по производственной практике (ПАО "РУСПОЛИМЕТ")
4,8858636
2023-08-202023-08-20СтудИзба
Отчёт по практике: Отчет по производственной практике (ПАО "РУСПОЛИМЕТ")
Описание

ВВЕДЕНИЕ
Целью эксплуатационной практики является ознакомление с производством ПАО «Русполимет», а также изучение работы завода.
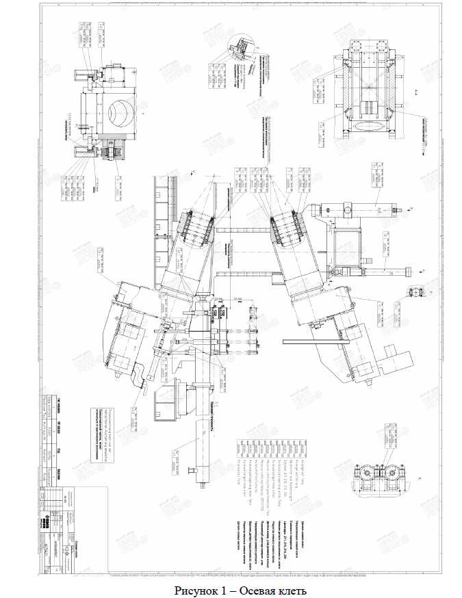
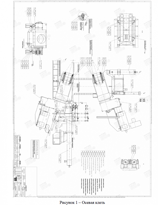
Основной задачей практики является ознакомление с общим устройством завода и кольцепрокатным цехом в частности. Ознакомление с выпускаемой продукцией и способами её получения.

Характеристики отчёта по практике
Предмет
Учебное заведение
Теги
Просмотров
2
Размер
5,42 Mb
Список файлов
Отчет по производственной практике (ПАО РУСПОЛИМЕТ).pdf

НОВИНКА: отчеты по практикам! Поиск - по названию предприятия в тэге. База учебных материалов МГТУ им. Н.Э. Баумана в формате pdf, оригиналы файлов отсутствуют (если иное не оговорено в описании). Вопросы задавайте ДО покупки в комментариях под файлами.