Для студентов МГТУ им. Н.Э.Баумана по предмету ПрактикаОтчет по практике (АО "ММЗ "Авангард" - Станина станка)Отчет по практике (АО "ММЗ "Авангард" - Станина станка)
4,8858747
2023-08-172023-08-17СтудИзба
Отчёт по практике: Отчет по практике (АО "ММЗ "Авангард" - Станина станка)
Описание

Индивидуальное задание.
Анализ заданных элементов.
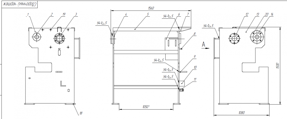
Элемент станка – станина.
Деталь «Станина» состоит из поверхности простой геометрической формы, имеются отверстия высокой точности исполнения под резьбу, позволяющие произвести достаточно точное базирование готовой детали в сборке.
Деталь имеет большую массу и габариты, что не позволяет загрузку и разгрузку ее без применения подъемно-транспортных средств.
Деталь является технологичной, так как станину возможно собрать уже на месте непосредственной эксплуатации будущего станка, поскольку большинство ее составляющих свариваются в сборе.
Станина состоит из нескольких деталей. Большая часть деталей собирается посредством сварки, и при поломке одной из составляющих, её автономная замена не представляется возможной. В данном случае необходимо заменить весь элемент станка. Так же к станине при помощи болтов крепятся крышки под подшипники.
Фрагмент сборочного чертежа:

Характеристики отчёта по практике
Предмет
Учебное заведение
Семестр
Теги
Просмотров
3
Размер
2,66 Mb
Список файлов
Отчет по практике (АО ММЗ Авангард - Станина станка).pdf
Отчет по практике (АО ММЗ Авангард - Станина станка - СБ).pdf

НОВИНКА: отчеты по практикам! Поиск - по названию предприятия в тэге. База учебных материалов МГТУ им. Н.Э. Баумана в формате pdf, оригиналы файлов отсутствуют (если иное не оговорено в описании). Вопросы задавайте ДО покупки в комментариях под файлами.