Для студентов МГТУ им. Н.Э.Баумана по предмету Подъёмно-транспортные машины (ПТМ)ПТМ 04 вариант 2 (Курсовой проект) [Белоусов]ПТМ 04 вариант 2 (Курсовой проект) [Белоусов]
3,7356
2021-10-222021-10-22СтудИзба
Курсовая работа 4: ПТМ 04 вариант 2 (Курсовой проект) [Белоусов] вариант 2
Описание
Защищалось и делалось под руководством Белоусова, по всем его требованиям.
В архиве:
Листы:
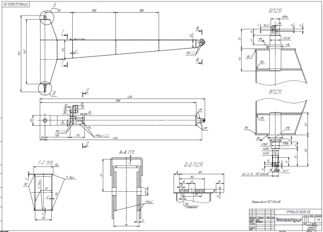
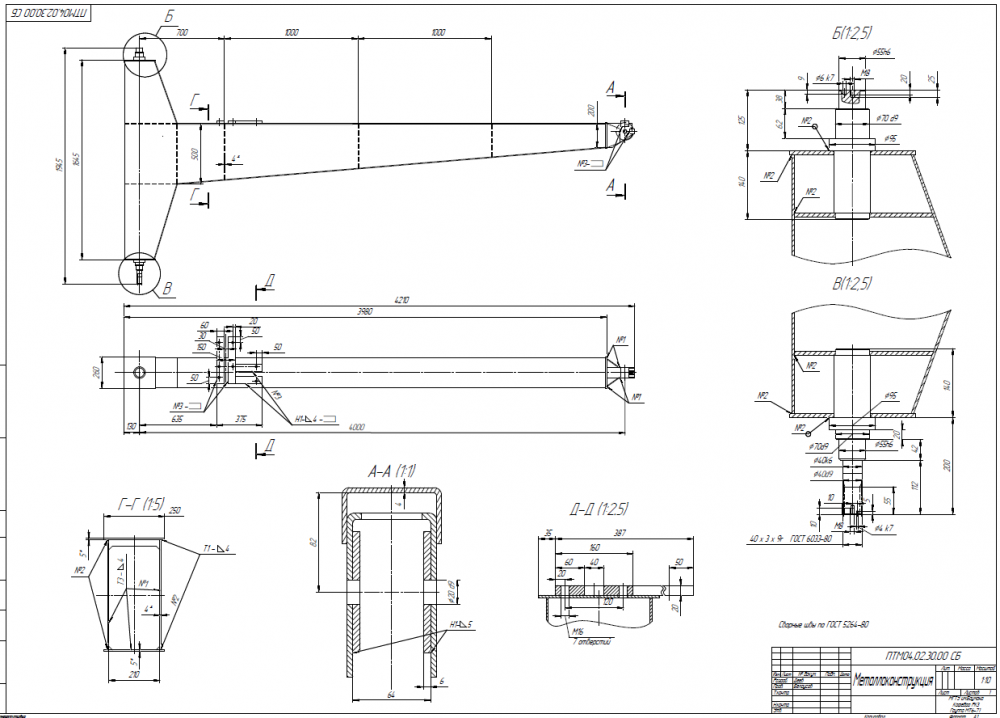
Металлоконструкция:
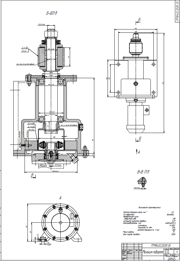
Механизм поворота:
Механизм подъема:
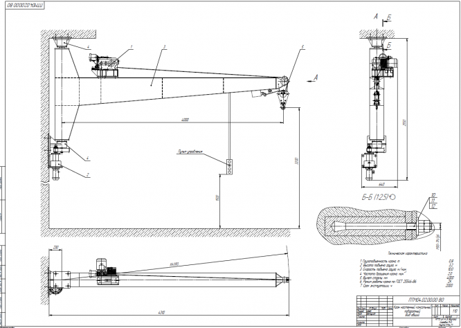
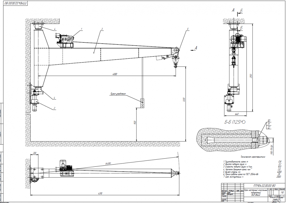
Общий вид:
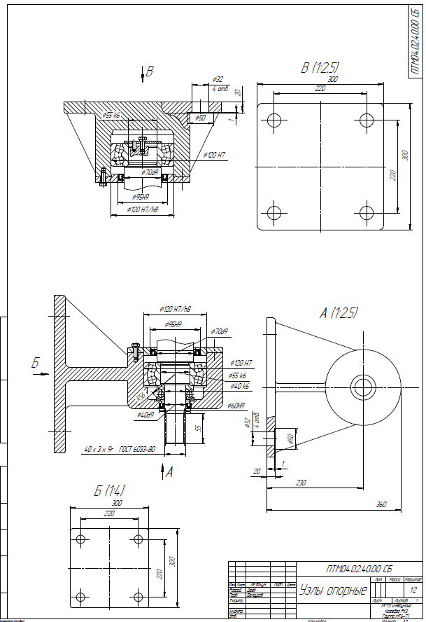
Опорные узлы:
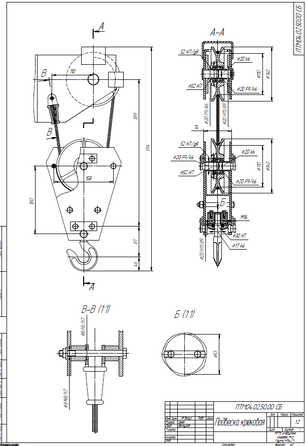
Подвеска:
Оглавление РПЗ:
![]()
В архиве:
- Хорошо оформленное РПЗ (Word + PDF) и программа MathCad (оглавление см. ниже);
- Все необходимые листы (см. ниже);

Листы:
Металлоконструкция:


Механизм подъема:



Подвеска:


Файлы условия, демо
Характеристики курсовой работы
Учебное заведение
Семестр
Номер задания
Вариант
Теги
Просмотров
190
Размер
3,98 Mb
Список файлов
Исходники
Металлоконструкция (на печать).cdw
Механизм поворота (на печать).cdw
Механизм поворота.xmcd
Механизм подъема (на печать).cdw
Общий вид (на печать).cdw
Опорные узлы (на печать).cdw
Подвеска №5 (на печать).cdw
РПЗ.docx
Расчеты.xmcd
Спецификация общий вид (на печать).cdw
счееет.xmcd
ПДФ файлы
Металлоконструкция (на печать).pdf
Механизм поворота (на печать).pdf
Механизм подъема (на печать).pdf
Общий вид (на печать).pdf
Опорные узлы (на печать).pdf
ПТМ(2018)_ПРОЕКТ_бланк_04.pdf
Подвеска №5 (на печать).pdf
РПЗ.pdf
Спецификация общий вид (на печать).pdf
ЭВМ для волнового редуктора.pdf