Для студентов МГТУ им. Н.Э.Баумана по предмету Основы конструирования приборов (ОКП)Механизм линейных перемещений - Расчет двигателя + КомпоновкаМеханизм линейных перемещений - Расчет двигателя + Компоновка
4,915677
2024-01-172024-01-17СтудИзба
ДЗ 1: Механизм линейных перемещений - Расчет двигателя + Компоновка вариант 5
Описание
При покупке Вы можете получить подарок 20 руб.
Зачтено на максимальный балл!!!
Идеальное качество файлов, документов 💥 💥 💥
Не только копировать, а нужно понимать!

Характеристики домашнего задания
Учебное заведение
Номер задания
Вариант
Программы
Просмотров
14
Качество
Идеальное компьютерное
Размер
1,46 Mb
Список файлов
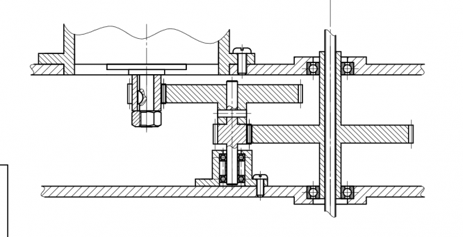
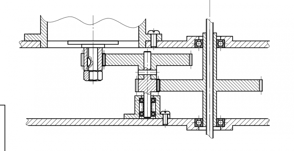
Кинематическая схема Чекмарев М.М. (2).pdf
Компановка Чекмарев М.М. (3).pdf
Чекмарев М.М. ИУ1-51 расчеты (2) исправлено.pdf

Ваше удовлетворение является нашим приоритетом. Вставьте 5 звезд и позитивные комментарии сразу дам Вам подарок. Благодарю за использование моей службы!!