Вопросы/задания к контрольной работе: Анализ напряжённо-деформированного состояния (НДС) отсека, состоящего из трёх деталей: двух фланцев и обечайки
Описание
СОДЕРЖАНИЕ
2 Исходные данные и построение модели. 4
4 Расчёт устойчивости от действия осевой нагрузки и поперечной нагрузки и изгибающего момента. 15
5 Расчёт устойчивости от действия крутящего момента. 20
1 Введение
В данной расчетно-графической работе проводится анализ напряжённо-деформированного состояния (НДС) отсека, состоящего из трёх деталей: двух фланцев и обечайки. Конструкция подвергается комбинированным нагрузкам, включая механические воздействия (осевая и поперечная перегрузки) и температурный перепад.

Рисунок 1 – изображение 3D-модель отсека в исходных данных
Целью работы является определение параметров НДС, оценка устойчивость конструкции при действии осевых, поперечных нагрузок, изгибающего и крутящего моментов, а также анализ влияния перепада температуры на деформации и напряжения.
Наиболее вероятно, что данный отсек является элементом авиационного двигателя, космического аппарата или высоконагруженного БПЛА, так как сочетание титана, углепластика, перегрузок и температурных воздействий характерно именно для таких применений.
Расчёты выполняются в программном комплексе «Ансис», который позволяет учесть нелинейные эффекты, связанные с материалами (разные модули упругости, коэффициенты Пуассона, КЛТР) и сложным нагружением. Результаты будут представлены в виде распределений напряжений, деформаций и критических нагрузок, что позволит сделать выводы о прочности и устойчивости конструкции. 3D-модель была построена в программе SolidWorks.
2 Исходные данные и построение модели
В качестве исходных данных описана конструкция отсека (он состоит из трёх деталей: двух фланцев и обечайки). Указано, что фланец большего диаметра (рисунок 1) закреплен, а в центре тяжести фланца меньшего диаметра действует осевая и поперечная силы, равные 21 Н, и момент, равный 21 Н на плечо.
Указаны расчётные случаи и нагрузки, в виде перепада температуры 40ºС, перегрузка 10g в осевом направлении и 5g в поперечном направлении.
Предоставлены 2 эскиза отсека (рисунки 2-3) и изображение 3D-модели (рисунок 1). Эскизы представлены на рисунках ниже.
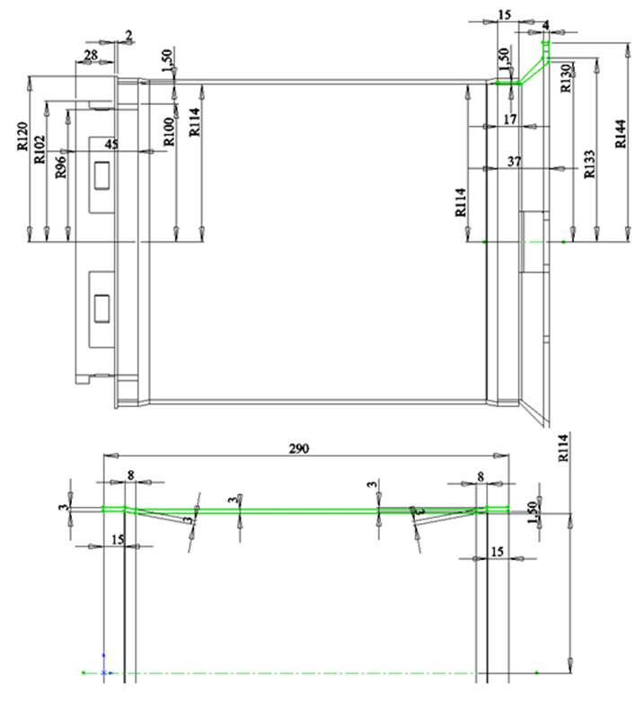
Рисунок 2 – Эскиз отсека
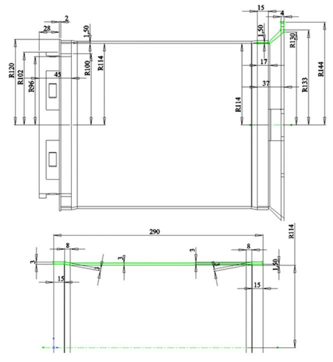
Рисунок 3 – Эскиз отсека
Предоставлена таблица свойств материалов деталей отсеков (рисунок 4).
Рисунок 4 – Свойства материалов
Обозначены задачи расчетно-графической работы:
- Расчёт параметров напряжённо-деформированного состояния от действия перепада температуры и перегрузок;
- Расчёт устойчивости от действия осевой нагрузки и поперечной нагрузки, и изгибающего момента;
- Расчёт устойчивости от действия крутящего момента.
vitalievnatalia
















