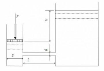
Для студентов по предмету Механика жидкости и газа (МЖГ или Гидравлика)Поршень диаметром D=280 мм движется равномерно вниз в цилиндре, подавая жидкостъ – воду в открытый резервуар с постоянным уровнем. Диаметр трубопровоПоршень диаметром D=280 мм движется равномерно вниз в цилиндре, подавая жидкостъ – воду в открытый резервуар с постоянным уровнем. Диаметр трубопрово
5,0051
2023-12-052024-06-22СтудИзба
Поршень диаметром D=280 мм движется равномерно вниз в цилиндре, подавая жидкостъ – воду в открытый резервуар с постоянным уровнем. Диаметр трубопровода d=90 мм, его длина l=15 м. Когда поршень находится ниже уровня жидкости в резервуаре на Н=5 м пот
Описание
Поршень диаметром D=280 мм движется равномерно вниз в цилиндре, подавая жидкостъ – воду в открытый резервуар с постоянным уровнем. Диаметр трубопровода d=90 мм, его длина l=15 м. Когда поршень находится ниже уровня жидкости в резервуаре на Н=5 м потребная для его перемещения сила равна F=19000 Н.
Определить скорость поршня и расход жидкости в трубопроводе.
Построить напорную и пьезометрическую линии для трубопровода.
Коэффициент гидравлического трения трубы принять λ=0,03. Коэффициент сопротивления входа в трубу ζвх=0,5. Коэффициент сопротивления выхода в резервуар ζвых=1,0.
Характеристики решённой задачи
Программы
Просмотров
17
Качество
Идеальное компьютерное
Размер
153,63 Kb
Список файлов
Задача.docx
