Для студентов МГТУ им. Н.Э.Баумана по предмету Инженерная графикаЭскиз детали Г-36Эскиз детали Г-36
4,9952280
2023-04-252023-04-25СтудИзба
ДЗ Г: Эскиз детали Г-36 вариант 36
Описание
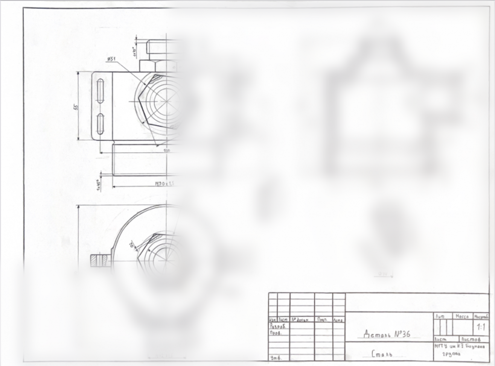
Домашнее задание №2 "Эскиз. Модель. Чертёж. Деталь стенда Г", Г-36, 2 семестр "Инженерная графика". Прикреплены подписанный эскиз и чертёж.
Показать/скрыть дополнительное описание



Показать/скрыть дополнительное описание
Эскиз и чертеж детали Г36.
Файлы условия, демо
Характеристики домашнего задания
Предмет
Учебное заведение
Семестр
Номер задания
Вариант
Просмотров
93
Качество
Скан рукописных листов
Размер
7,9 Mb
Список файлов
Эскиз.PNG
Чертёж.jpg
Деталь.jpg

Vladelo