Для студентов МГТУ им. Н.Э.Баумана по предмету Инженерная графикаИнжа_28-10Инжа_28-10
5,00535
2021-04-082021-04-08СтудИзба
ДЗ 28: Инжа_28-10 вариант 10
Описание
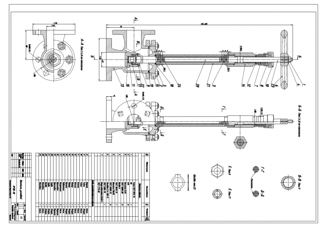
Инженерная графика, чертеж 28-10, отдельно все детали.
Чертеж сделан на А1, если он понадобится, пишите в профиль.
Характеристики домашнего задания
Предмет
Учебное заведение
Семестр
Номер задания
Вариант
Просмотров
100
Размер
7,19 Mb
Список файлов
Втулка.idw
Втулка.ipt
Клапан.idw
Клапан.ipt
Корпус.idw
Корпус.ipt
Корпус_глав.idw
Корпус_глав.ipt
Полукольцо.idw
Полукольцо.ipt
Труба.idw
Труба.ipt
гайка.idw
гайка.ipt
гайка2.idw
гайка2.ipt
кольцо.idw
кольцо.ipt
крышка-1.idw
крышка.ipt
подпятник.idw
подпятник.ipt
труба2.idw
труба2.ipt
шайба.ipt
шайба_черт.idw
шпиндель.idw
шпиндель.ipt
шпиндель2.idw
шпиндель2.ipt
Комментарии
Нет комментариев
Стань первым, кто что-нибудь напишет!
МГТУ им. Н.Э.Баумана

















