Для студентов МГТУ им. Н.Э.Баумана по предмету Инженерная графикаДомкрат 8-14Домкрат 8-14
4,81538
2021-01-282024-10-02СтудИзба
ДЗ 8: Домкрат 8-14 вариант 14
Описание
ДЛЯ ВЕРСИИ ИНВЕНТОРА 2020 ГОДА!!!!!!!! В архиве модели всех деталей, чертежи к ним(пдф и файлы инвентора), сборка домкрата и чертеж к ней. НЕ ЗАБУДЬ ПОМЕНЯТЬ ОСНОВНУЮ НАДПИСЬ!!!!!!!!!
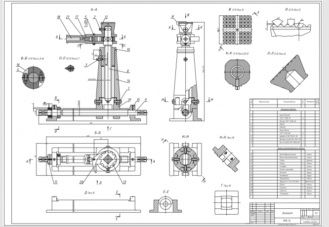
Сборка домкрата в Домкрат 8-14сборка файл "домкрат"
Сборка домкрата в Домкрат 8-14сборка файл "домкрат"




Характеристики домашнего задания
Предмет
Учебное заведение
Семестр
Номер задания
Вариант
Просмотров
598
Размер
36,12 Mb
Список файлов
Домкрат 8-14
сборка
OldVersions
Деталь4.0007.ipt
Деталь5.0006.ipt
Собач.0001.ipt
Собачка.0003_1.ipt
винт вертикальный.0002.ipt
винт вертикальный.0003.ipt
винт горизонтальный.0001.idw
винт горизонтальный.0002.ipt
винт горищонтальный.0001.ipt
гайка-втулка.0006.ipt
гайка.0002.ipt
головка домкрата.0001.idw
головка домкрата.0006.ipt
домкрат.0038.iam
колонка.0002.ipt
основание.0006.ipt
полукольцо.0006.ipt
пр4.0003.ipt
пружина.0004.ipt
пружина2-1.0001.dwg
пружина2-1.0001.idw
пружина2.0002.ipt
рычаг.0005.ipt
салазки.0006.ipt
сборка домкрат.ipj.bak
собачка.0003.ipt
толкатель.0003.ipt
храповое колесо.0001.idw