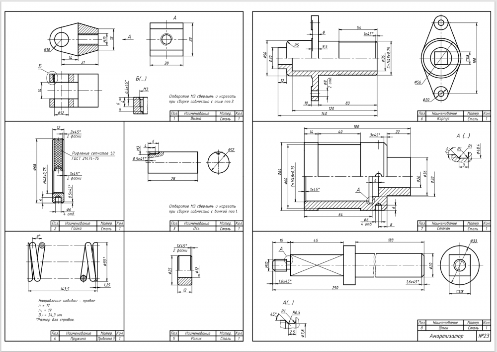
Для студентов МГТУ им. Н.Э.Баумана по предмету Инженерная графикаСборка 23 - АмортизаторСборка 23 - Амортизатор
4,905121
2020-10-212024-09-20СтудИзба
ДЗ: Сборка 23 - Амортизатор вариант 23
Описание
Характеристики домашнего задания
Предмет
Учебное заведение
Семестр
Вариант
Просмотров
97
Размер
4,36 Mb
Список файлов
Sborka-1.dwg
Вилка-1.ipt
Гайка-2.ipt
Корпус-6.ipt
Ось-3.ipt
Пружина-4.ipt
Пружина.ipt
Ролик-5.ipt
Сборка-1.dwg
Сборка.iam
Стакан-7.ipt
Шток-8.ipt
Сборка.dwg
Комментарии
Нет комментариев
Стань первым, кто что-нибудь напишет!
МГТУ им. Н.Э.Баумана
Pomidor22


















