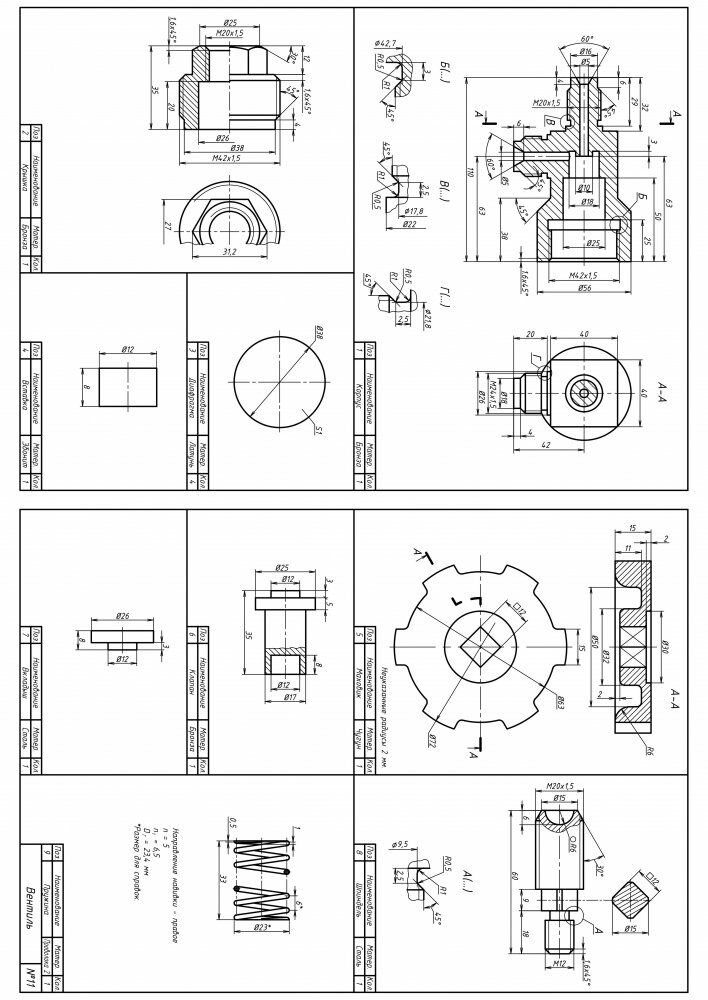
Для студентов МГТУ им. Н.Э.Баумана по предмету Инженерная графикаСборка 11 - ВентильСборка 11 - Вентиль
5,00519
2020-09-102020-09-10СтудИзба
ДЗ: Сборка 11 - Вентиль вариант 11
Описание
Характеристики домашнего задания
Предмет
Учебное заведение
Семестр
Вариант
Просмотров
405
Качество
Идеальное компьютерное
Размер
8,65 Mb
Список файлов
вентиль
OldVersions
Сборка.0001.dwg
Сборка1.0007.dwg
Сборка1
Мастер проектирования
OldVersions
Пружина сжатия1.0002.iam
Пружина сжатия11.0002.ipt
lockfile.lck
Пружина сжатия1.iam
Пружина сжатия11.ipt
Сборка1
Мастер проектирования
OldVersions
Пружина сжатия1.0002.iam
Пружина сжатия11.0002.ipt
Пружина сжатия1.iam
Пружина сжатия11.ipt
Сборка1.dwg
Сборка1.iam
Клапан.ipt
Шарик ГОСТ 3722-81.ipt
вкладка.ipt
вставка.ipt
диафрагма.ipt
корпус.ipt
крышка.ipt
маховик1.ipt
ограничитель.ipt
шпиндель.ipt
Сборка1.dwg
Сборка1.iam
lockfile.lck
Клапан.ipt
Сборка.dwg
Сборка.pdf
Шарик ГОСТ 3722-81.ipt
вкладка.ipt
вставка.ipt
диафрагма.ipt
корпус.ipt
крышка.ipt
маховик1.ipt
ограничитель.ipt
шпиндель.ipt
Комментарии
Нет комментариев
Стань первым, кто что-нибудь напишет!
МГТУ им. Н.Э.Баумана



















