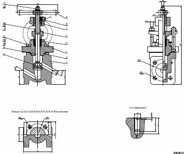
Для студентов МГТУ им. Н.Э.Баумана по предмету Инженерная графикаВентильВентиль
5,0052
2019-06-012019-06-01СтудИзба
ДЗ А: Вентиль вариант 258
Описание
модели, сборка, чертеж сборки, пдф со сборкой
инвентор 19
![]()
инвентор 19

Характеристики домашнего задания
Предмет
Учебное заведение
Семестр
Номер задания
Вариант
Просмотров
435
Размер
4,98 Mb
Список файлов
~Сборка А258.dwg.19116.tmp
Сборка А258.dwg
Сборка А258.iam
Сборка А258.pdf
болт_закладной.ipt
гайка ходовая.ipt
гайкаМ8.ipt
гайкаМ10.ipt
гайкаМ12.ipt
клапан.ipt
корпус.ipt
крышка.ipt
крышка_сальника.ipt
прокладка.ipt
ручка.ipt
шайбаМ8.ipt
шайбаМ10.ipt
шайбаМ12.ipt
шпилькаМ12.ipt
шпиндель.ipt
МГТУ им. Н.Э.Баумана
vk_116556602

















