Для студентов ИГЭУ им. Ленина по предмету ФизикаОсновы термодинамикиОсновы термодинамики
5,00572
2025-08-122025-08-25СтудИзба
Ответы к контрольной работе 6: Основы термодинамики
Описание
Основы термодинамики
- 6.1. Если в некотором процессе газ совершил работу, равную 10 кДж, а его внутренняя энергия уменьшилась на 10 кДж, то такой процесс называется...
2) адиабатным
3) изобарным
4) изохорным
- 6.2. Газ находится в состоянии с параметрами p1, V1. При сжатии газа минимальная работа будет совершена в…
2) ни один процесс не подходит
3) адиабатическом процессе
4) изохорическом процессе
5) изобарическом процессе
- 6.3. Идеальный газ совершает замкнутый цикл 1-2-3-4-1, состоящий из двух изохор и двух изобар. Давление и объем в состоянии 1 равны соответственно p1 и V1 и за цикл изменяются в n раз. Вычислите работу газа за цикл.
2) A = p1V1n2
3) A = p1V1(n-1)
4) A = p1V1(n-1)2
- 6.4. На P,V -диаграмме изображен циклический процесс в термодинамической системе. Как изменяется температура системы на участках цикла AB и BC?
2) Повышается
3) На AB - повышается, на BC - понижается
4) Понижается
- 6.5. Газ находится в состоянии с параметрами P1, V1. Какой процесс должен произойти в газе, чтобы им была совершена минимальная работа?
2) Изобарический
3) Изохорический
4) Ни один процесс не подходит
5) Адиабатический
- 6.6. На P,V -диаграмме изображены два циклических процесса. Отношение работ, совершенных в каждом цикле, AⅠ/AⅡ равно...
2) 1/2
3) 2
4) -1/2
- 6.7. Температура системы от энтропии изменяется так, как показано на графике. Эта зависимость соответствует…
2) изохорному охлаждению системы
3) изобарному сжатию системы
4) изотермическому сжатию системы
- 6.8. Температура системы от энтропии изменяется так, как показано на графике. Эта зависимость соответствует…
2) изохорному нагреванию
3) изобарному расширению
4) изотермическому расширению
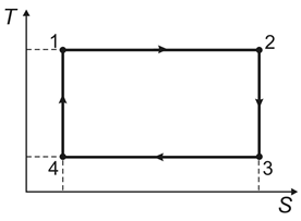
- 6.9. На рисунке изображен цикл Карно в координатах T,S, где S энтропия. Адиабатное расширение рабочего тела происходит на этапе...
2) 1-2
3) 3-4
4) 4-1
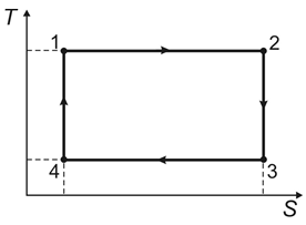
- 6.10. На рисунке изображен цикл Карно в координатах T,S, где S – энтропия. Адиабатное сжатие рабочего тела происходит на этапе...
2) 1-2
3) 2-3
4) 3-4
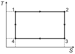
- 6.11. На рисунке изображен цикл Карно в координатах T,S, где S – энтропия. Изотермическое расширение рабочего тела происходит на этапе...
2) 3-4
3) 1-2
4) 2-3
- 6.12. На рисунке изображен цикл Карно в координатах T,S, где S – энтропия. Изотермическое сжатие рабочего тела происходит на этапе...
2) 1-2
3) 2-3
4) 4-1
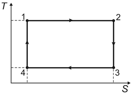
- 6.13. На рисунке изображен цикл Карно в координатах T,S, где S – энтропия. Теплота подводится к рабочему телу на участке...
2) 2-3
3) 4-1
4) 1-2
- 6.14. На рисунке изображен цикл тепловой машины в координатах T,S, где T – термодинамическая температура, S – энтропия. Укажите температуры нагревателей (теплоисточников) и холодильников (теплоприемников), которые осуществляли теплообмен с рабочим телом в этом цикле.
Холодильники – T1, T2
2) Нагреватели –T2, T4, T5
Холодильники – T1, T3
3) Нагреватели – T3, T5
Холодильники – T1, T2, T4
4) Нагреватели – T4, T5
Холодильники – T1, T2, T3
- 6.15. На P,V - диаграмме представлен цикл Карно. Графически работа при адиабатическом расширении изображена площадью фигуры...
2) A14B
3) B43D
4) C23D
- 6.16. Идеальная тепловая машина работает по циклу Карно (две изотермы 1-2 и 3-4 и две адиабаты 2-3 и 4-1). В процессе изотермического расширения 1-2 энтропия рабочего тела...
2) уменьшится
3) не изменится
- 6.17. Идеальная тепловая машина работает по циклу Карно (две изотермы 1-2 и 3-4 и две адиабаты 2-3 и 4-1). В процессе изотермического сжатия 3-4 энтропия рабочего тела...
2) уменьшится
3) не изменится
- 6.18. Теплоизолированный сосуд разделен перегородкой на две равные части. В одной половине находится идеальный газ, в другой – вакуум. Перегородку мгновенно убирают, и газ заполняет весь объем. В этом необратимом процессе энтропия газа...
2) не изменяется
3) уменьшается
4) может увеличиваться и уменьшаться
- 6.19. При изотермическом расширении идеального газа...
2) поглощается теплота, уменьшается энтропия
3) выделяется теплота, увеличивается энтропия
4) выделяется теплота, уменьшается энтропия
- 6.20. При адиабатическом сжатии температура газа растет. Энтропия газа...
2) увеличивается
3) равна нулю
4) уменьшается
- 6.21. Теплоемкость металлов при низких температурах линейно зависит от температуры C = αT Если энтропия при абсолютном нуле температуры равна нулю, то зависимость энтропии от температуры имеет вид...
2) S = αT2
3) энтропия от температуры не зависит
4) S = αT
- 6.22. При адиабатическом расширении температура газа уменьшается. Энтропия газа...
2) увеличивается
3) равна нулю
4) уменьшается
Список вопросов
6.12. На рисунке изображен цикл Карно в координатах T,S, где S – энтропия. Изотермическое сжатие рабочего тела происходит на этапе... ![]()

6.22. При адиабатическом расширении температура газа уменьшается. Энтропия газа...
6.21. Теплоемкость металлов при низких температурах линейно зависит от температуры C = αT Если энтропия при абсолютном нуле температуры равна нулю, то зависимость энтропии от температуры имеет вид...
6.20. При адиабатическом сжатии температура газа растет. Энтропия газа...
6.19. При изотермическом расширении идеального газа...
6.18. Теплоизолированный сосуд разделен перегородкой на две равные части. В одной половине находится идеальный газ, в другой – вакуум. Перегородку мгновенно убирают, и газ заполняет весь объем. В этом необратимом процессе энтропия газа...
6.17. Идеальная тепловая машина работает по циклу Карно (две изотермы 1-2 и 3-4 и две адиабаты 2-3 и 4-1). В процессе изотермического сжатия 3-4 энтропия рабочего тела...
![]()

6.16. Идеальная тепловая машина работает по циклу Карно (две изотермы 1-2 и 3-4 и две адиабаты 2-3 и 4-1). В процессе изотермического расширения 1-2 энтропия рабочего тела...
![]()

6.15. На P,V - диаграмме представлен цикл Карно. Графически работа при адиабатическом расширении изображена площадью фигуры... ![]()

6.14. На рисунке изображен цикл тепловой машины в координатах T,S, где T – термодинамическая температура, S – энтропия. Укажите температуры нагревателей (теплоисточников) и холодильников (теплоприемников), которые осуществляли теплообмен с рабочим телом в этом цикле. ![]()

6.13. На рисунке изображен цикл Карно в координатах T,S, где S – энтропия. Теплота подводится к рабочему телу на участке... ![]()

6.1. Если в некотором процессе газ совершил работу, равную 10 кДж, а его внутренняя энергия уменьшилась на 10 кДж, то такой процесс называется...
6.11. На рисунке изображен цикл Карно в координатах T,S, где S – энтропия. Изотермическое расширение рабочего тела происходит на этапе... ![]()

6.10. На рисунке изображен цикл Карно в координатах T,S, где S – энтропия. Адиабатное сжатие рабочего тела происходит на этапе... ![]()

6.9. На рисунке изображен цикл Карно в координатах T,S, где S энтропия. Адиабатное расширение рабочего тела происходит на этапе... ![]()

6.8. Температура системы от энтропии изменяется так, как показано на графике. Эта зависимость соответствует…
![]()

6.7. Температура системы от энтропии изменяется так, как показано на графике. Эта зависимость соответствует…
![]()

6.6. На P,V -диаграмме изображены два циклических процесса. Отношение работ, совершенных в каждом цикле, AⅠ/AⅡ равно... ![]()

6.5. Газ находится в состоянии с параметрами P1, V1. Какой процесс должен произойти в газе, чтобы им была совершена минимальная работа?
6.4. На P,V -диаграмме изображен циклический процесс в термодинамической системе. Как изменяется температура системы на участках цикла AB и BC?
![]()

6.3. Идеальный газ совершает замкнутый цикл 1-2-3-4-1, состоящий из двух изохор и двух изобар. Давление и объем в состоянии 1 равны соответственно p1 и V1 и за цикл изменяются в n раз. Вычислите работу газа за цикл.
![]()

6.2. Газ находится в состоянии с параметрами p1, V1. При сжатии газа минимальная работа будет совершена в…
Характеристики ответов (шпаргалок) к КР
Тип
Коллекция: Ответы (шпаргалки) к контрольной работе
Предмет
Учебное заведение
Семестр
Номер задания
Просмотров
14
Качество
Идеальное компьютерное
Количество вопросов

🎓Помощь студентам Ивановских ВУЗов🎓 ❤️ Каждая приобретенная работа служит стимулом для добавления новых материалов и упрощает учебный процесс.