Для студентов по предмету ДругиеВыполнение расчетно-графической работы на тему: «Сбор нагрузок на конструктивные элементы здания» Выполнение расчетно-графической работы на тему: «Сбор нагрузок на конструктивные элементы здания»
5,00521
2024-10-202024-10-20СтудИзба
Другое 2: Выполнение расчетно-графической работы на тему: «Сбор нагрузок на конструктивные элементы здания» вариант 2
Описание
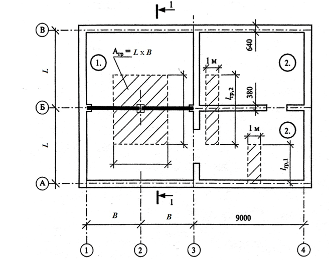
- Определить нагрузку на 1 м2 покрытия здания.
- Определить нагрузку на 1 м2 перекрытия здания.
- Определить нагрузку на 1 п.м ригеля перекрытия здания.
- Определить нагрузку на колонну здания.
Исходные данные:
Район строительства | Миасс |
Назначение помещения | Жилое здание |
Пролет L, м | 6 |
Шаг B, м | 6 |
Высота этажа Hc, м | 2,7 |
Плита покрытия | Пустотная |
Плита перекрытия | Сплошная |
Состав кровли | Схема 1 |
Состав пола | Схема 1 |
Сечение ж/б ригеля bxh, см | 30*60 |
Сечение колонны bсxhс, см | 40*40 |
Материал колонны | ж/б |


| |
Характеристики учебной работы
Тип
Предмет
Семестр
Номер задания
Вариант
Просмотров
1
Качество
Идеальное компьютерное
Размер
313,65 Kb
Список файлов
сбор нагрузок вариант 2.docx