Для студентов МГТУ им. Н.Э.Баумана по предмету Детали машин (ДМ)Привод ленточного транспортера с двухступенчатым цилиндрическим вертикальным соосным однопоточным мотор-редукторомПривод ленточного транспортера с двухступенчатым цилиндрическим вертикальным соосным однопоточным мотор-редуктором
4,84543
2025-02-032025-02-07СтудИзба
Курсовая работа 59: Привод ленточного транспортера с двухступенчатым цилиндрическим вертикальным соосным однопоточным мотор-редуктором
-14%
Описание
Для открытия файлов нужен КОМПАС V-21
В файле есть: РПЗ (34 стр.), спецификации, чертежи 5 листов,
оглавление к РПЗ, 3д модели и детали.
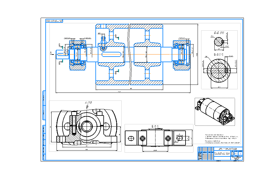
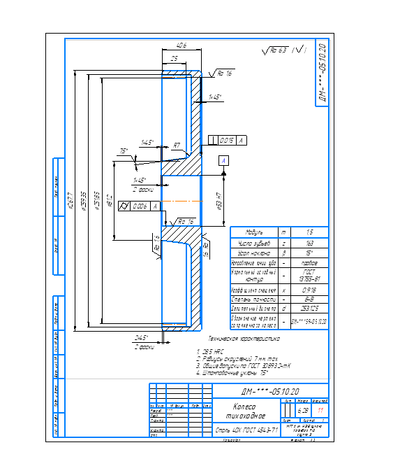
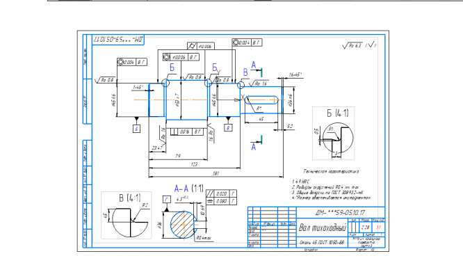
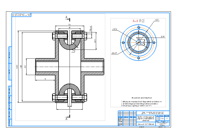
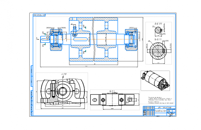
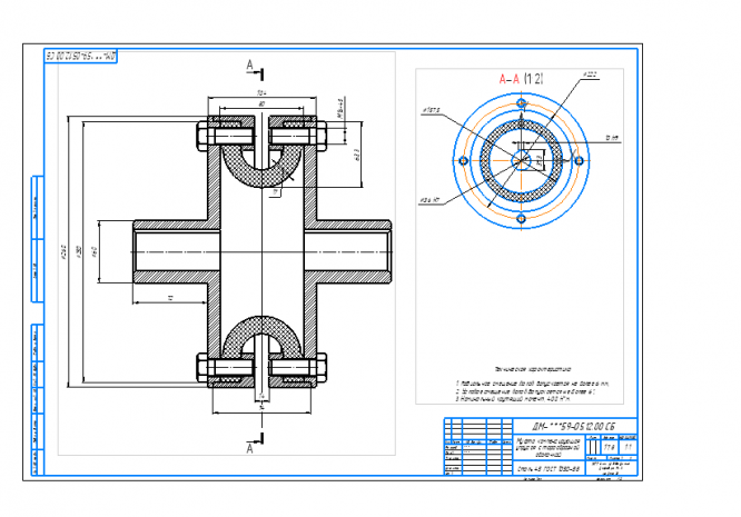
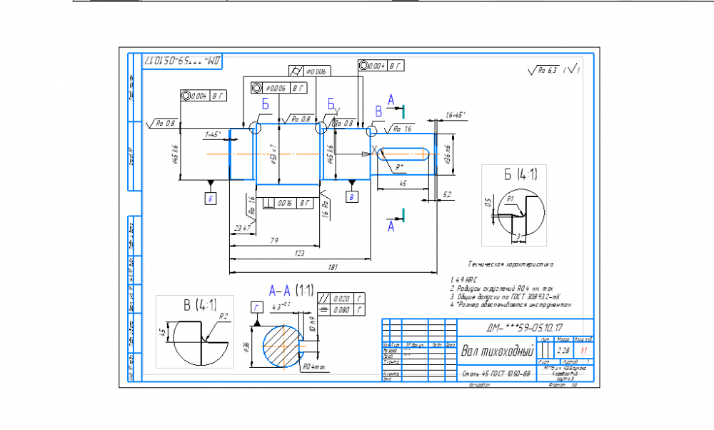
3 Лист представляет собой 3 чертежа : 1) Тихоходный вал; 2)Тихоходное колесо; 3) Муфта
Если у вас даны другие параметры, то проще на чертежах убрать привязки к моделям- ("разрушить") изменить размеры самостоятельно)
![]()
В файле есть: РПЗ (34 стр.), спецификации, чертежи 5 листов,
оглавление к РПЗ, 3д модели и детали.
3 Лист представляет собой 3 чертежа : 1) Тихоходный вал; 2)Тихоходное колесо; 3) Муфта
Если у вас даны другие параметры, то проще на чертежах убрать привязки к моделям- ("разрушить") изменить размеры самостоятельно)
Характеристики курсовой работы
Предмет
Учебное заведение
Семестр
Номер задания
Вариант
Просмотров
27
Размер
73,25 Mb
Список файлов
Детмаш КП
Узлы
КОльцо.m3d
КОрп 2.m3d
КОрп 2.m3d.bak
Крышка1.m3d
Крышка2.m3d
Крышка3.m3d
Деталь корп.m3d
Деталь корп.m3d.bak
Узел 1a3d.a3d
Узел 1a3d.a3d.bak
Узел 2.a3d
Узел 2.a3d.bak
Чертежи РПз и Спецификации
Лист 4 .cdw
Листы 1 и 2.cdw
Офиц чертеж муфтыcdw.cdw
РпЗ .docx
Содержание рпз.cdw
Спецификация Сборка.spw
Спецификация 1 и 2 листы.spw
Тихох вал чертеж.cdw
Тихоходное колесо.cdw
5 лист.cdw
pdm
App
AppInfo
Launcher
DOSBoxPortable.ini
splash.jpg
Комментарии
Нет комментариев
Стань первым, кто что-нибудь напишет!
МГТУ им. Н.Э.Баумана
borian_shinobi

















