Для студентов МГТУ им. Н.Э.Баумана по предмету Детали машин (ДМ)Привод цепного транспортера с двухступенчатым цилиндрическим горизонтальным мотор-редуктором с косозубыми передачами внешнего зацепленияПривод цепного транспортера с двухступенчатым цилиндрическим горизонтальным мотор-редуктором с косозубыми передачами внешнего зацепления
4,9851109
2024-03-262024-03-26СтудИзба
Привод цепного транспортера с двухступенчатым цилиндрическим горизонтальным мотор-редуктором с косозубыми передачами внешнего зацепления
Описание
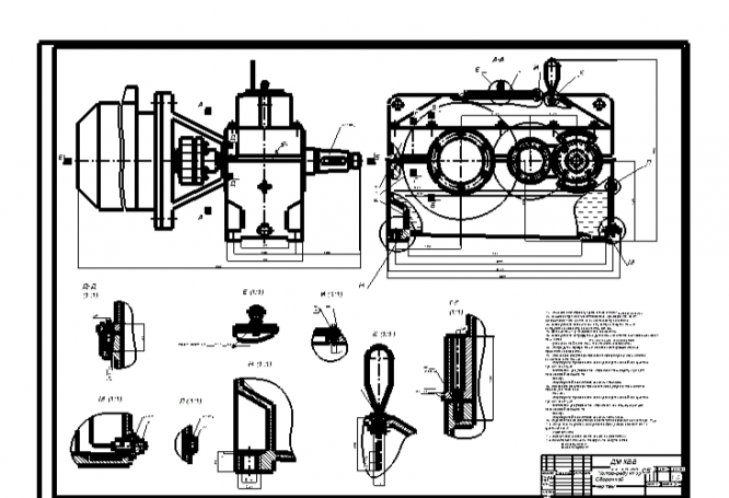
В файле РПЗ, Листы и спецификации - Привод ленточного транспортера с червячным редуктором (нижее расположение червяка) и ременной передачей от электродвигателя к редуктору
Спроектировать:Привод цепного транспортера с двухступенчатым цилиндрическим горизонтальным мотор-редуктором с косозубыми передачами внешнего зацепления и полым валом



Характеристики курсовой работы
Предмет
Учебное заведение
Семестр
Номер задания
Вариант
Программы
Теги
Просмотров
44
Размер
941,48 Kb
Список файлов
List1.frw
List2.frw
List3.frw
List4.frw
List5.frw
RPZ.docx
Spetsifikatsia.doc

Спасибо за покупку! Я буду очень рад, если поставишь справедливую оценку купленному файлу