Для студентов МГТУ им. Н.Э.Баумана по предмету Детали машин (ДМ)Привод цепного транспортераПривод цепного транспортера
5,0059
2018-06-042025-04-07СтудИзба
Курсовая работа ДМ: Привод цепного транспортера вариант 1566
-50%
Описание
Привод цепного транспортера - ДМ - 1566
Содержание
- ОГЛАВЛЕНИЕ 2
- Техническое задание 4
- Введение 5
- 1 Кинематический расчет привода 6
- 1.1 Выбор электродвигателя 6
- 1.2 Определение частот вращения и вращающих моментов на валах 7
- 2 Расчет зубчатой передачи 8
- 3 Эскизное проектирование редуктора 9
- 3.1 Выбор конструкций валов и их проектные расчеты 9
- 3.1.1 Быстроходный вал 9
- 3.1.2 Тихоходный вал 10
- 3.1.3 Приводной вал 10
- 3.2 Предварительный выбор подшипников и схемы их установки 10
- 3.3 Разработка компоновочной схемы редуктора 11
- 4 Конструирование зубчатого колеса 12
- 4.1 Зубчатое колесо 12
- 4.2 Зубчатое колесо 13
- 5 Выбор и расчет соединений 15
- 5.1 Соединение с натягом 15
- 5.2 Шпоночные соединения 20
- 5.2.1 Соединение шкива и быстроходного вала 21
- 5.2.2 Соединение тихоходного вала и приводной звездочки 22
- 5.2.3 Соединение приводной звездочки и приводного вала 22
- 5.2.4 Соединение приводного вала и тяговой звездочки 22
- 6 Конструирование корпуса и подшипниковых узлов редуктора 23
- 6.1 Крышки подшипников быстроходного вала 23
- 6.2 Крышки подшипников тихоходного вала
- 8.1 Конструирование ведущей звездочки 26
- 8.2 Конструирование ведомой звездочки 26
- 9 Расчет подшипников на заданную долговечность 28
- 9.1 Подшипники быстроходного вала 29
- 9.2 Подшипники тихоходного вала 35
- 9.3 Подшипники приводного вала 40
- 10 Расчет валов на прочность 51
- 10.1 Быстроходный вал 51
- 10.2 Тихоходный вал 55
- 10.3 Приводной вал 59Ч
Техническое задание

Введение
В рамках курсового проекта по дисциплине «Детали машин» получено задание спроектировать привод цепного транспортера с двухступенчатым цилиндрическим косозубым редуктором, выполненным по соосной схеме и цепной передачей.Цепные конвейеры – оборудование, применяемое в различных отраслях промышленности. Такие механизмы используются для перемещения грузов с большим весом и предметов, разогретых до высоких температур. Цепной конвейер часто используется на заводах в качестве транспортирующего устройства для охлаждения изделий до необходимой температуры после термической обработки.
Цепные конвейеры по сравнению с ленточными моделями более громоздкие, тяжелые, дорогостоящие, а конвейерные цепи содержат больше пар трения, что требует их регулярной смазки. Но при этом данная техника отличается высокой производительностью и имеет большую грузоподъемность.
В данной работе необходимо разработать общий вид привода, соосный редуктор, звездочку цепной передачи с предохранительным элементом, приводной вал, а также выполнить чертежи некоторых деталей, подобрать упругую муфту.
Все разрабатываемые элементы необходимо подкрепить расчетами, подтверждающими надежность работы привода в течении требуемого ресурса
Чертежи
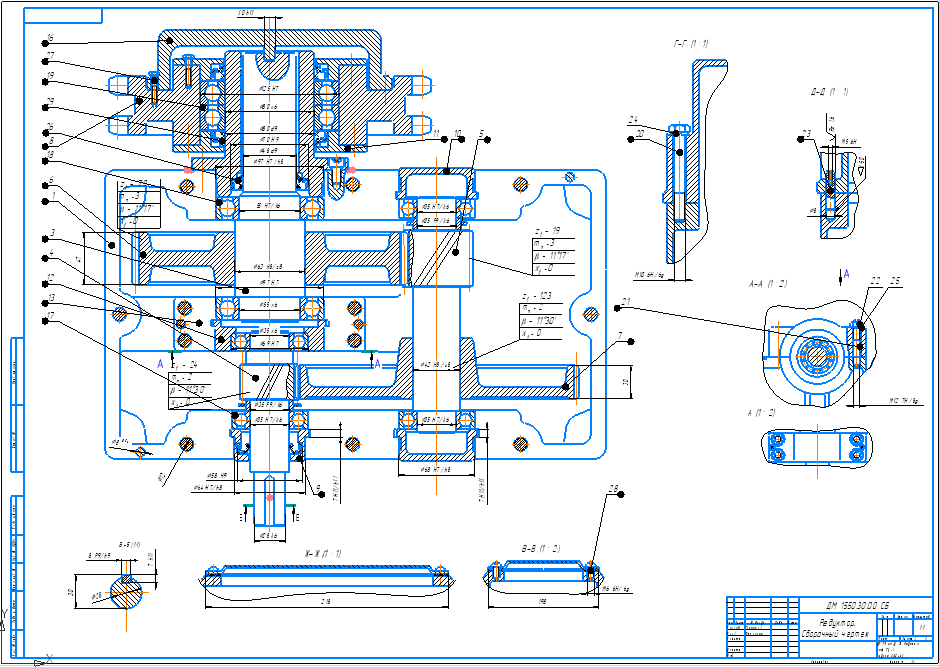
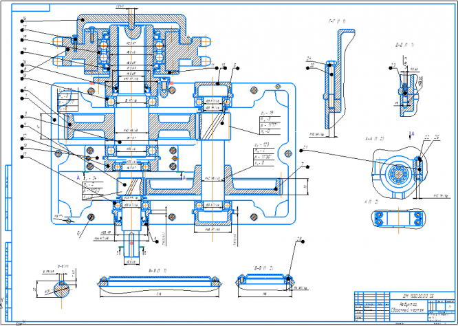
Лист 1,2 - Редуктор ![]()
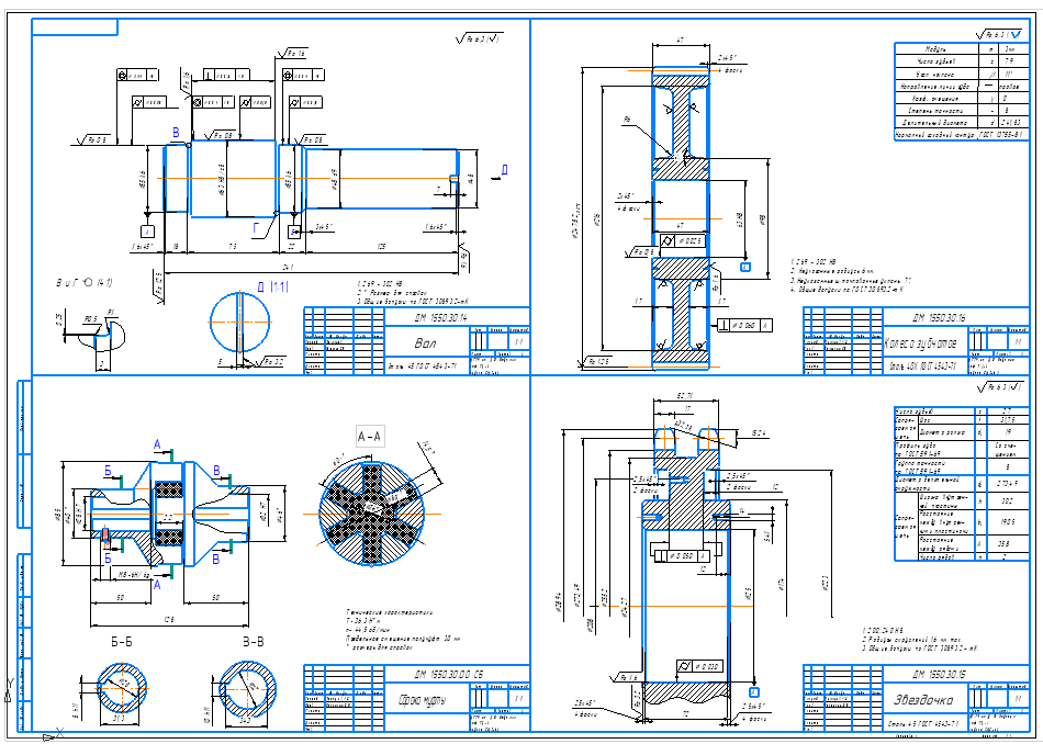
Лист 3 - Деталировка
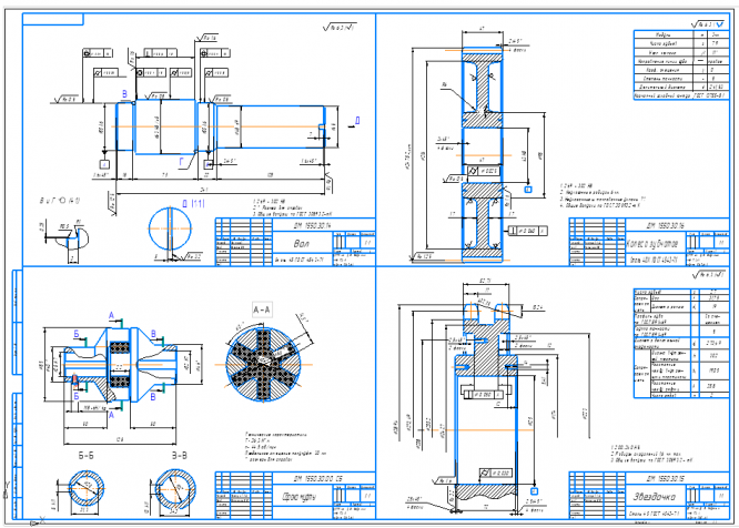
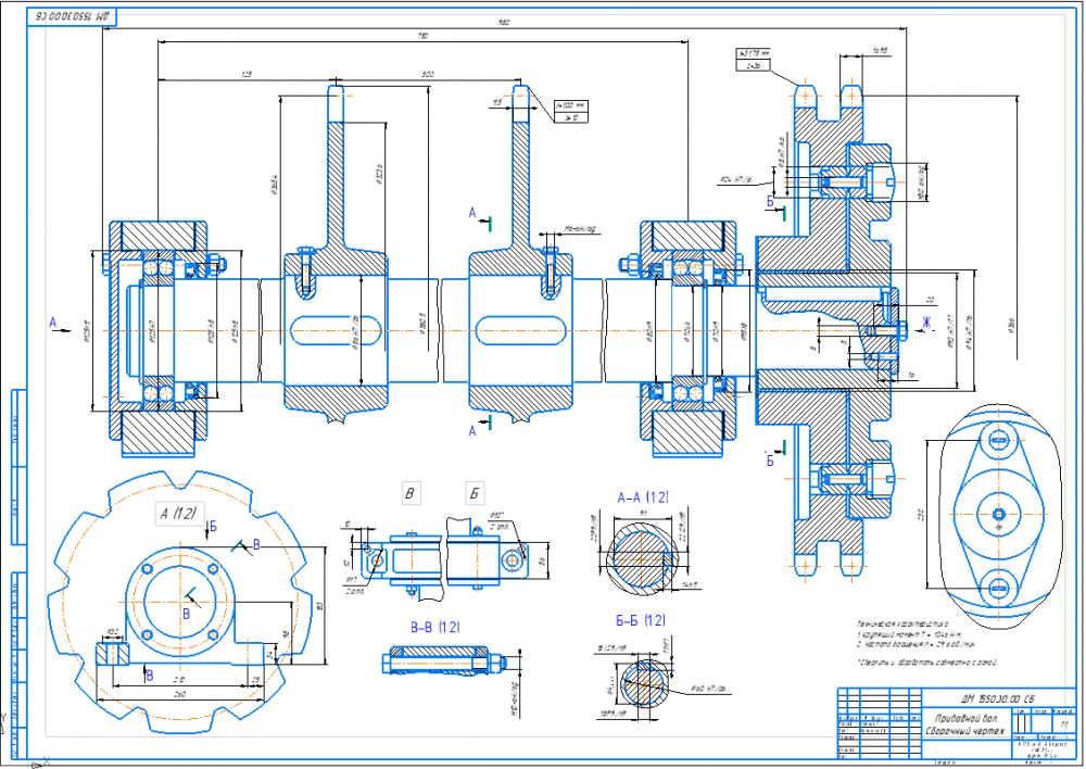
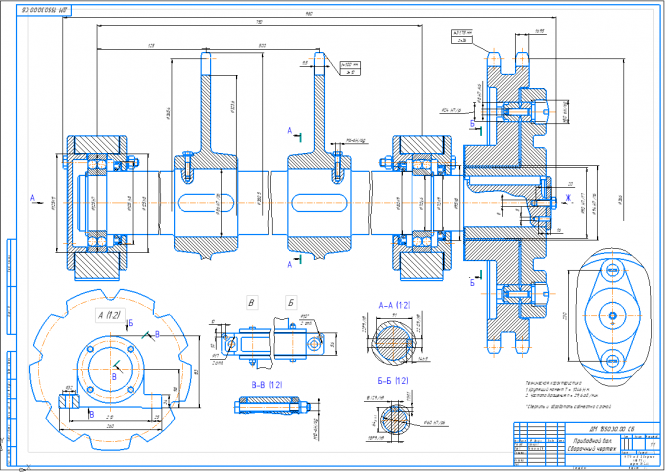
Лист 4 - Приводной вал ![]()
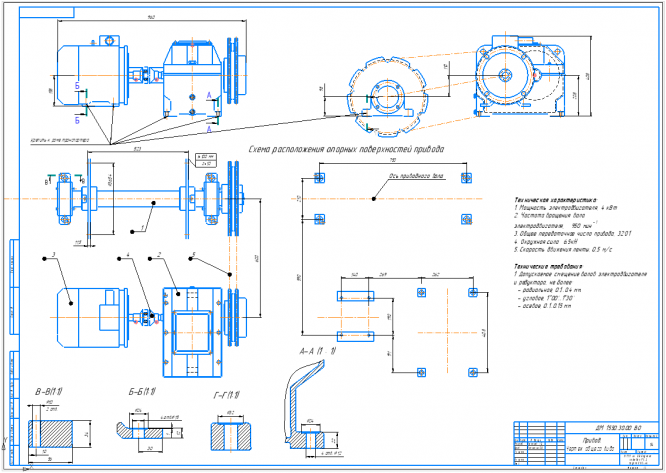
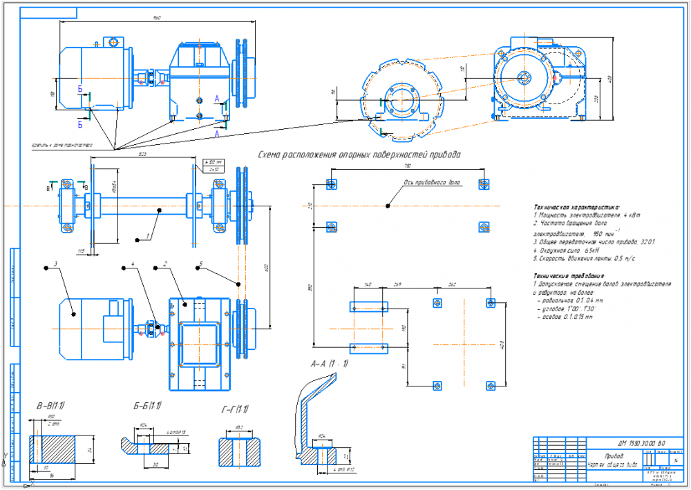
Лист 5 - Привод цепного транспортера ![]()
Характеристики курсовой работы
Предмет
Учебное заведение
Семестр
Номер задания
Вариант
Программы
Просмотров
1130
Качество
Идеальное компьютерное
Размер
2,82 Mb
Список файлов
Привод цепного транспортера
Безымянный (2).png
Безымянный.png
Быстроходный вал.png
Лист 1.cdw
Лист 2.cdw
Лист 3.cdw
Лист 4.cdw
Лист 5.cdw
РПЗ.docx
Тихоходный вал.png
Чертеж.cdwрррррррррррпв.jpg
Шпонка.xmcd
сечение1быстроходный.xmcd
сечение1тихоходный.xmcd
сечение2быстроходный.xmcd
сечение2тихоходный.xmcd
сечение3быстроходный.xmcd
сечение3тихоходный.xmcd

Вам все понравилось? Получите кэшбэк - 40 рублей на Ваш счёт при покупке. Поставьте оценку и напишите положительный комментарий к купленному файлу. После Вы получите деньги на ваш счет.