metoda_KATP_DZ (995720), страница 2
Текст из файла (страница 2)
где
.
Для расчета погрешности формы, при обработке сферы, учитывают, что протяженность сферической поверхности в осевом направлении небольшая, и можно пренебречь влиянием переменной жесткости заготовки вдоль ее оси на погрешность формы. Тогда можно считать, что погрешность формы обусловлена только неравномерными отжатиями суппорта. В этом случае текущие отклонения реального профиля от заданного в направлении действия силы
определяется из равенства:
Для определения погрешности формы проще всего воспользоваться графическим изображением заданного 1 и реального 2 профилей (рис. 6).
Реальный профиль строят откладыванием отклонения
профиля в направлении действия силы
в соответствующей точке a . Погрешность формы
определяется разностью радиусов вписанной r и описанной r' окружностей реального профиля. Практически при чистовой обработке рассматриваемая погрешность может достигать 0,03…0,04 мм. Это в большинстве случаев выходит за допустимые пределы. Для уменьшения величины указанной погрешности можно рекомендовать обработку с целенаправленным изменением подачи, обуславливающей стабилизацию радиальной составляющей силы резания. При цикловой автоматике выполняется расчет величины подач по участкам (
) угла обхвата.
Для определения закона изменения подачи будем стремиться поддерживать силу постоянной и равной величине
. Причем сила возникает на угле обхвата
и подаче
. Разделим значение силы
на силу, которая образуется при обработке с переменной подачей, текущие значения которой обозначим s.
Отсюда определим закон изменения подачи, стабилизирующей реальную составляющую силу резания при соотношении сил
:
Рис. 6. Графическое изображение заданного 1 и реального 2 профиля поверхности детали
Подставим найденное значение в формулу для определения величины осевой силы резания и получим:
Таким образом, наряду со стабилизацией радиальной составляющей силы резания стабилизируются и её осевая составляющая. Это обуславливает стабилизацию величины и направления равнодействующей
и, как следствие, существенное уменьшение погрешности формы.
Весьма специфично проявление погрешности от упругих деформаций технологической системы при контурном фрезеровании концевыми фрезами на гидрокопировальном фрезерном станке и станках с ЧПУ.
На рис. 7 показан пример контурного фрезерования прямоугольного участка, радиус сопряжения которого R равен радиусу фрезы.
Из рис. 7, а видно, что при фрезеровании прямолинейного участка при глубине резания t, угол контакта θ, а, следовательно, и силы резания постоянны. При обработке сопряжения резко возрастает глубина резания и растет величина силы резания (рис. 7, 6). Максимальные значения глубины и силы резания будут в точке изменения направления подачи, после чего происходит практически мгновенное перераспределение нагрузок, действующих на фрезу, до величин соответствующих прямолинейному участку. Изменение силы резания вызывает изменение упругих отжатий фрезы в процессе фрезерования участка сопряжения.
На рис. 8 показано формирование характерных погрешностей, обусловленных упругими отжатиями фрезы при встречном (рис. 8, а) и попутном (рис. 8, б) фрезеровании.
Исследования показывают, что с уменьшением радиуса фрезы
в сравнении с радиусом сопряжения уменьшается тангенциальная составляющая силы резания
(рис. 23). При этом, несмотря на уменьшение жесткости фрезы, зависимость упругих отжатий У от соотношения
имеет экстремум. Минимальные упругие отжатия наблюдаются при
Рис. 7. Контурное фрезерование: а – изменение глубины резания при фрезеровании сопряжения; б – изменение силы резания при обработке сопряжения
Рис. 8. Формирование характерных погрешностей при фрезеровании: а – встречном; б – попутном.
Отсюда первая рекомендация по уменьшению рассмотренной погрешности: при фрезеровании сопряжений контура следует выбирать радиус фрезы Rф = (0,7...0,75)R .
Это обеспечивает уменьшение погрешности в 4...7 раз по сравнению с фрезерованием при
. Попутно заметим, что указанную рекомендацию можно реализовать только на станках с ЧПУ или гидрокопировальных станках, которые обеспечивают возможность перемещения фрезы по эквидистанте к обрабатывающему контуру.
Рис. 9. Зависимость тангенциальной составляющей силы резания PZ и величины упругих отжатий от соотношения радиусов сопряжения фрезы.
Рассмотрим последовательность расчета погрешностей формы и размера, обусловленных упругими отжатиями технологической системы при многоинструментальной обработке ступенчатого вала.
Рис. 10. Схема для расчета величины равнодействующей радиальных составляющих сил резания
-
Определение величины равнодействующей радиальных составляющих силы резания (
) (см. рис. 10):
-
Определение расположения точки приложения равнодействующей от переднего торца заготовки:
где
– осевая координата радиальной силы на первом резце; l – расстояние между двумя соседними резцами.
-
Определение размеров по каждой обрабатываемой поверхности при
:
где
– максимальная и минимальная величина равнодействующей при обработке партии деталей; Wi – податливость технологической системы в поперечном сечении, проходящем через формообразующую вершину i-го резца.
При zi > zR , где i = 1, 2, 3,…,n ( рис.10).
где
– податливость суппорта;
– податливость соответственно передней и задней бабок станка.
При zi < zR:
-
Определение погрешности формы на каждой ступени вала
где
– равнодействующая сил резания в положениях резцового блока
и
соответственно;
– податливость технологической системы под резцом i при положении резцового блока
и
соответственно.
Величина податливости определяется по приведенным выше равенствам. Причем
определяют при zi соответственно равным:
. Значения
определяют соответственно при
.
Для определения момента инерции J ступенчатого вала, в формуле для расчета податливости, вал заменяют эквивалентным гладким. При изготовлении валов с уменьшением диаметров от одного края к другому, диаметр будут определять из равенства:
где d1,d2,…,dn – диаметры соответственно 1й, 2й и nй ступени вала; l1,l2,…,ln – длины соответственно 1й, 2й и nй ступени вала.
Для валов с утолщением посередине
Сила резания на каждом резце определяется по эмпирическим формулам. Для однорезцовой обработки расчет величины силы резания выполняют по заданной глубине резания
:
где
– постоянный коэффициент;
,
,
– показатели степени в формуле; s – подача [мм/об]; V – скорость резания [м/мин];
– поправочный коэффициент;
– предел текучести обрабатываемого материала;
– коэфициент, используемый при неизменных подаче и скорости резания.
При многорезцовой параллельной обработке упругие отжатия технологической системы существенно влияют на глубину резания, и поэтому для повышения точности расчета силу резания следует определять по фактической tф глубине резания
. Связь между заданной и фактической глубиной резания выражается равенством:
,
где
–заданная и фактическая глубина резания на i -ом резце при выбранном осевом положении резцового блока;
– суммарное упругое отжатие в поперечном сечении, соответствующем положению i -го резца, обусловленное действием сил резания на каждом резце;
– упругое отжатие в результате действия силы резания на i-ом резце;
– соответственно упругие отжатия в сечении положения i -го резца от действия сил резания на 1,2,…,п резцах.
Выразим упругие отжатия через силу резания и податливость.
Обозначим:
.
Записав подобные равенства для каждого резца, получаем систему из n уравнений:
Решив эту систему уравнений, определим фактические значения глубин резания на каждом резце при выбранном осевом положении резцового блока. Решая систему подобных уравнений для нескольких положений резцового блока, можно выявить изменение физической глубины резания по длине обрабатываемой поверхности.
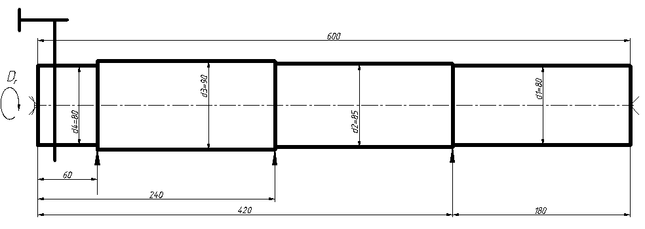
Пример выполнения домашнего задания для произвольной детали.
Задание:
Определить погрешность размера и формы по каждой ступени при параллельной обработке 3-х ступеней вала (d4 обработан ранее).
Вал установлен в центрах.
Станок: многорезцовый полуавтомат.
Исходные данные:
Jп.б.=2550 кг/мм;
Jз.б.=1500 кг/мм;
Jс=1100 кг/мм;
Обрабатываемый материал - Сталь45;
Материал режущей части - Т15К6;
S=0.1 мм/об
I.Определение равнодействующую составляющую сил резания:
Радиальная составляющая на каждой ступени вала:
) (см. рис. 10):
:















