kursov_fundament (696102), страница 2
Текст из файла (страница 2)
А2=2,24х2=4,48м.
Сбор нагрузок для сечения 1-1 А1=5,24м2
Табл. 2.4.
| Вид нагрузки | Нормативная нагрузка, NII, кН | Коэффициент надежности по нагрузке f | Расчетная нагрузка, NI, кН |
| 1. Постоянная | |||
| Покрытие (кровля) NII = 1.6х5,24=8,38 кН NI = 2,04х5,24=10,7 кН | 8,38 | - | 10,7 |
| Перекрытие на 4-х этажах (включая и мансарду) NII =4х2,41х5,24=50,52кН NI = 4х2,723х5,24=57,1кН | 50,52 | - | 57,1 |
| Вес стены от пола 1-го этажа высотой 9,9м+2м мансарды =18кН/м3 =51см на длине 2,34м за вычетом веса оконных проемов размером 1,05х1,8см + вес цоколя высотой 1м 18х[(9.9+2)2.24-1,05х1,8]0,51+18х0,51х2,34х1= =259,75кН | 259,75 | 1,1 | 285,7 |
| Итого: постоянная нагрузка | 318,65 | - | 353,5 |
| 2. Временная | |||
| Снеговая нагрузка (1-й район) 0,5х5,24=2,62 | 2,62 | 1,4 | 3,67 |
| Полезная на перекрытие на 4-х этажах при коэф-те снижения п = 0,8 4х0,8х1,5х5,24 = 25,16кН | 25,16 | 1,2 | 30,19 |
| Итого: временная нагрузка | 27,78 | - | 33,86 |
При учете двух и более временных нагрузок они принимаются с коэф-м сочетаний и расчете на основное сочетание: 1=0,95 – для длительных нагрузок и 2=0,9 – для кратковременных. При расчете на основное сочетание нормативная нагрузка (по II группе) на 1мдлины стены для сеч. 1-1 составит:
Сбор нагрузок для сечения 2-2 А2=4,48м2
Табл. 2.5.
| Вид нагрузки | Нормативная нагрузка, NII, кН | Коэффициент надежности по нагрузке f | Расчетная нагрузка, NI, кН |
| 1. Постоянная | |||
| Покрытие (кровля) NII = 1.6х4,48=7,27кН NI = 2,04х4,48=9,14кН | 7,17 | - | 9,14 |
| Перекрытие на 4-х этажах (включая и мансарду) NII =4х2,41х4,48=43,19кН NI = 4х2,723х4,48=48,79кН | 43,19 | - | 48,79 |
| Вес внутренней стены =14кН/м3; =38см; высотой 9,9м 14х0,38х9,9=52,67 | 52,67 | 1,1 | 57,93 |
| Итого: постоянная нагрузка | 103,03 | - | 115,87 |
| 2. Временная | |||
| Снеговая нагрузка 0,5х4,48=2,24кН/м | 2,24 | 1,4 | 3,14 |
| Полезная на перекрытие на 4-х этажах при коэф-те снижения п = 0,8 4х0,8х1,5х4,48=91,5кН/м | 21,5 | 1,2 | 25,8 |
| Итого: временная нагрузка | 23,74 | - | 28,94 |
Нормативная нагрузка на основное сочетание по сеч.2-2
NII= 103.03+2,24х0,9+21,5х0,95=125,46кН/м
Сбор нагрузок по сечению 3-3 А3=5,24м2 (с подвалом)
Табл. 2.6.
| Вид нагрузки | Нормативная нагрузка, NII, кН | Коэффициент надежности по нагрузке f | Расчетная нагрузка, NI, кН |
| 1. Постоянная | |||
| Покрытие (кровля) NII = 1.6х5,24=8,38 кН NI = 2,04х5,24=10,7 кН | 8,38 | - | 10,7 |
| Перекрытие на 4-х этажах NII =4х2,41х5,24=50,52кН NI = 4х2,723х5,24=57,1кН | 50,52 | - | 57,1 |
| Вес стены от пола 1-го этажа высотой 10,5м+2м мансарды =18кН/м3 =51см на длине 2,34м за вычетом веса оконных проемов размером 1,05х1,8см + вес цоколя высотой 1м 18х[(10,5+2)2.24-1.05x1.8]0.51+18х0,51х2,34= =229,68кН | 229,68 | 1,1 | 252,65 |
| Вес стены с теплоизоляцией высотой 1,7-9,9=2,8м в один кирпич = 14кН/м3, толщиной = 120 мм на длине 2,34м NII=14х2,8х0,12х2,34=11кН | 11 | 1,1 | 12,1 |
| Итого: постоянная нагрузка | 299,58 | - | 332,55 |
| 2. Временная | |||
| Снеговая нагрузка 0,5х5,24=2,62 | 2,62 | 1,4 | 3,67 |
| Полезная на перекрытие на 4-х этажах при коэф-те снижения п = 0,8 4х0,8х1,5х5,24 = 25,16кН | 25,16 | 1,2 | 30,19 |
| Итого: временная нагрузка | 23,74 | - | 28,94 |
Нормативная нагрузка на 1м длины стены по сеч. 3-3
3. Выбор рациональной конструкции фундамента
3.1. Проектирование фундамента на естественном основании
3.1.1. Выбор глубины заложения фундамента
Глубину с учетом толщины почвы 0,8м примем равной d1=1,2м.
-
Подбор размеров подошвы фундамента
Рис.3.1. К определению глубины заложения фундаментов
В соответствии со СНиП 2.02.01–83 условием проведения расчетов по деформациям (второму предельному состоянию) является ограничение среднего по подошве фундамента давления p величиной расчетного сопротивления R:
где p – среднее давление под подошвой фундамента, кПа;
R – расчетное сопротивление грунта основания, кПа.
Предварительная площадь фундамента:
где NII – сумма нагрузок для расчетов по второй группе предельных состояний, кПа
R0 – табличное значение расчетного сопротивления грунта, в котором располагается подошва фундамента, кПа;
’ср – осредненное значение удельного веса тела фундамента и грунтов, залегающих на обрезах его подошвы, ’ср = 20 кН/м3;
d1 – глубина заложения фундаментов безподвальных сооружений или приведенная глубина заложения наружных и внутренних фундаментов от пола подвала.
где hS – толщина слоя грунта выше подошвы фундамента со стороны подвала, м;
hcf – толщина конструкции пола подвала, м;
cf – расчетное сопротивление удельного веса конструкции пола подвала, кН/м3.
Для ленточного ф-та b=А/=0,55м; принимаем b=0,6м с укладкой стеновых блоков на бетонную подготовку толщиной 10см.
Рис.3.2. Ленточный фундамент
Определяем расчетное сопротивление грунта основания R для здания без подвала:
где с1 и с2 – коэффициенты условий работы, учитывающие особенности работы разных грунтов в основании фундаментов, с1 = 1,1и с2 = 1,2;
k – коэффициент, принимаемый k = 1,1, т. к. прочностные характеристики грунта приняты по таблицам СНиП.
kz – коэффициент, принимаемый k = 1 (b<10м);
b – ширина подошвы фундамента, м;
II и ’II – усредненные расчетные значения удельного веса грунтов, залегающих соответственно ниже подошвы фундамента и выше подошвы фундамента;
сII – расчетное значение удельного сцепления грунта, залегающего непосредственно под подошвой фундамента, кПа;
db – глубина подвала – расстояние от уровня планировки до пола подвала;
Mr, Mq, Mc – безразмерные коэффициенты;
Mr = 0,32; Mq = 2,29; Mc = 4,85
d1 – глубина заложения фундаментов безподвальных сооружений или приведенная глубина заложения наружных и внутренних фундаментов от пола подвала.
II=/II=18,8 кН/м3 – ниже и выше подошвы один и тот же грунт;
b=0,6м;
d1=1,2м
Фактические напряжения под подошвой фундамента (фундамент центрально нагружен):
где NII – нормативная вертикальная нагрузка на уровне обреза фундамента, кН;
GfII и GgII – вес фундамента и грунта на его уступах;
A – площадь подошвы фундамента, м2.
GfII=24х0,6х1,2=17,3кН/м – 1м длины;
GgII=0 – вес грунта на обрезах;
Условие
выполняется, недогруз фундамента составляет 3,1%, следовательно, размер b=0,6м принимаем окончательным.
-
Проверка прочности подстилающего слабого слоя
Рис. 3.3. К проверке прочности подстилающего слоя
Подстилающий слой – суглинок твердый, имеет Rо=200кПаRо=300кПа предыдущего слоя, следовательно, требуется проверка его прочности. Проверка проводится из условия , чтобы полное давление на кровлю слабого слоя не превышало расчетной на этой глубине:
g(z+d)+zp Rz+d , где
g(z+d) – природное давление на кровлю слабого слоя;
zp - дополнительное давление на кровлю слабого слоя от нагрузки на фундамент;
g(z+d)=18,8х2=37,6 кПа
zpо=18,8х1,2=22,6 кПа – природное давление под подошвой ф-та;
zp=ро
ро=р-zpо=274,5-22,6=251,9 кПа – дополнительное вертикальное давление на основание;
- коэф-т рассеивания определяется в зависимости от относительной глубины.
zp=0,439х251,9=110,6 кПа
Находим ширину условного ф-та bусл из условия:
NII+GII – нормативная нагрузка на подшву фундамента;
zp – дополнительное напряжение на кровлю слабого слоя;
NII+GII=147,4+17,3=164,7 кН/м
Расчетное сопротивление на глубине z+d=2м.
с1=1,25
с2=1
k=1,1
kz=1
II=19.3 кН/м – ниже подошвы (для суглинка) условного ф-та;
II/=18,8 кН/м – выше подошвы;
сII=30 кПа – для суглинков;
by=1.49 м;
d+z=2м;
при =20о;
т.к условие:
g(z+d)+zp =37,6+110,6=148,2 кПа Rz+d=340,4 кПа,
то прочность этого слоя обеспечена.
3.1.4. Определение конечных осадок основания
Расчет основания по деформациям производим исходя из условия:
где S – совместная деформация основания и сооружения, определяемая расчетом;
Su – предельное значение совместной деформации основания и сооружения,
Для определения осадок используем метод послойного суммирования осадок. Для этого, построим эпюры вертикальных напряжений от собственного веса грунта (эпюру zg) и дополнительных вертикальных напряжений (эпюра zp).
Вертикальные напряжения от собственного веса грунта:
где ‘– удельный вес грунта, расположенного выше подошвы фундамента;
dn – глубина заложения фундамента;
i, hi – соответственно удельный вес и толщина i–го слоя;
Удельный вес грунтов, залегающих ниже уровня подземных вод, но выше водоупора:
Дополнительные вертикальные напряжения на глубине z от подошвы фундамента:
где – коэффициент, принимаемый по таблицам СНиП в зависимости от формы подошвы фундамента, соотношения его сторон и относительной глубины, равной = 2z/b;
p0 = p – zg0 – дополнительное вертикальное давление на основание;
p – среднее давление под подошвой фундамента;
zg0 – вертикальное напряжение от собственного веса грунта на уровне подошвы фундамента.
Разбиваем грунт на слои толщиной hi=0.46=0.4х0,6=0,24м,
Ро=251,9 кПа – найдено в предыдущем пункте расчета,
zg0=22,6 кПа,
Расчет осадок проводим по формуле:
где – безразмерный коэффициент, = 0,8;
zp,i – среднее значение дополнительного вертикального напряжения в i – том слое;
hi,Ei – соответственно толщина и модуль деформации i–того слоя грунта.
Расчет ведем до тех пор пока zp0.2zg
Расчет осадки ленточного фундамента
Табл. 3.1.
| Z.м | = 2Z/b | | zp, кПа | zg, кПа | 0,26zg, кПа | Е, МПа | Si (см) |
| 0 | 0 | 1 | 251,9 | 22,6 | 4,5 | 15 | - |
| 0,24 | 0,8 | 0,881 | 222 | 27,0 | 5,4 | 15 | 0,38 |
| 0,48 | 1,6 | 0,642 | 161,7 | 31,6 | 6,3 | 15 | 0,31 |
| 0,72 | 2,4 | 0,477 | 120,2 | 36,1 | 7,2 | 15 | 0,225 |
| 0,96 | 3,2 | 0,374 | 94,2 | 10,6 | 8,1 | 18 | 0,143 |
| 1,2 | 4,0 | 0,306 | 77,1 | 45,3 | 9,0 | 18 | 0,114 |
| 1,44 | 4,8 | 0,258 | 65 | 50,10 | 10,0 | 18 | 0,095 |
| 1,68 | 5,6 | 0,233 | 58,7 | 54,6 | 10,9 | 18 | 0,082 |
| 1,92 | 6,4 | 0,196 | 49,4 | 59,2 | 11,8 | 18 | 0,072 |
| 2,16 | 7,2 | 0,175 | 44,1 | 63,9 | 12,8 | 18 | 0,062 |
| 2,4 | 8,0 | 0,158 | 39,8 | 68,5 | 13,7 | 18 | 0,056 |
| 2,64 | 8,8 | 0,143 | 36 | 73,1 | 14,6 | 18 | 0,05 |
| 2,88 | 9,6 | 0,132 | 33,2 | 77,7 | 15,5 | 18 | 0,046 |
| 3,12 | 10,4 | 0,122 | 30,7 | 82,4 | 16,5 | 18 | 0,043 |
| 3,36 | 11,2 | 0,113 | 28,4 | 87,0 | 17,4 | 18 | 0,04 |
| 3,6 | 12,0 | 0,106 | 26,7 | 91,6 | 18,3 | 18 | 0,036 |
| Si= | 1.75см | ||||||
Из табл. Следует, что граница нижней сжимающей толщи не достигается, но даже в этом случае S=Si=0,8х1,75=1,4смSп=10см – для зданий с кирпичными несущими стенами.
Рис 3.4. Схема распределения вертикальных напряжений в линейно–деформируемом полупространстве
3.1.5. Проектирование котлована
Размеры котлована в плане определяются расстояниями между наружными осями сооружения, расстояниями от этих осей до крайних уступов фундаментов, размерами дополнительных конструкций, устраиваемых около фундаментов с наружных сторон, и минимальной шириной зазора, позволяющего возводить подземные части здания, между дополнительной конструкцией и стенкой котлована (принимаем 1 м). Величину откоса стенок котлована принимаем 1:0,67.
3.2. Расчет и конструирование свайных фундаментов
3.2.1 Выбор типа и размеров свай
В курсовом проекте необходимо запроектировать свайный фундамент из забивных висячих, квадратного сечения железобетонных свай. Размеры свай и глубину их забивки назначаем исходя из следующих факторов:
-
геологических условий;
-
действующих нагрузок;
-
типа ростверка.
Глубину заложения ростверка назначаем, исходя из конструктивной схемы здания. А также принимая во внимание те же условия, которые мы учитывали, назначая глубину заложения фундамента на естественном основании:
-
для безподвальной части здания – df = 0,2 м;
Сопряжение сваи с ростверком назначаем свободным. Длину сваи назначаем исходя из геологических условий (Рис. 6) – l = 3,0 м.
Рис. 3.5. Расчетная схема к определению несущей способности одиночной сваи
3.2.2. Расчет несущей способности одиночной сваи
Несущую способность Fd (кН) висячей забивной сваи, работающей на сжимающую нагрузку, определяем по формуле:
где с = 1 – коэффициент условий работы сваи в грунте;
R – расчетное сопротивление грунта под нижним концом сваи, определяемое из табл. 6.21 [1];
А – площадь опирания на грунт сваи, принимаемая по площади поперечного сечения сваи брутто;
u – периметр поперечного сечения сваи, м;
fi – расчетное сопротивление i–того слоя грунта основания на боковой поверхности сваи, определяемое по табл. 6.20 [1];
hi – толщина i–того слоя грунта, соприкасающегося с боковой поверхностью, м;
сК и сf – коэффициент условий работы грунта соответственно под нижним концом и на боковой поверхности сваи, учитывающие влияние способы погружения на расчетные сопротивления грунта, принимаемые независимо друг от друга (табл. 6.22 [1]).
R=8300 кПа;
А=d2-0.22=0,04 м2;
u=4d=4х0,2=0,8м;
Разбиваем толщу на слои hi=2м и находим:
| h1=2м | h2=2м | |
| z1=1.5м | z2=3м | |
| J 10 | J 20 | |
| f1=38.5 кПа | f2=48 кПа |
Допустимая нагрузка на сваю N=
кН
-
Определение количества свай, размещение их в плане
и конструирование ростверка
Рис. 3.6. Расположение свай в плане под стенами
Число свай в кусте определяем по формуле:
где k – коэффициент надежности, назначаемый в зависимости от способа определения несущей способности сваи;
NI – расчетная нагрузка, действующая по обрезу фундамента, кН;
GfI – ориентировочный вес ростверка и грунта на его обрезах, кН;
Fd – несущая способность одиночной сваи, кН;
Шаг свай :
Шаг свай должен находится в пределах:
d=3х0,2=0,6ма6d=1,2м,
Т.к. шаг свай большой, т.е. а6d, то необходимо либо уменьшить длину сваи, либо выбрать сваи меньшего сечения, т.к. сваи очень мощные, но этого сделать нельзя, т.к. нет свай меньшей длины и меньшего сечения, поэтому примем шаг свай а=6d=1,2м.
3.2.4. Размещение свай в кусте и конструирование ростверка
Шаг свай по расчету - а=1,2м (принят) . Сваи располагаются в один ряд, расстояние от оси сваи до края ростверка 0,2м, а т.к. ширина стены равна 51см, то ширину ростверка примем bp=3d=0.6м. Ростверк проектируем жесткий, монолитный высота ростверка hp=ho+0.25м, где величина заделки головы сваи в ростверк, принимается при жесткой заделке ho=0,3м. Тогда hp=0,3+0.25=0,55м, примем hp=0,6м.
-
Определение конечных деформаций основания свайного фундамента. Окончательный выбор параметров свайного фундамента.
Расчет осадок выполняется по II группе предельных состояний. Расчет по деформациям выполняем как для условного массивного ф-та на естественном основании. Границы условного ф-та:
-
сверху – уровнем планировки «а-б»;
-
снизу – поверхностью «г-в» в уровне нижних концов свай условного ф-та;
-
сбоку – вертакальными полосками «а-б» и «б-в».
Средневзвешенное значение угла внутреннего трения грунтов:
где hi – глубина i-того слоя;
i – угол внутреннего трения i-того слоя;
Ширина подошвы условного ф-та:
By=d+2ltg=0,2+2х3хtg4.6o=0.68м.
Среднее давление по подошве условного фундамента:
где NII – нормативная нагрузка по обрезу фундамента, кН;
Gуф – вес ростверка, свай и грунта в пределах объема условного фундамента, за вычетом объема свай, кН;
lуф, bуф – ширина и длина подошвы условного фундамента, м.
Аусл=bусл=0,68 – для ленточного ф-та – площадь подошвы;
Gуф=Gp+Gсв+Gгр=24х0,36=8,64 кН/м – 1м длины
Объем ростверка:
Vр=1х0,62=0,36 м3
Вес 1 м сваи 0,22т=2,2кН/м, сваи длиной l=3м,
Gсв=2,2х3=6,6 кН,
Учитывая, что на 1 м длины находится 1/а=1/1,2 сваи, находим вес сваи, приходящейся на 1м длины
Вес грунта в объеме условного ф-та за вычетом объема ростверка:
Gгр=0,68(18,8х2+19,3х2)-18,8х0,36=45,1 кН/м
Gуф=8,64+5,5+45,1=59,24 кН/м
Рис 3.7. Схема условного фундамента для расчета по второй группе предельных состояний
=20о;
М=0,51;
Мg=3.06;
Мc=5.66;
R=465,5 кПа – условие выполняется.
Выполняем расчет осадок свайного ф-та. Разбиваем на слои hi=0,4bусл=0,4х68=0,27м;
Природное давление под подошвой:
zgo=18.8х2+18,3х2=76,2 кПа;
ро=рII-zgo=303.5-76.2=227.3 rGf$
zp= ро;
Расчет ведем в таблице 3.2.:
Расчет осадки свайного фундамента
Табл. 3.2.
| Z.м | = 2Z/b | | zp, кПа | zg, кПа | 0,26zg, кПа | Е, МПа | Si (см) |
| 0 | 0 | 1 | 227,3 | 76,20 | 15,2 | 18 | - |
| 0,27 | 0,8 | 0,881 | 200,0 | 81,40 | 16,3 | 18 | 0,320 |
| 0,54 | 1,6 | 0,642 | 146,0 | 86,60 | 17,3 | 18 | 0,260 |
| 0,81 | 2,4 | 0,477 | 108,4 | 91,80 | 18,4 | 18 | 0,190 |
| 1,08 | 3,2 | 0,374 | 85,00 | 97,00 | 19,4 | 18 | 0,145 |
| 1,35 | 4,0 | 0,306 | 69,50 | 102,2 | 20,4 | 18 | 0,115 |
| 1,62 | 4,8 | 0,258 | 58,60 | 106,5 | 21,5 | 18 | 0,096 |
| 1,89 | 5,6 | 0,233 | 53,00 | 109,2 | 21,8 | 20 | 0,075 |
| 2,16 | 6,4 | 0,196 | 44,50 | 112,0 | 22,4 | 20 | 0,065 |
| 2,43 | 7,2 | 0,175 | 39,80 | 114,9 | 23,0 | 20 | 0,056 |
| 2,70 | 8,0 | 0,158 | 35,90 | 117,7 | 23,5 | 20 | 0,051 |
| 2,97 | 8,8 | 0,143 | 32,50 | 120,5 | 24,1 | 20 | 0,046 |
| 3,24 | 9,6 | 0,132 | 30,00 | 123,4 | 24,7 | 20 | 0,042 |
| 3,51 | 10,4 | 0,122 | 27,70 | 126,2 | 25,2 | 20 | 0,038 |
| 3,78 | 11,2 | 0,113 | 25,70 | 129,0 | 25,8 | 20 | 0,036 |
| Si= | 1,50 см | ||||||
Из табл.8 видно, что при z=3.78м от подошвы ф-та
zp=25,8 кПа0,2zg=25.8 кПа;
Осадка свайного ф-та:
S=Si=0.81х1,5=1,2 см Su=10см.
При расчете природного давления для третьего слоя – суглинка полутвердого, лежащего ниже уровня УГВ и ниже водоупорного слоя – суглинка твердого, определяется удельный вес грунта этого слоя с учетом действия воды:
Окончательно принимаем сваи С3-20
Рис 3.8. Схема распределения вертикальных напряжений в линейно–деформируемом полупространстве
3.2.6. Проектирование котлована
Размеры котлована в плане определяются расстояниями между наружными осями сооружения, расстояниями от этих осей до крайних уступов фундаментов, размерами дополнительных конструкций, устраиваемых около фундаментов с наружных сторон, и минимальной шириной зазора, позволяющего возводить подземные части здания, между дополнительной конструкцией и стенкой котлована (принимаем 1 м). Величину откоса стенок котлована принимаем 1:0,67.
3.3. Технико-экономическое сравнение вариантов
При проектировании оснований и фундаментов зданий и сооружений приходится учитывать много факторов, влияющих на выбор проектного решения и разрабатывать несколько вариантов. Выполнение оценок целесообразности того или иного типа фундамента следует производить для здания (сооружения) в целом. Однако, только в рамках курсового проекта, для предварительной оценки технико-экономических показателей запроектированных фундаментов (рис 10, 11) выполняем расчеты, приведенные в табл.
Рис. 3.9. Схема фундамента на естественном основании.
Рис. 3.10. Схема свайного фундамента.
Определение технико-экономических показателей фундамента на естественном основании
Табл. 3.3.
| №№ п/п | Наименование работ | Количество | Стоимость, руб. | Трудоемкость, чел-дн | ||
| на единицу | всего | на единицу | Всего | |||
| 1. | Разработка влажных песчаных грунтов, м3 | 10,75 | 2,3 | 24,73 | 0,32 | 3,44 |
| 2. | Устройство бетонной подготовки под фундаменты, м3 | 0,14 | 23,7 | 3,41 | 0,58 | 0,08 |
| 3. | Устройство монолитного ф-та | 1 | 59,2 | 59,2 | 0,55 | 0,55 |
| Итого | 87,34 | 4,07 | ||||
Определение технико-экономических показателей свайного фундамента
Табл. 3.4.
| №№ п/п | Наименование работ | Количество | Стоимость, руб. | Трудоемкость, чел-дн | ||
| на единицу | всего | на единицу | всего | |||
| 1. | Разработка влажных песчаных грунтов, м3 | 10,75 | 2,3 | 24,73 | 0,32 | 3,44 |
| 2. | Устройство монолитных железобетонных фундаментов и ростверков из бетона марки В15, столбчатых, м3 | 1,58 | 29,6 | 46,8 | 0,72 | 1,14 |
| 3. | Погружение железобетонных свай из бетона марки В25, длиной до 12 м в грунты I группы, шт | 3 | 85,2 | 255,6 | 1,05 | 3,15 |
| Итого | 327,13 | 7,73 | ||||
Вывод: Устройство фундамента на естественном основании для данного здания и при данных инженерно-геологических условиях представляется более рациональным, чем устройство свайного фундамента. В связи с этим предлагаем в данном здании использовать фундамент на естественном основании из сборных железобетонных фундаментов.
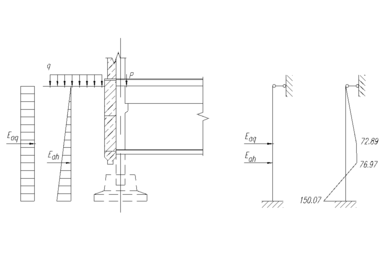
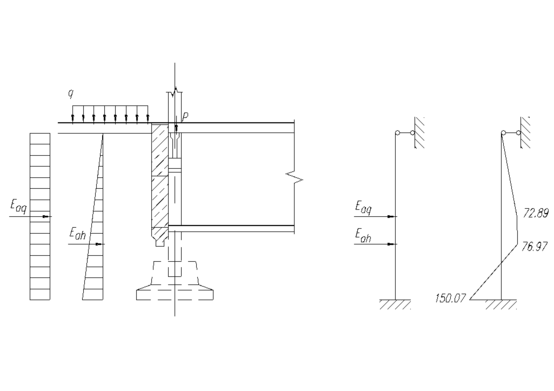
4. Расчет стены подвала
-
Расчет ленточного ф-та под стену подвала
Рис.3.11. Схема ленточного фундамента с подвалом
Приведенная глубина заложения ф-та для зданий с подвалом:
Определяем площадь подошвы ф-та:
NII – нормативная нагрузка на сечении 3-3;
Rо – расчетное сопротивление грунта основания;
b=А/=0,45м,
Т.к. стена толщиной 0,51м, то примем b=0,6м с опиранием блоков на бетонную подготовку толщиной 10см.
Вес фундамента:
Gф=24х0,6х2,4=34,56 кН/м;
Вес грунта на обрезах:
Gгр=0;
Расчетное сопротивление грунта основания R:
Mr = 0,51; Mq =3,06; Mc = 5,66;
Фактические напряжения под подошвой фундамента (фундамент центрально нагружен):
Условие
выполняется, недогруз фундамента составляет 0,3%. Следовательнопринимаем b=0.6м.
4.2. Проверка выбранного фундамента
4.2.1 Проверка условий по подошве фундамента по оси А-А
а) давление от собственного веса грунта:
где - расчетное значение удельного веса грунта;
a – коэффициент активного давления грунта;
где - угол внутреннего трения 2го слоя.
б) давление от полезной нагрузки на прилегающей к подвалу территории:
где q - полезная нагрузка на прилегающей к подвалу территории, q = 10 кПа;
-
Проверка условия по контакту “подошва-грунт”:
4.2.2 Проверка условий по подошве фундамента по оси 3-3
-
Проверка условия по контакту “подошва-грунт”:
4.2.3 Проверка условий по подошве фундамента
от совместного действия моментов
4.3. Определение конечных деформаций основания
Вертикальные напряжения от собственного веса грунта см. Табл. 8.
Дополнительные вертикальные напряжения на глубине z от подошвы фундамента:
p0 = p – zg0 = 116,54 – 70,80 = 45,74
Расчет дополнительных вертикальных напряжений
Табл. 4.1.
| Z | = 2z/b | | zp |
| 0 | 0 | 1 | 45,74 |
| 0,72 | 0,8 | 0,800 | 36,59 |
| 1,44 | 1,6 | 0,449 | 20,54 |
| 2,16 | 2,4 | 0,257 | 11,76 |
| 2,88 | 3,2 | 0,160 | 7,32 |
| 3,60 | 4,0 | 0,108 | 4,94 |
| 4,32 | 4,8 | 0,077 | 3,52 |
| 5,04 | 5,6 | 0,058 | 2,65 |
| 5,76 | 6,4 | 0,045 | 2,06 |
| 6,48 | 7,2 | 0,036 | 1,65 |
| 7,20 | 8,0 | 0,029 | 1,33 |
Рис 13. Схема распределения вертикальных напряжений в линейно–деформируемом полупространстве
Следовательно, фундамент запроектирован верно.
5. Расчет подпорной стены
5.1. Исходные данные
H = 2,3 м;
h = 0,5 м;
= 22;
1 = 0;
2 = 3;
q = 15 кПа;
= 5;
с = 0,5 кПа.
5.2. Расчет вспомогательных данных
Эквивалентная высота грунтового слоя:
Вес призмы грунта BAa1 (BAa2… BAa10):
Величины сил, действующих на стенку:
5.3. Расчет устойчивости стенки
Коэффициент устойчивости k1:
Коэффициент устойчивости k2:
Следовательно, подпорная стена неустойчива и будет сдвигаться.
6. Список использованной литературы
-
“Основания и фундаменты. Методические указания”, Шадунц К. Ш., Краснодар, 1998
-
“Механика грунтов, основания и фундаменты”, Б. И. Долматов, С.-П., Стройиздат, 1988
-
“Механика грунтов, основания и фундаменты”, C. Б. Ухов, М., АСВ, 1994
-
“Справочник. Основания и фундаменты”, под. ред. Г. И. Швецова, М, ВШ, 1991
-
“Технология строительного производства”, Б. Ф. Драченко, М, “Агропромиздат”, 1990















