147937 (692115), страница 3
Текст из файла (страница 3)
Приемы работ, связанные с установкой и снятием детали, записываются так: "Установить деталь", "Снять деталь" и т.д. Приемы обозначаются прописными буквами русского алфавита.
Применяемое оборудование обозначается кратким наименованием с указанием модели. Для инструментов дается краткая характеристика в соответствующих графах.
Наращивание и обработка посадочных поясков.
Коррозийный износ и деформацию поясков гильзы устраняют железнением (предварительное шлифование, нанесение покрытия и окончательное шлифование до исходного размера) или плазменным напылением с последующим оплавлением покрытия (предварительное шлифование, струйная обработка, нанесения покрытия, оплавление покрытия кислородным пламенем, окончательное шлифование восстановленных поясков).
Растачивание гильзы.
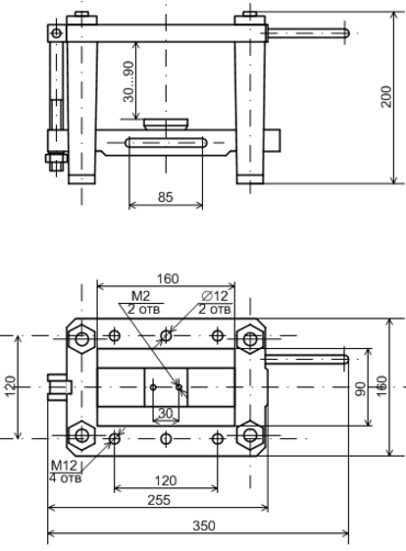
Перед растачиванием "зеркала", гильза цилиндра устанавливается в приспособление для крепления гильз (рис.3), размещённое на столе станка. Растачивание гильз производится под ближайший ремонтный размер, в зависимости от наличия новых поршней стандартного ремонтного размера, на алмазно-расточном станке модели 2А78Н за один проход резцами оснащенными пластинами из эльбора или твёрдого сплава ВК6. Режимы резания: подача - 0,03...0,05 мм/об; скорость резания - 80...100 м /мин; глубина резания - 0,015 - 0,2 мм. Базовыми поверхностями при расточке служат посадочные пояски (5) приспособления и торец опорного бурта гильзы. По неизношенному пояску в верхней части гильзы с помощью индикаторного приспособления (4) совмещают оси шпинделя и гильзы. Следует иметь в виду, что смещение оси гильзы из-за неправильного центрирования при последующем хонинговании исправить невозможно.
3. Конструкторская часть
Станочное приспособление 7307-0006 (кондуктор на ножках). Предназначен для снижения трудоемкости ряда операций при ремонте деталей.
Рис.5. Станочное приспособление 7307-0006 (кондуктор на ножках)
4. Экономическая оценка технологического процесса
Для определения экономической эффективности разработанного технологического процесса надо сравнить:
себестоимость восстановления детали со стоимостью детали по прейскуранту;
себестоимость восстановления детали разными способами.
Себестоимость восстановления детали складывается из заработной платы производственных рабочих, накладных расходов и стоимости материалов, израсходованных на восстановление детали.
Окончательная оценка целесообразности применения разработанного технологического процесса восстановления детали проводится по технико-экономическому критерию, который выражается неравенством
(8)
где СВ - стоимость восстановления гильзы цилиндра, руб;
КД - коэффициент долговечности (КД = 0,79);
СН - стоимость новой детали (принимается по прейскурантам), руб.
Значение СВ находят по формуле
(9)
где СП - полная себестоимость восстановления гильзы цилиндра двигателя автомобиля ЗИЛ-130, руб; Н = 1,05 СП - прибыль (накопление) ремонтного предприятия, руб. Полную себестоимость восстановления детали рассчитывают по формуле
(10)
где СПР. Н - заработная плата производственных рабочих с
начислениями, руб.;
СР. М - стоимость ремонтных материалов, руб.;
СОП, СОХ и СВП - соответственно общепроизводственные, общехозяйственные
и внепроизводственные накладные расходы, руб.
Заработная плата СПР.Н. складывается из основной СПР и дополнительной СДОП
(11)
Основная заработная плата, руб.,
(12)
где ТШ. К - штучно-калькуляционное время, ч;
СЧ - ставка рабочих, исчисляемая по среднему разряду, руб/ч;
КД - коэффициент, учитывающий доплаты к основной заработной
плате, равный 1,025…1,030;
Дополнительная заработная плата производственных рабочих, руб.,
(13)
руб
Заключение и выводы
В ходе выполнения курсового проекта, я научился разрабатывать технологический процесс восстановления гильзы цилиндра двигателя автомобиля ЗИЛ-130. Мною получены и закреплены навыки работы с технической и справочной литературой, технического нормирования и определения потребности детали в восстановлении. Эти навыки я смогу применить в практической деятельности и при дипломном проектировании.
Список литературы
-
Вердашкин Б.Н. и др. Станочные приспособления. - М.: Машиностроении, 1984. - 1200 с.
-
Козловский Н.С. Виноградов А.Н. Допуски, посадки и технические измерения. - М.: Машиностроение, 1982. - 284 с.
-
Румянцев С.Н., Беднев А.Г. Ремонт автомобилей. - М.: Транспорт, 1988. - 327 с.
-
Суханов Б.Н., Борзых И.О., Бедарев Ю.Ф. Техническое обслуживание и ремонт автомобилей: Пособие по курсовому и дипломному проектированию. - М.: Транспорт. 1985. - 223 с.
-
Кагордин В.И., Митрохин Н.Н. Ремонт автомобилей и двигателей. - М.: Мастерство; Высшая школа, 2001. - 496 с.
















