147376 (691889), страница 2
Текст из файла (страница 2)
1. Переключения рельсовых, линейных и сигнальных цепей в зависимости от установленного направления движения;
2. Контроль свободности перегона на прилегающих станциях;
3. Изменения направления движения по перегону с соблюдением всех требований по безопасности движения поездов.
При проектировании АБ составляют принципиальные схемы рельсовых цепей 25 или 50Гц, схемы одиночных и спаренных сигнальных установок проходных и предвыходных светофоров перегона. В полную принципиальную схему сигнальной установки входят цепи кодирования, извещения о приближении поезда к станции или переездам на перегоне, увязка показаний предвыходных светофоров со входными и диспетчерского контроля за движением поездов.
Элементы схемы однопутной АБ переменного тока.
1. Н - реле направления;
2.1Н, 2Н - повторители реле Н;
3.1ПТ, 2ПТ - повторители реле направления;
4.1И, 2И - импульсные реле;
5. Сигнальные реле Ж, Ж1, Ж2, Ж3, З;
6.1НЖ - повторитель реле 1Н и Ж2;
7.1Т, 2Т - трансмиттерные реле;
8. ОИ - обратный повторитель импульсного реле;
9. О, ОД - основное и дополнительное огневые реле
Работа схемы при занятом блок-участке 3П.
Рассмотрим работу АБ при условии нахождения поезда на участке 3П и установленном нечетном направлении движения. Реле Н на всех сигнальных точках возбуждено током прямой полярности, следовательно оно перебрасывает свой поляризованный якорь влево и на каждой сигнальной точке подключает свой повторитель реле 1Н. Своим фронтовым контактом реле 1Н включает в работу реле 1ПТ:
П - 1Н - 1ПТ - М
Фронтовым контактом 1ПТ подключается импульсное питание рельсовой цепи, а тыловым контактом 2ПТ подключается импульсное реле 2И. Так как импульсное реле 2И перестает работать при нахождении поезда на участке 3П, то отключаются блоки дешифратора этого участка, а следовательно и все сигнальные реле. На светофоре 3 загорится красный огонь по цепям:
СХ12 - ДСН - О - 2Н - Ж2 - красный огонь - МСХ
СХ20 - ОД - О - красный огонь - МСХ
Приём из рельсовой цепи кода КЖ.
На участке 5П импульсное реле 2И принимает код КЖ. Вследствие это-го встаёт под ток дешифратор ДА. Так как принимается код КЖ, то под ток встанут все сигнальные реле Ж:
1. П - Н (правый) - 2И - 61 БС ДА - 42 БС ДА - Ж - М
2. П - 82 БС ДА - 71 БС ДА - Ж - Ж1 - М
3. П - Ж1 - Ж2 - Ж3 - М
На светофоре 5 загорится жёлтый огонь по цепи:
СХ12 - ДСН - 1О - 1Н - Ж2 - З1 - жёлтый огонь - Ж3 - МСХ
Трансмиттерное реле 1Т будет подключено к схеме дешифратора для передачи на участок 7П кода Ж по цепи:
П - Ж2 - З1 - Ж (КПТШ) - 81 БИ ДА - 71 БИ ДА - 1Н - 1ПТ - 1Т - 72 БИ ДА - М.
2. Увязка автоблокировки со станционными устройствами
2.1 Принцип увязки АБ с ЭЦ
На подходах к станциям сигнальной установки АБ увязывают как на крупных станциях с БМРЦ, так и на промежуточным, оснащенных устройствами релейной централизации.
В полную схему увязки входят:
Цепи увязки предвходного светофора АБ с входным светофором станции;
Цепи увязки выходных светофоров станции с первым перегонам светофором АБ;
Цепи извещения о приближении к удалении поездов за два и три блок-участка до станции;
Цепи кодирования станционных рельсовых цепей, входящих в маршруты отправления, кодами АЛС соответствующими показаниями первого перегонного светофора АБ.
В зависимости от сигнальных показаний предвходного светофора применяют схему предвходной сигнальной установки типа ОМ с одним мигающим желтым огнем (если на входном светофоре 2 желтых, верхней мигающий) или типа ОМЗ с одним желтым к одним зеленым мигающим (на входном - два желтых огня с зеленой полосой).
При увязке с аб1 имеющей 3-значную сигнализацию, извещения о приближении поезда к станции предусматривает за два блок-участка. На табло ДСП принимается активный контроль участков удаления и приближения. Свободности блок-участков контролируется горением белой лампочки, занятость - красной. Выключенное состояние обеих лампочек указывает на повреждение схемы контроля или контрольных лампочек.
На двух путных участках при организации двухстороннего движения поездов по каждому пути и на однопутных участках на табло устанавливают световые ячейки для сигнализации установленного направления движения: О - "Отправление" зеленого цвета; П - "Прием" желтого цвета; КП - "Контроль перегона" бело-красная двухцветная ячейка. Свободности перегона контролируется горением белой лампочки, занятость - горением красной.
2.2 Схемы увязки однопутной автоблокировки переменного тока
Для управления желтыми и зеленым мигающим огнями используются реле ЗС. включенное по линейной цепи НЗС-НОЗС. В эту же цепь на станции включено известительное реле приближения Н2ИП для контроля занятости второго участка приближения. По цепи извещения НИ-НОИ включен известитель приближения НИН. На сигнальной установки применены реле. обозначение, тип и назначение которых приведены в п.3.3
Состояние цепей схемы соответствует установленному нечетному направлению движения, при котором светофор 1 включен, а светофор 6 выключен.
На время установленного четного направления движения у светофора 6 зеленый огонь включает реле ЗС1. которые работаю как повторитель реле 31.
Назначение элементов схемы увязки.
При построении схемы увязки предвходной светофор 1 имеет 2 дополнительных сигнальный показания: жёлтый или зелёный мигающий. Для управления этими огнями используется сигнальное реле ЗС, включенное по линейной цепи НЗС - НОЗС. В эту цепь на станции включено известительное реле приближения Н2ИП, предназначенное для контроля занятости второго участка приближения.
По цепи извещения НИ - НОИ включён известитель приближения НИП. На сигнальной установке также имеются следующие реле:
реле направления Н и его повторитель 1Н и 2Н. В данном случае установлено нечётное направление движения, и поляризованный якорь реле Н подключает к работе реле 1Н.
сигнальные реле Ж, Ж1, Ж2, Ж3, З и З1. Сигнальные реле чётного направления движения имеют дополнительное обозначение с буквой Ч (ЧЖ и т.д.)
В схеме имеются кодовые цепи, в которые входит кодовый трансмиттер КПТ, блоки дешифратора БИ, БС, БК и трансмиттерное реле 1Т и 2Т. Мигающее реле М и контрольное мигающее КМ обеспечивают мигающий режим работы ламп светофора. В схеме включения ламп светофора используется несколько огневых реле:
О - основное огневое реле;
1О - для контроля целостности основной нити лампы светофора 1;
БОД - для контроля дополнительной нити лампы светофора 1;
2О - для контроля основной нити лампы светофора 6;
АОД - для контроля дополнительной нити лампы светофора 6.
3. Увязка схем перегонных устройств с работой схем переезда
3.1 Расчет времени извещения о приближении поезда к переезду
Чтобы своевременно закрывать переезд при приближении к нему поезда.
рассчитывают длину участка приближения.
Необходимо время извещения о приближении поезда к переезду вычисляется по формуле:
где: t1 - время необходимое автомобилю для проследования переезда, сек; t2 =4сек - время срабатывания приборов цепей извещения и управления сигнализацией: t3 =10сек - гарантийный запас времени
Время t1 рассчитывают по формуле:
где: ln - длина переезда, определяемая расстоянием от переездного светофора. наиболее удаленного от крайнего рельса, до противоположного крайнего рельса плюс 2.5м:
ln=8+1,52=9.52м –
для однопутного участка.
lp =24м - расчетная длина автомобиля.
lo =5м - расстояние от места остановки автомобиля до переездного светофора.
Vp =1.4м/с - расчетная скорость движения автомобиля через переезд, расчетная длина участка приближения:
где: 0,28 - коэффициент перевода скорости из км/с:
Vmax - максимальная скорость движения поездов, установленная на данном участке, км/ч.
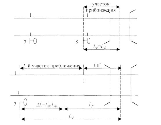
Если переезд расположен от проходного светофора 5 автоблокировки на расстоянии равном расчетной длине участка приближения Lp то фактическая длина участка приближения Lф=Lp. При близком расположении переезда к светофору 5 расстояние расчетной длины Lp больше - чем расстояние до этого светофора. Участок приближения в этом случае устраивают между светофорами 5 и 7. Теперь фактическая длина участка приближения исчисляется от светофора 7 и образуется 2 участка приближения: первой - от переезда до светофора 5 и второй - между светофорами 5 и 7. В этом случае извещения на закрытие переезда будет подаваться за один участок приближения.
Рис.1 Схема для определения участков приближения перед переездом.
3.2 Оборудование переезда
В оборудование переезда входит: поездные светофоры; автоматические шлагбаумами щетки управления переездной сигнализацией: релейная аппаратура установленная в релейном шкафу: источники питания, помещенные в батарейные шкафы.
Поездные светофоры с двумя сигнальными головками выпускают следующих типов: для однопутных участков 11-69: для многопутных участков 11-73. Светофоры с тремя сигнальными головками типа 111-69 применяют на однопутных участках, а типа 111-73 на двух путных участках.
Автоматический шлагбаум состоит из: бетонного фундамента к которому крепится привод заградительною бруса: двух светофорных головок: электрического звонка и светофорной мачты которую устанавливают на корпусе привода.
Брус связан с приводом механизмом через фрикционное устройство, с помощью которого предотвращается остановка электродвигателя и его порча при появлении препятствий для движения бруса. Привод шлагбаума состоит: электродвигателя постоянного тока, шестеренчатого редуктора, автопереключателя, амортизатора и фрикционного устройства.
Электродвигатель шлагбаума имеет следующие технические данные;
Полезная мощность (на валу) - 95 Вт:
Номинальное напряжение - 24В г:
Ток при полной нагрузке на валу - 7Л:
Частота вращения якоря - 2200 об/мин.
Время открытия (закрытия) шлагбаума составляет 7-9 сек.
3.3 Схема управления АПС на однопутном участке с АБ переменного тока частотой 50Гц
Включение АПС происходит за 1 или 2 участка приближений в соответствии с расчетом в любом установленном направлении. В не установленном направлении движении АПС всегда включает за 2 участка приближения. Включается АПС в установленном направлении движения с момента освобождения переезда, а в не установлением направлении - после удаления поезда на расстоянии участка приближении в установленном направлении движении. Правильность работы схемы управления АПС в установленном и не установленном направлениях движения обеспечивается применением счетной схемы.
Включает АПС следующие реле:
1И.2И (ИМВШ-110) - импульсные путевые;
И (ИМШ 1-1700) - общий повторитель импульсных путевых реле;
ДП (АНШ5-1230) - дополнительные путевые;
ДИ (НМПШ2-400) - дополнительное импульсное;
ИП (КМШ-750) - известитель приближения;
ИП1 (АИШМ2-310) - повторитель известитель приближения;
1 ИП (АНП1М2-760) - повторитель известитель приближения;
ПИП (11МШ2-620) - повторитель известитель приближения;
И (КШ 1) - 80) - направления;
1 И.2И (ИМ1 II 1 - 400) - повторители реле И;
В (АР-11 1.15-1600) - включающее;
КТ (АНШМТ-310) - контрольное термическое;
1Т, 2Т (ТШ-65В) - трансмиттерные;
1ПТ, 2ПТ - (НМИШ2-400) - повтори ели реле направления;
К (ИМШ2-900) - контрольные;
Ж.3 (11МШ2-900) - сигнальные;
Ж1 (АИШМ2-760) - повторитель реле Ж;
1С (А1 Ш1М2-3 10) - реле-счетчик;
Б, Б1 (Л111115-1600) - блокирующие;
НИП (АНШМ2-620) - известитель приближения в не установленном направлении;
Б1Ж, Б13 (АНШ5-1230) - блокирующие.















