24513-1 (645615), страница 2
Текст из файла (страница 2)
Если возникнет необходимость убрать свободно висящее гнездо, то пожалуйста, не убивайте насекомых, а попытайтесь переселить их в подходящее место, например в лиственный лес. При этом следует обратить внимание на следующее:
Искусственное гнездовье для шершней.
Лучше всего заручиться поддержкой опытного пчеловода и обезопасить себя соответствующим (защитным) снаряжением, а именно: шляпой с сеткой и рукавицами.
Гнездо лучше снимать после захода солнца или в сырую, холодную погоду. Перенос легче всего удастся, если соты молодых роев небольшие и там находится мало насекомых. При этом гнездо осторожно отрезают ножом от потолка и прикрепляют под дощечкой длиной 20 см, которую можно будет потом подцепить в приготовленном ящике для шмелей.
У гнезд больших размеров удаляются сначала оболочку гнезда недалеко от потолка. Так проделывают в соте верхний паз между двумя сотовыми пластинами, в который просовывают две тонкие деревянные планки длиной 20 см. С их помощью гнездо можно закрепить затем в специальном ящике.
Следите за тем, чтобы в гнезде оставалась матка и как можно больше тружеников. Для этого ящик надо оставить часа на два на старом месте, чтобы насекомые разобрались в новой ситуации. Если у вас появится уверенность, что в ящике собралось наибольшее количество шершней, отверстие можно закрыть и начать перенос на другое место.
Для адаптации насекомых на новом месте в первые дни им надо давать в чашке немного воды с сахаром в соотношении 1:1.
Если в мае или июне шершень заблудится в вашей квартире, возьмите газету и насекомое к открытому окну. Просто это большая, чрезвычайно спокойная и миролюбивая матка ищет подходящее место для гнезда.
Большие старые лиственные деревья в лесах, парках, открытом ландшафте и на обочинах дорог надо сохранить как можно дольше. Они дают убежище в своих пустотах шершням и многим другим насекомым и птицам.
Оберегайте обнаруженные на земле гнезд шершней от того, чтобы их никто не растоптал.
Не выбрасывайте на улицу насекомых, если они вдруг заняли птичий ящик-гнездо. С птицами от этого ничего не случится; шершни при использовании этого ящика являются в определенном смысле .
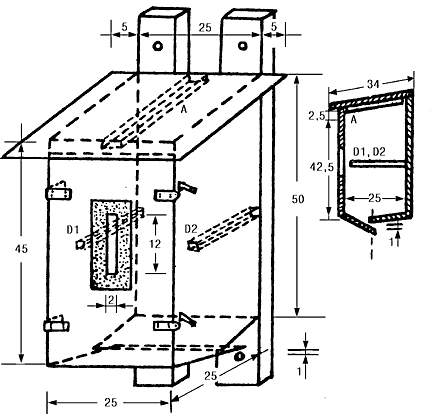
Природных гнезд в пустотах сегодня не хватает для того, чтобы сохранить шершней. В качестве замены этих пустот можно использовать специальные ящики, они годятся и для переселения насекомых. Их надо расположить на южных окраинах лиственных и смешанных лесов и в дальнейшем смотреть за ними. Хорошо подходят для этого перестойные лиственные деревья и островки спелых лесонасаждений, но не в сырых местах. Ящики крепите в укромных местах к дереву алюминиевыми гвоздями или крепко привязывайте их на высоте 4 м от земли. Пространство возле ящиков должно быть свободно от веток. Поскольку шершни разных колоний не уживаются друг с другом, рекомендуем располагать ящики из расстоянии приблизительно 100 м. После отмирания роя осенью соты надо удалить, а ящики почистить.
Если насекомые не занимают ящики, смените место расположения.
Что важно знать при сооружении ящиков:
1. В качестве материала используйте необструганные и непропитанные доски и планки.
2. Приведенные здесь размеры - это минимальные размеры. В подходящих местах ящики могут быть выше.
3. Крышу ящика надо покрыть толем.
4. Планка под крышей ящика предназначена для постройки мягкого первого сота.
5. Планки, расположенные посередине высоты ящика, служит в качестве боковых опор сот.
6. Щель для залёта шершней должна быть обшита тонкой жестью (как защита от дятлов). Длина щели должна позволять залетать шершням и в том случае, если гнезда большие.
7. Пол ящика должен быть сделан под углом, в вершине которого предусмотрена щель. Отверстие в полу предназначено для отвода (вывода) помета и влаги, вентиляции, а также служит в качестве .
8. Две крепежные планки на тыльной стороне ящика предназначены для того, чтобы ящик не шатался на дереве.
Божьи коровки
Кто не знает обыкновенных божьих коровок, или солнышек, маленьких симпатичных красных жучков с черными точками? Они большие наши помощники в борьбе со злейшими вредителями садов и огородов - тлей.
Если в вашей местности много тли, но нет божьих коровок, этих полезных жучков можно развести в домашних условиях.
Вначале коровок нужно собрать. Зимой даже в естественной обстановке у большинства видов коровок наблюдается значительная гибель, которая, безусловно, возрастает при содержании в искусственных условиях. Поэтому сбор жуков лучше проводить весной - будут собраны лишь здоровые особи, благополучно перенесшие зиму.
Если места сбора коровок удалены от места их содержания, то существенное значение приобретает транспортировка жуков. Ранней весной и осенью эта операция не представляет больших трудностей, так как в это время жуки мало активны (особенно осенью), держатся скученно и их в большом количестве можно помещать в фанерные ящики (с вентиляцией) или в деревянные садки, затянутые марлей или капроном. Ящики и садки заполняют сухими листьями, мелкими веточками, в крайнем случае - древесной стружкой. В них перевозит жуков в любое место.
Весной в садки и ящики, в которых транспортируют жуков, кладут сухой и увлажненный изюм, комочки ваты, смоченные 10-15-процентным раствором сахара и водой. Дно закрывают увлажненным мхом-сфагнумом. Соблюдение этих правил крайне необходимо, так как в это время жуки нуждаются в пище и особенно влаге, и быстро гибнут от их отсутствия.
Весной тлей или нет или их мало, поэтому основным кормом служит 10-15-процентный раствор сахара, которым смачивают комочки ваты и раскладывают их в чашки Петри или на дно садков. Туда же помещают кусочки увлажненного сахара-рафинада - излюбленную пищу коровок. После пробуждения коровки особенно нуждаются в капельной влаге, поэтому раз в день в садках разбрызгивают воду и помещают комочки ваты, смоченные водой.
Небольшое количество коровок (20-25 экземпляров) в это время можно содержать и в литровых стеклянных банках, затянутых марлей. Комочки ваты и сахар необходимо в них менять через три-четыре дня.
Коровкам можно давать и пыльцу различных ранневесенних цветущих растений. В каждой местности существует свой набор ранневесенних растений, однако в большинстве случаев, кроме мать-и-мачехи, гусиного лука, наиболее ценны цветущие ивы. Букеты этих растений ставят в пол-литровые банки с водой и помещают в садки. Букеты меняют через три-четыре дня.
Тли в природе появляются в мае сначала на травах, затем на кустарниках и деревьях. С 20 мая тли как корм для коровок перестают быть проблемой и всегда обильны на травах. С середины июня начинается массовое развитие тлей сначала на травах, а затем и на деревьях - яблоне, сливе, абрикосе, черемухе, боярышнике, рябине, осине, иве, тополе. Оно продолжается весь июль, но в конце лета количество тлей заметно снижается.
Чтобы тли дольше оставались живыми, с различных растений срезают побеги, на которых находятся крупные колонии тлей, и ставят в банки с водой или помещают в полиэтиленовые мешочки (их оставляют открытыми, и кладут на дно холодильника, установленного на нормальный режим работы).
Во время смены корма жуки часто разлетаются из садков, особенно в жаркую погоду. Чтобы избежать этого, садки выносят в прохладное затемненное помещение с температурой не выше + 14-15°С. Садки ставят так, чтобы дверка их находилась в направлении, противоположном источнику света. Жуки вскоре собираются на стенке садка, направленной к свету, на дверке их остается сравнительно мало. Затем убирают старый корм и дают новый. Старый корм, вынутый из садков, просматривают, жуков, выползающих на верхние растения, собирают.
Особенно сильно возрастает активность жуков при температуре + 20° С и выше. При такой температуре жуки в садках не питаются, беспрерывно летают, ударяясь о стенки. Поэтому при повышении температуры садки с коровками переносят в помещение с температурой не выше + 14° С. Жуки сразу успокаива ются, не летают, нормально питаются, спариваются, но яиц не откладывают.
При работе с коровками часто возникает надобность в массовом размножении их в лабораторных условиях, особенно при акклиматизации завезенных видов, а также для проведения над ними биологических наблюдений. Для этого 30-100 экземпляров коровок содержат в просторных садках или больших стеклянных банках, закрытых марлей. После того, как закончится спаривание, для облегчения наблюдения за развитием жуков их (по 4-6 штук), рассаживаются в литровые стеклянные банки или небольшие садки. Все садки пронумеровываются.
В садки помещаются растения с находящимися на них тлями. Жуки откладывают на листья яйца. Яйцекладки вместе с листьями, на которых они находятся, переносят в другие садки. Ими могут быть различные стеклянные банки. Яйцекладки раскладываются на свежие сочные листья. Листья в садках меняют ежедневно.
Для проведения биологических наблюдений в каждый садок помещают не более трех яйцекладок, а для получения массовых количеств коровок - 20-30. Яйцекладки просматривают каждый день, и как только некоторые яйца начнут темнеть, что свидетельствует о скором появлении личинок, в садки раскладывают листья или ветви растений с тлями, чтобы личинки сразу имели корм. Если корма в садках нет или мало, то личинки вначале уничтожают оставшиеся яйца, а затем себе подобных. Особенно возрастает агрессивность личинок в последнем возрасте. Поэтому свежий корм в садках подкладывают ежедневно с учетом, что взрослая личинка за сутки способна съесть до 100 тлей. Как только появятся куколки, количество корма уменьшают, но с появлением жуков снова увеличивают. Многие виды коровок проявляют избирательность в питании, поэтому по возможности их выкармливают теми тлями, которым они отдают предпочтение.
Примерно раз в три-четыре дня из садков удаляют высохшие листья растений. Каждый вынутый лист разворачивают и тщательно просматривают, так как в них часто заползают личинки.
Все садки через день проверяют, при этом проводят наблюдение за развитием коровок, а данные заносят в дневник наблюдений.
Для получения потомства от первого поколения всех родившихся жуков помещают в просторный садок и снабжают обильной пищей. Яйцекладки переносят в другие садки, где создают такие же условия, как было изложено выше. Подавляющее большинство коровок в лабораторных условиях способны дать два поколения в год.
Расселение коровок в естественной обстановке проводят в самом начале массового размножения тлей. Если жуков много, несколько тысяч, то накануне расселения их пересаживают в деревянные садки (в каждом садке размером 50-60 см можно поместить до 5 тыс. жуков), где раскладывают свежие ветви и листья растений, на которых находятся тли. На ночь садки оставляют в помещении, где температура не выше +14-15° С. К месту выпуска коровок доставляют ранним утром.
Стрекозы
Помните, что защита стрекоз - это защита водоемов! Возможность любоваться этими красивыми насекомыми мы должны обеспечить и нашим потомкам. Поэтому мы призываем всех юных любителей природы принять участие в сохранении, уходе и создании новых водоемов для стрекоз. Что мы можем сделать?
Стрекозы могут жить только там, где есть пригодные для них влажные участки, как предпосылка для их развития. Но это не только реки и озера, которым уделяется много внимания по экономическим соображениям, а также как местам для отдыха. Особое значение имеют такие многочисленные природные водоемы небольших размеров, как ручьи, пруды, лужи и болота, среди которых различают верховые болота, болота переходного типа и низинные болота.
К сожалению, в прошлом к ним часто не проявляли никакого интереса и уделяли мало внимания. А зря: малые водоемы относятся к тем элементам ландшафта, которые богаче других на виды животных. Здесь могут, к примеру, развиваться 40 видов стрекоз. Малые водоемы в хозяйстве матушки-природы должны выполнять разнообразные задачи, и поэтому для ее охраны они имеют большое значение.
Ручьи надо охранять, в частности, от выравнивания русла и от заточения их в трубы.
Болота будут жизнеспособными только при условии сохранения в них необходимого уровня воды. Поэтому воду из них нельзя выпускать, плохо, если болото зарастает кустами.
Ключевыми моментами в сохранении небольшого водоема со стоячей водой является его защита от . Надо бороться с каждой попыткой засыпать любую влажную ложбину землей, отходами стройматериалов, щебнем, пеплом или мусором.
Водоемы, если они не предназначены для интенсивного разведения рыб, не следует перенасыщать рыбными запасами и неместными видами рыб. Только при этом условии у стрекоз и других мелких животных будет шанс на существование. Помните об этом и тогда, когда захотите разводить в пруду на своем участке золотых рыбок. Во всяком случае больше смысла будет в том, если вы отдадите предпочтение местным видам мелких животных и насекомых.
Проточным водоемам и каналам нужен береговой кустарник местных пород. Больше всего для этого подходит ольха и верба. Личинкам местных водяных стрекоз надо много кислорода. Их шансы на выживание увеличит затенение. Оно является также хорошим средством от интенсивного роста травы, обусловленного перенасыщением удобрениями.
Оборудуя искусственный водоем, его всегда надо делать максимально приближенным к природе, превращая тем самым в эрзац-биотоп для находящихся под защитой животных и растений. Это возможно при наличии по возможности длинных, разнообразных, преимущественно ровных берегов со множеством заливов и полуостровков, островов, песчаных порогов и незатененных тихих заводей глубиной до 50 см, незамерзающей промоины глубиной как минимум 1 м для зимовки животных, песчаных холмов недалеко от водоема, пней и полевых камней в водоеме и возле него, а также местных сортов кустарников, прежде всего на северной стороне водоема.
Кроме ольхи и вербы для этого годятся прежде всего калина, берест, клен, черемуха, ежевика.
Засаживать водоем водными растениями или зарослями тростника в большинстве случаев не надо, поскольку растительность спустя короткий период начнет произрастать сама.















