Condition-s (642047), страница 2
Текст из файла (страница 2)
конечное сопротивление Pф.к = 150 Па
удельная пылемкость П = 570 г/м2
способ регенерации – замена фильтрующего материала.
Требуемая площадь фильтрации:
Fфтр = L / q = 28550/7000=4,01 м2,
Необходимое количество ячеек:
nя = Fфтр / fя = 4,01 / 0,22 = 18,23
к установке принимаем 18 ячеек
Действительная степень очистки
по номограмме 4.4 [2] 1-Е = 18% => д=82%
д > тр
Количество пыли, осаждаемой на 1 м2 площади фильтрации в течении 1 часа.
mуд = L • zext • n / Fф = 28550 • 0,6•10-3 • 0,82 / 4,01 = 3,4 г/м2ч
Периодичность замены фильтрующей поверхности:
рег = П / mуд=570 / 3,4 = 167 ч = 7 сут.
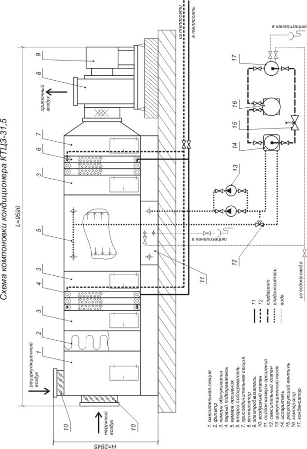
4.2. Камера орошения.
К установке принимается форсуночная камера орошения ОКФ-3 03.01304 исп.1
всего форсунок 63 шт., всего стояков – 7 шт.
4.2.1. ХПГ
процесс обработки воздуха – адиабатный
Коэффициент адиабатной эффективности:
где tвк – температура воздуха конечная (после камеры орошения) tвк =11 оС
tвн – температура воздуха начальная (до камеры орошения) tвк =16,3 оС
tмвн – температура по мокрому термометру tмвн =10,8 оС
Коэффициент орошения =2,0 – по графику на рис. 15.27 [2].
Расход воды на орошение:
Gж = • G = 2,0 • 34260 = 68 520 кг/с
Давление воды перед форсункой:
pж = 80 кПа – по графику на рис. 15.32 [2].
4.2.2. ТПГ
процесс обработки воздуха – политропный – охлаждение и осушение.
Коэффициент адиабатной эффективности:
где Iвк – энтальпия воздуха конечная (после камеры орошения) Iвк =39,5 кДж/кг
tвн – энтальпия воздуха начальная (до камеры орошения) Iвк =59 кДж/кг
Iпрв – предельная энтальпия для данного процесса Iпрв =38,5 кДж/кг
Iпрвн – предельная энтальпия для начального состояния Iпрвн =90 кДж/кг
Коэффициент орошения =0,7 – по графику на рис. 15.27 [2].
Коэффициент политропной эффективности ЕП = 0,25 – по номограмме на рис. 15.27 [2].
Расход воды на орошение:
Gж = • G = 0,7 • 34260 = 23980 кг/с
Относительная разность температур воздуха:
= b • c • • (1/ЕП – 1/ЕА) = 0,33 • 4,19 • 0,7 • (1/0,25 – 1/0,38) = 1,32 оС
где b – коэффициент аппроксимации b=0,33 (кг•оС)/кДж;
сж – удельная теплоемкость воды с=4,19 кДж/(кг•оС)
Температура воды начальная:
где tпрв – предельная температура для данного процесса tпрв =13,8 оС
Температура воды конечная:
Давление воды перед форсункой:
pж = 30 кПа – по графику на рис. 15.34 [2].
4.3. Воздухонагреватели.
Первый воздухонагреватель подбирается для ХПГ, второй – для ТПГ.
К установке принимается воздухонагреватели 03.10114
площадь фасадного сечения Fф = 3,31 м2.
Относительный перепад температур:
В1 = (tвн - tвк) / (tвн - tжн) = (11-16,3) / (11-95) = 0,06– для 1-го подогревателя
где tжн – начальная температура теплоносителя tжн =95 оС
tвн , tвк – начальная и конечная температура обрабатываемого воздуха
В2 = (14,8-18) / (14,8-95) = 0,04– для 2-го подогревателя
Относительный расход воздуха:
G` = G / Gном = 34260 / 37800 = 0,9
где Gном – номинальный расход воздуха для данного кондиционера
По табл.15.18 [2] принимаем тип и схему обвязки базовых теплообменников:
6, параллельно.
По номограмме рис.15.41а [2] определяем:
Ж1 = 0,75 при количестве рядов n=1. – для 1-го подогревателя
Ж1 = 0,8 при количестве рядов n=1. – для 2-го подогревателя
Б = 0,623 – коэф. гидравлического сопротивления нагревателя.
Расход теплоносителя
GЖ1 = G•св•В1/сж•Ж1 = 34260 • 1,005 •0,06 / 4,19 •0,75 = 687 кг/ч– для 1-го подогревателя
GЖ2 = 34260 • 1,005 •0,04 / 4,19 •0,8 = 411 кг/ч– для 2-го подогревателя
Конечная температура теплоносителя:
tжк1 = tжн + Ж1 • (tвн – tжн) = 95 + 0,75 (11 – 95) = 32 оС
tжк2 = 95 + 0,8 (14,8 – 95) = 31 оС
Массовая скорость воздуха в фасадном сечении установки:
V) = G / 3600 • Fф = 34260 / 3600 • 3,31 = 2,9 кг/(м2с)
Потери давления по воздуху:
PВ = 25 Па – по номограмме рис. 15.43 [2].
Потери давления по воде:
PЖ1 = Б • (В1 / Ж1)2 • G`2 •98,1 = 0,623 • (0,06 / 0,75)2 • 0,92 • 98,1 = 0,32 кПа.
PЖ2 = 0,623 • (0,04 / 0,75)2 • 0,92 • 98,1 = 0,14 кПа.
4.4. Холодильные установки.
Холодопроизводительность установки в рабочем режиме:
Qхр = Ах • G • (Iн – Iк) / 3600 = 1,2 • 34260 • (59-39,5) / 3600 = 213 кВт
где: Ах – коэффициент запаса, учитывающий потери холода на тракте хладагента,
холодоносителя и вследствие нагревании воды в насосах, Ах = 1,12 ÷ 1,15;
Iн , Iк – энтальпия воздуха на входе в камеру орошения и выходе из неё.
Температура кипения хладагента:
tих = (tжк + tжн)/2-(4÷6) = (6+11,6) / 2 - 5 = 3,3 °С
температура конденсации хладагента:
tконд = tк.к + (3÷4) = 24 + 4 = 28 °С
температура переохлаждения холодильного агента
tп.х = tк.н + (1÷2) = 20 + 2 = 22 °С
где: tк.н – температура охлаждающей воды перед конденсатором,
ориентировочно принимаемая tк.н = 20°С;
tк.к – температура воды на выходе из конденсатора,
принимаемая на 3÷4°С больше tк.н ,°С.
Температуру кипения хладагента в испарителе следует принимать не ниже 2°С, причем температура воды, выходящей из испарителя, не должна быть ниже 6 °С.
Объемная холодопроизводительность при рабочих условиях:
qvр =(iих – iпх) / Vих = (574,6-420,6)/0,053 = 2905 кДж/м3
где: iи.х – энтальпия паровой фазы хладагента при tи.х , кДж/кг;
iп.х – энтальпия жидкой фазы хладагента при tп.х , кДж/кг;
vи.х – удельный объем паров хладагента при tи.х , кг/м3.
Холодопроизводительность холодильной машины в стандартном режиме
(tн.х =5°C, tконд=35°С, tп.х =30°С):
где: λс – коэффициенты подачи компрессора при стандартном режиме λс=0,76
λр – коэффициенты подачи компрессора при рабочем режиме по табл. 4.6 [3].
qvc – объемная холодопроизводительность при стандартном режиме,
qvc=2630 кДж/м3.
К установке принимаются холодильные машины ХМ-ФУ40/1РЭ холодопроизводительностью 94,7 кВт, в количестве 2 шт.
4.5. Вентиляторные агрегаты.
Аэродинамическое сопротивление:
Р = Рмаг + Рк + Рф + Рко +2 • Рвн = 100 + 50 + 150 + 50 + 2• 25 = 400 Па
где Рмаг –сопротивление магистрального воздуховода принимаем 100 Па
Рк – сопротивление приемного клапана принимаем 50 Па
Рф – сопротивление с фильтра Рф =150 Па
Рко – сопротивление камеры орошения принимаем 50 Па
Рвн – сопротивление воздухонагревателя Рвн = 25 Па
Принимаем вентилятор ВЦ4-75 № 10 Е10.095-1 ГОСТ 5976-90
частота n=720 об/мин;
КПД =0,7;
Потребляемая мощность N = 5,5 кВт
D = 0,95 Dном
Двигатель 4А132М8; m=438 кг
Литература
1. СНиП 2.04.05-91* Отопление, вентиляция и кондиционирование. М.: ГУП ЦПП, 2001. 74с.
2. Справочник проектировщика. Под ред. Павлова Н.Н. Внутренние санитарно-технические устройства. Часть 3. Вентиляция и кондиционирование воздуха. М.: Стройиздат. 1985.
3. Иванов Ю.А., Комаров Е.А., Макаров С.П. Методические указания по выполнению курсовой работы "Проектирование кондиционирования воздуха и холодоснабжение". Свердловск: УПИ, 1984. 32 с.
Министерство образования РФ
Уральский государственный технический университет
кафедра "Теплогазоснабжение и вентиляция"
КОНДИЦИОНИРОВАНИЕ ВОЗДУХА
И ХОЛОДОСНАБЖЕНИЕ
КУРСОВАЯ РАБОТА
ПОЯСНИТЕЛЬНАЯ ЗАПИСКА
преподаватель: Н.П.
студент: С.Ю.
1851929
группа: ТГВ-6 (Екатеринбург)
Екатеринбург
2
004
12
















