165733 (624868), страница 3
Текст из файла (страница 3)
- загрузка на ванну, м (кв.)
3.2 КАРТА ТЕХНОЛОГИЧЕСКОГО ПРОЦЕССА ХРОМИРОВАНИЯ
| № | Наименование операций | Состав раствора | Концент-рация, г/л | Режим работы | ||
| Т,ºС | I, А/дм(кв.) | τ, мин | ||||
| 1. 2. 3. 4. 5. 6. 7. 8. 9. | Загрузка – выгпузка Электрохимическое обезжиривание на катоде и аноде. Вода техническая проточная Анодная активация (перед прогреть дет. В теч. 2-3 мин) Хромирование Промывка в холодной непроточной воде Промывка в хол. Воде Промывка в гор. Воде Сушка детали | Натрий едкий Хромовый ангадрид технич. ГОСТ 2548-77 H2SO4 Хромов. Ангидрид H2SO4 Вода техн. непроточная Вода техн. проточная Вода техн. проточная | 30 – 50 40-50 200-250 2-2,5 200-250 2-2,5 | 18-35 50 50 60-90 90 | 5,3 20-25 50 20-25 20-25 | 10 1 0,5-1 60 1-2 1-2 1 15 |
3.3 ВЫБОР ОБОРУДОВАНИЯ
3.3.1 Темп выхода подвесок рассчитываем по формуле
Где
- эффективный фонд рабочего времени.
- число подвесок в загрузке.
- общая площадь деталей.
3.3.2 Количество ванн хромирования
Где τ1 – длительность поцесса, мин.
Т – Темп выхода загрузочного приспособления, мин.
Принимаем n =9 (ванн хромирования).
Коэффициент загрузки ванн:
Где n, na – расчетное и принятое количество ванн.
В остальных процессах длительность каждой операции ниже Т, поэтому принимаем по одной ванне.
3.3.3 Рассчитаем кол-во операторов
Где
= кол-во позиций в линии (18)
k = коэффициент учитывающий обратные и холостые ходы оператора (к=1,5-2,5)
τ2 – время обслуживания оператором одной ванны.
Передвижение подвески из одной ванны в другую включает: вертикальный подъем τв, время выстоя τвыст=5-6сек., горизонтальное перемещение τг, время остановки τост=2сек., Снова вертикальное перемещение τв, время остановки τост=2сек.:
τ2= τв+ τвыст+ τг+ τост+ τв+ τост
Для тельферных автооператоров
Wг – скорость гор. перемещения равно 17-18 м/мин.
Wв - скорость верт. перемещения равно 8 м/мин.
l – расстояние между ваннами равно 1,1 м.
H – высота подъема приспособления равно 2м.
τв = H/ Wв=2/8=0.25мин.
τг = l/ Wг=1,1/17=0,065мин.
τ2 = 0,25+6/60+0,065+2/60+0,25+2/60=0,73мин.
Принимаем 4 автооператора.
Общее время на обработку одной загрузки деталей:
τ=τ1+τ2=51,41+0,73=52,14мин.
Количество загрузочных приспособлений на линии:
Принимаем 8 загрузочных приспособлений.
4. Конструктивный расчет
4.1 РАЗМЕР ВАННЫ
Длина ванны:
Где
- длина подвески, мм. (1250)
- расстояние между стенкой о подвеской, мм. (150)
- расстояние между подвесками, мм.
мм.
Принимаем длину ванны 1600мм.
Ширина ванны (внутренняя)
Ввн = 2b1 +b2 =2*100+600=800мм.
Где b1 =100мм. – расстояние между осями анодных штанг до стенки.
b2 = 600мм. – расстояние между осями анодных штанг.
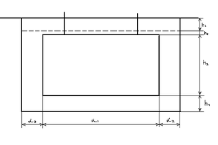
Высота ванны
Определим внутреннюю высоту ванны:
Нвн = h1+h2+h3+h4 =150+50+800+200=1200мм.
Где h1 – 150мм – расстояние от уровня Эл-та до верхнего края ванны.
h2 -20мм. – высота уровня эл-та над подвеской.
h3 – 800мм. – высота подвески.
h4 – 200мм. – расстояние от дна ванны до нижнего края подвески.
Принимаем высоту ванны 1250мм.
Толщина стенок зависит от материала ванны и изоляции. Ванны футерованы кислотостойким пластикатом толщиной 5 мм. Корпус ванны стальной толщиной Ст3, 5мм.
Согласно ГОСТу 23738-79 принимаем размер ванны для промывки и химической обработки 1600*800*1250 мм.
Определим объем эл-та в ваннах хромирования и обезжиривания.
л. =1,4м (куб.)
-
РАСЧЕТ ГАБАРИТОВ ЛИНИИ
Определим длину линии
,
где n – число ванн одного типоразмера,
- ширина ванн, мм. (800мм. – для токовых ванн, 630мм. – для бестоковых ванн),
- ширина сушильной камеры, мм. (630мм.)
- ширина загрузочно-разгрузочной стойки, мм. (600мм.),
Δ
- зазор между сушильной камерой и загрузочно-разгрузочной стойкой (1000мм.),
- кол-во ванн без бортовых отсосов,
Δ
- зазор между стенками ванн без бортовых отсосов,
- кол-во односторонних бортовых отсосов,
Δ
-зазор между стенками ванн с односторонним бортовым отсосом, мм. (290мм.)
- кол-во двусторонних бортовых отсосов,
Δ
-зазор между стенками ванн с двусторонним бортовым отсосом (390мм.)
- ширина одностороннего бортового отсоса, мм. (212мм.)
Определение ширины линии
Вл =
+В1+В2
где
- внутр. длина ванны, мм. (1600мм.)
В1 – Расстояние от внутр. части стенки ванны до наружной плоскости опорной стойки. Принимаем для подвесочных автооператоров 655мм.
В2 - Расстояние от внутр.стенки ванны до наружной плоскости площадки обслуживания, 1165мм.
Вл = 1600+655+1165=3420мм.
-
ВЫСОТА ЛИНИИ
Высота линии Н принимается в зависимости от внутренней высоты ванн и способа обработки изделий (линию обслуживает подвесной автооператор).
Для Н ванн – 1250 мм. И подвесного автооператора высота линии принимается 4700мм.
5. Материальный расчет
5.1 РАСХОД ХИМИКАТОВ ДЛЯ ПЕРВОНАЧАЛЬНОЙ ЗАГРУЗКИ ОБОРУДОВАНИЯ
Где с – концентрайия компонента в ванне г/л.
V – объем электролита, л.
В – количество одноименных ванн
N – количество линий
Ванна анодной активации.
С (CrO3)=250г/л.
Ванна хромирования.
С (H2SO4) = 2,5г/л.
С (CrO3)=250г/л.
5.2 РАСХОД ХИМИКАТОВ НА ЗАМЕНУ РАСТВОРОВ В ВАННАХ ЗА ГОД
Ванна электрохимического обезжиривания – 1 раз в 2 месяца.(6раз в год)
5.3 РАСХОД ХИМИКАТОВ НА ВЫПОЛНЕНИЕ ПРОГРАММЫ
Расход химикатов на выполнение программы складываются из расхода химикатов на замену растворов и потери компонентов электролитов за год
Ванна электрохимического обезжиривания. Норма расхода 0,48л/м(кв.)
Ванна анодной активации. Норма расхода 0, 48л/м(кв.)
Ванна хромирования
Количество хромового ангидрида, расходуемого для выполнения годовой программы, рассчитывается по формуле:
Где F – годовая программа, м(кв.)=25250
-удельный расход хромового ангидрида
=
Где А – количество ангидрида, необходимого для покрытия 1 кв. метра поверхности толщиной 1 мкм. Масса хромового покрытия толщиной 1 мкм. На 1 кв. м. поверхности основы составляет 7г. этой массе хрома соответствует 14г. Ангидрида.
Пв – потери Эл-та в вентиляцию – 0,052 г/кв. м.
х – концентрация хромового ангидрида в Эл-те 250г/л.
δ – средняя толщина покрытия – 12 мкм.
Пд – потери эт-та, уносимого деталями 0,095л/кв. м.
Пк - потери эт-та, при коррекутировке – 0,035л/кв. м
5.4 РАСХОД АНОДОВ
При хромировании применяют свинцовые нерастворимые аноды.
Расход анодов на первоначальный пуск оборудования.
Состав анодов для хромирования:
Свинец – 90%; сурьма- 8%; олово – 2%.
Массу анодов для ванны определяем по формуле
где k1 – отношение суммарной ширены анодов к длине ванны – 0,6
k2 – отношение высоты анодов в глубине ванны – 0,8
n – число анодных штанг - 2
α – длина ванны – 1,6м.
H – высота ванны – 1,25м.
δ - толщина анода – 0,01м.
γ – плотность свинца – 11250 кг/м(куб.)
Кол-во анодов для участка
где G – необходимая масса анодов, для одной ванны, кг.
N – кол-во ванн в одной линии.
C – кол-во автоматических линий.
Аналогично рассчитывается расход анодов на первоначальный пуск для ванн электрохимического обезжиривания и активации
Ванна электрохимического обезжиривания:
Ванна активации:















