150567 (621289), страница 2
Текст из файла (страница 2)
Пройдя крайние пакеты, пар поступает в камеры регуляторов перегрева II-ой ступени, в которых одновременно с охлаждением осуществляется еще один переброс из правой крайней части в левую среднюю, и наоборот. Выйдя из камер регуляторов перегрева IIой ступени, пар поступает во входные камеры средней части горячих пакетов, каждый из которых состоит из 30 пакетов змеевиков (по 3 петли в каждом пакете), и пройдя их прямотоком пар поступает в выходные камеры, откуда по 8 перепускным трубам ø133
77 мм поступает в паросборную камеру.
Барабан котла и сепарационные устройства
Котел ТП-81 имеет один барабан с внутренним диаметром 800 мм, изготовленный из листовой ст. 16ГНМ, толщина стенки барабана - 92 мм, длина цилиндрической части –16200 мм. Барабан установлен на двух роликовых опорах, обеспечивающих его свободное удлинение при нагревании. В середине цилиндрической части барабан жестко прикреплен к металлоконструкциям котла. Барабан предназначен для разделения пароводяной смеси на пар и воду и организации барботажной промывки пара питательной водой. Питательная вода, подогретая в водяном экономайзере до температуры 320-340С, поступает по восьми трубам диаметром 133х10 мм в чистый отсек барабана под слой котловой воды. Для предотвращения термических напряжений в стенке барабана водоподводящие трубы снабжены защитными рубашками.
В барабане котла питательная вода разделяется на два потока: большая часть вводится в водяное пространство, а меньшая (10-15% питательной воды), по 4-ем соединительным трубам (через питательный коллектор диаметром 133х4 мм) поступает на промывочное устройство. Барботажно - промывочное устройство представляет собой горизонтальный дырчатый щит, который состоит из 44-х промывочных листов с отверстиями диаметром 5 мм. На эти листы непрерывно поступает питательная вода.
Листы имеют бортик, в результате чего поддерживается постоянный уровень питательной воды. Избыток питательной воды по сливным коробам поступает в чистый отсек – под уровень котловой воды. Пароводяная смесь из экранов местными коробами подводится к циклонам, которые расположены внутри барабана вдоль боковых стен (12/58 штук (диаметр 315 мм)). В циклонах происходит «гашение» кинетической энергии пароводяной смеси и основная сепарация пара от воды.
Пар из фронтального и заднего экранов поступает в 46 циклонов чистого отсека, а пар боковых экранов сепарируется в 12-и циклонах. Для того чтобы пар из циклонов не попадал в опускные трубы, под ними установлены так называемые «корыта».
Отделившийся в корпусе циклонов пар поднимается вверх и проходит через дырчатый щит где отдает питательной воде растворенные в нем соли. Промывочная вода поступает под уровень котловой воды барабана. После промывки пара питательной водой, он проходит через пластинчатый сепаратор, где происходит вторичная (тонкая) сепарация пара. Для равномерного отвода пара по всей длине барабана в верхней его части расположен потолочный дырчатый щит, который также состоит из 44-х листов.
Сепарационными устройствами второй ступени испарения являются выносные циклоны (426х36 мм, сталь20). В верхней части циклона имеется перфорированный пароприемный потолок, в нижней части расположена крестовина, которая препятствует образованию воронок в опускных трубах.
Пар из циклонов по двум трубам диаметром 133х10 мм поступает под промывочный дырчатый щит первой ступени испарения для промывки. Из водяного объема циклонов предусмотрена непрерывная продувка котловой воды.
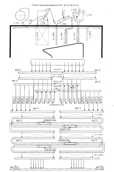
Пароперегреватель. По характеру тепловосприятия пароперегреватель радиационно-конвективного типа и делится на радиационную, полурадиационную и конвективную части. Схема пароперегревателя котла ТП-81 представлена на рис. 8.4.
Радиационная часть - потолочные трубы (диаметром 38х4 мм материал сталь 20), полностью закрывающие верх топки и конвективного газохода.
Полурадиационная часть - ширмы, расположенные над аэродинамическим козырьком на выходе из топки.
Конвективные поверхности пароперегревателя размещены в горизонтальном газоходе - три ступени.
Пар из барабана поступает в потолочный пароперегреватель, экранирует потолок топки, горизонтального газохода, поворотной камеры, возвращается, делает большую петлю на входе в опускной газоход (эта петля является первой частью КПП 1) и поступает на вход в ширмовый пароперегреватель (- 2 ступень пароперегревателя) проходит противотоком средние ширмы и поступает в пароохладитель 1 ступени. Далее с перебросом слева на право пар противотоком проходит крайние ширмы и поступает во входные коллекторы пароперегревателя первой ступени - вторая часть КПП 1. После КПП 1 расположена вторая ступень впрыска. Опять, с перебросом слева на право пар поступает во входные коллекторы третьей ступени пароперегревателя, проходит его также прямотоком и поступает во входные коллекторы пароохладителя третьей, ступени, после чего пар подается на вход четвертой, последней ступени пароперегревателя, проходит ее прямотоком и подается в выходные коллекторы. Откуда пар по двенадцати трубам поступает в паросборную камеру с двумя противоположными выходами.
Таким образом, по ходу пара пароперегреватель условно делится на пять частей
- потолочный пароперегреватель с конвективной петлей (1-я часть конвективного пароперегревателя);
- ширмовый пароперегреватель (20 ширм из V - образных труб), каждая ширма - 33 трубы с шагом 40 мм, материал- сталь 12Х1МФ, диаметром 32х4 мм;
- три ступени конвективного пароперегревателя (1,3 и 4 ступени)
Для уменьшения тепловых перекосов предусмотрена трехкратная переброска пара по ширине газохода.
Первая часть КПП 1 расположена в рассечке ширмового пароперегревателя.
Вторая часть КПП 1 - за пакетами ширмового пароперегревателя.
Третья и четвертая ступени пароперегревателя расположены за второй частью КПП 1 выполненным по прямоточной схеме относительно газов.
Пароперегреватель двухпоточный по пару (с независимым регулированием температуры пара в каждом потоке). Каждая ступень регулирования выполняется в виде двух камер пароохладителей впрыскивающего типа, с диаметром - 325 мм.
Для впрыска используется собственный конденсат, получаемый в четырех конденсаторах, расположенных на отметке барабана котла.
Конденсация насыщенного пара, поступающего из барабана, производится питательной водой после первой ступени ВЭ в установке для приготовления собственного конденсата.
После конденсаторов питательная вода поступает во вторую ступень ВЭ (по 4-м трубам диаметром 159х12 мм, материал сталь 20).
Образовавшийся конденсат собирается в сборнике конденсата и одной трубой (диаметр 133х10 мм, материал сталь 20) направляется к сниженному узлу впрыска, а затем (по 6-ти трубам) - к пароохладителям.
Потолочный пароперегреватель. Из барабана котла по 12-ти трубам (диаметром 108х9 мм) пар поступает во входные камеры потолочного пароперегревателя. Последний экранирует потолок топки, горизонтального газохода и поворотной камеры.
Потолочный пароперегреватель состоит из 174 параллельно включенных змеевиков (трубы змеевиков диаметром 38х4 мм, сталь 20, камеры диаметром 219х26 мм). Шаг между трубами 40 и 80 мм, поверхность нагрева 870 м2 (с конвективной петлей).
Змеевики потолочного пароперегревателя за 3-ей ступенью конвективного пароперегревателя образуют конвективную петлю (1-ая часть КПП).
Ширмовый пароперегреватель
Из выходных камер потолочного пароперегревателя пар поступает во входные смешивающие коллектора «холодных ширм» (по 6-ти трубам диаметром 159х16 мм).
Далее пар поступает во входные коллектора 10-ти «холодных ширм» (10 труб диаметром 133х10 мм).
Каждая ширма- это 33 параллельно включенных змеевика (диаметр 32х4 мм, сталь 12Х1МФ).
Диаметр входного и выходного коллектора ширм 159х16 мм, поверхность нагрева «холодных ширм» 312м2.
Из выходных коллекторов ширм пар поступает в пароохладитель №1 (по 10-ти трубам диаметром 133х10 мм), - где происходит снижение температуры перегретого пара и первая переброска пара по ширине газохода.
Из выходного коллектора пароохладителя пар поступает во входные смешивающие коллекторы «горячих ширм» (по 6-ти трубам диаметром 156х16 мм) и дальше - в выходные коллекторы «горячих ширм» (по 10-ти трубам диаметром 133х10 мм).
Поверхность нагрева «горячих ширм» - 312м2.
Диаметр выходного коллектора - 273х26 мм.
Конвективный пароперегреватель
Из ширмового пароперегревателя пар поступает в конвективный пароперегреватель (по 6-ти трубам диаметром 156х16 мм) первой, затем второй, третьей и четвертой ступеней КПП.
С целью уменьшения тепловой и гидравлической неравномерности конвективная часть разделена на три последовательно включенные ступени, которые расположены в горизонтальном соединительном газоходе. Каждая ступень состоит из 174 пакетов параллельно включенных змеевиков, расположение змеевиков – коридорное с поперечным шагом 80 мм и продольным шагом 60 мм.
Диаметры труб:
Первая ступень (2 часть КПП 1) - 32х5 мм;
Вторая ступень (3 часть КПП) - 32х5 мм;
Третья ступень (4 часть КПП) - 32х6 мм;
Материал труб сталь 12Х1МФ.
Для выравнивания температуры пара по ширине газохода в пароохладителях №2 и №3 (после первой и второй ступеней КПП), осуществляется переброс пара по ширине газохода.
Площадь поверхности нагрева: 1 ступень - 800 м2; 2 ступень - 1340 м2; 3 и 4 ступеней - по 1025 м2.
Максимальная температура металла в обогреваемой зоне не должна превышать значений указанных в таблице.
Регулирование температуры перегретого пара
Для регулирования температуры перегретого пара предусмотрена схема с 3-мя последовательно включенными впрыскивающими пароохладителями.
Расчетное снижение температуры перегретого пара составляет:
1 впрыск - 6 С; 2 впрыск - 11 С; 3 впрыск - 2 С
Температура перегрева для пароперегревателя возрастет при:
-
увеличении нагрузки,
-
снижении температуры питательной воды,
-
увеличении избытка воздуха в топке,
-
переходе на сжигание более влажного топлива,
-
шлаковании экранных труб,
-
затягивании факела в верх топки,
-
- при переходе на сжигание более влажного топлива.
В связи с тем, что пароперегреватель котла ТП-81 имеет обширную конвективную часть, большое влияние на температуру перегретого пара оказывает величина избытка воздуха в топке.
Водяной экономайзер. Расположен в конвективной шахте (опускной газоход). Компоновка 2-х ступенчатая.
По ходу газов первой идет 2-ая ступень – поверхность нагрева 870 м2, а затем, (после воздухоподогревателя 2 ступени); идет 1-я ступень - поверхность нагрева 2580м2.
Водяной экономайзер крепится на пустотелых балках, охлаждаемых воздухом от дутьевого вентилятора.
Для охлаждения водяного экономайзера в период пусков предусмотрена линия рециркуляции ВЭ - барабан, соединяющая входные коллекторы экономайзера с водяным пространством барабана котла.
Между выходными коллекторами 1- ой ступени и входными коллекторами 2-ой ступени смонтирована дренажная линия (опорожнение 2-ой ступени экономайзера).
Шаги труб, мм (S1 x S2): 1 ступень - 80х49; 2 ступень - 85х60
Живое сечение по газам, м2: 1 ступень - 36,8; 2 ступень - 34,0
Живое сечение по воде, м2: 1 ступень - 0,212; 2 ступень - 0,100
Поверхности нагрева м2: 1 ступень - 2580; 2 ступень – 870
Водяной экономайзер изготовлении из труб диаметром 25х3,5, материал труб сталь 20; двухступенчатая компоновка хвостовых поверхностей нагрева, т.е. пакеты водяного экономайзера и воздухоподогревателя установлены в «рассечку».
Схема пароперегревателя котла ТП-81
Воздухоподогреватель трубчатый, двухступенчатый. По ходу газов первой идет 2-ая ступень воздухоподогревателя поверхность нагрева которой 9180 м2, диаметр труб 51х1,5 мм, сталь 3. За 2-ой ступенью воздухоподогревателя следует I ступень водяного экономайзера, а далее - 1 ступень воздухоподогревателя с поверхностью нагрева 19800 м2, диаметр труб 40х1,5 мм сталь3.















