144831 (620762), страница 2
Текст из файла (страница 2)
кН/см2, (2.5.3)
кН/см2;
;
;
.
-
С учётом локальных напряжений;
-
Без учёта локальных напряжений:
Вывод: условие прочности по приведённым напряжениям удовлетворяется.
2.6. Проверка прогиба главной балки
условие удовлетворяется
жёсткость балки обеспечена.
2.7 Расчёт поясных швов
Так как балка несёт статическую, семетрично – приложенную нагрузку, то проектируем односторонние поясные швы.
Сварка полуавтоматическая- свариваемая проволока Св 08А.
Расчётные сопротивление шва
;
Рисунок 5 – Схема поясного шва
Положение шва «в лодочку».
,
Первоначально назначим катет шва
при
Проверяем катет шва на минимальное значение:
, кН/см, (2.7.1)
кН/см ;
, кН/см, (2.7.1)
кН/м;
кН/см;
таблица 38* [4].
Проверка прочности швов
,
,
.
Условия прочности выполняются, следовательно минимального катета
шва достаточно.
2.8. Расстановка рёбер жёсткости. Проверка местной устойчивости
Условная гибкость стенки равна:
, так как
то поперечные рёбра жёсткости необходимо устанавливать.
Так как балка несёт статическую нагрузку, то применяем односторонние рёбра жёсткости, устанавливая их со стороны противоположной односторонним поясным швам.
Рисунок 6 – Сечение стенки
Для одностороннего ребра
.
Толщина ребра
мм.
Назначаем ширину выступающей части ребра
мм, толщину ребра
мм.
Рекомендуемое расстояние между нормами жёсткости для стальных балок несущих статическую нагрузку:
мм. Принимаем
мм.
Рисунок 7 - Расстановка рёбер жёсткости
Проверка местной устойчивости стенки производится по формуле:
(2.8.1)
Проверку местной устойчивости стенки выполняем для отсека, в котором меняется сечение верхнего пояса, так как в нём относительно высокий уровень и нормальных и касательных напряжений в стенке, а локальные напряжения одинаковы во всех точках приложения нагрузок на главную балку (от балок настила), устойчивость стенки в приопорном отсеке обеспечена его небольшими размерами.
В запас устойчивости полагаем расчётные значения нормальных и касательных напряжений в пределах отсека равными их величине в месте изменения сечения.
Расчётные значения напряжений:
- нормальные
кН/см2 (из проверки по приведённым напряжениям в стенке);
- касательное
кН/см (2.8.2)
кН/см.
Для вычисления критических значений напряжений вычисляем вспомогательные параметры:
(2.8.3)
;
Фактическое значение:
.
Коэффициент условного защемления:
Определим граничное условие:
по таблице24 [4].
выбираем второй вариант.
Критические напряжения местного смятия определим по формуле:
, кН/см2 (2.8.4)
где
коэффициент принимаемый по таблице 23 [4]
кН/см2
, кН/см2 (2.8.5)
кН/см2
где
коэффициент принимаемый по таблице 25 [4]
, кН/см (2.8.6)
кН/см.
где
(2.8.7)
местная устойчивость стенки обеспечена с установкой поперечных рёбер жёсткости в 2000 мм.
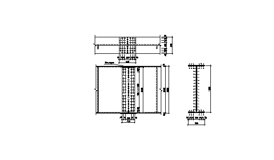
2.9. Расчёт и конструирование монтажного стыка на высокопрочных болтах
Принимаем для стыка болты ø24 мм из стали 40Х “ Селект ” с
.
Отверстия под болты
.
Способ подготовки поверхности – газопламенный без консервации.
Способ регулировки усилия натяжения болтов – по моменту закручивания.
Рисунок 8 – Монтажный стык главной балки на высокопрочных болтах
Расчётное усилие, воспринимаемое одной поверхностью трения при наличии одного болта:
, (2.8.1)
где
- принимаем по таблице 62* [4]
коэффициент условия работы болтовых соединений,
- так как число болтов >10;
.
кН.
2.9.1. Расчёт стыков поясных швов
Количество болтов в стыке поясов определяем по расчётному усилию растяжения воспринимаемому растянутым (нижним) поясом
, кН, (2.8.2)
кН.
Количество болтов с каждой стороны от стыка поясов
,
где
число поверхностей трения (число отрезов);
.
Принимаем 14 болтов.
Ширина накладки снаружи 560 мм (равны ширине пояса).
Толщину накладок определяем из условия их равнопрочности с поясом:
, см, (2.8.3)
.
2.9.2. Расчёт стыка стенок
Определяем шаг:
Стенку балки перекрываем парными накладками
из условия их равнопрочности со стенкой на изгиб.
2.9.3. Проверка ослабленного сечения
Для расчёта стыка стенки определяем долю изгибающего момента воспринимаемого стенкой:
, кН*м, (2.9.3.1)
кН*м.
Стенку балки перекрываем 2-мя накладками толщиной 10 мм:
Назначаем шаг болтов по высоте стенки 100 мм.
Исходя из соображений конструирования, назначаем:
.
Для расчёта стыка стенок, определяя долю изгибающего момента, воспринимающему стенкой балки
, кН*м, (2.9.3.2)
, кН, (2.9.3.3)
,где
см4.
Из опыта проектирования принимаем 2 вертикальных ряда, n=2
Наиболее нагруженный болт в соседней стенке удовлетворяет требованиям прочности.
Проверим прочность сечения поясов по ослабленному сечению:
условие удовлетворяется.
Определим расчётное значение площади:
.
Определим действующие усилия в поясных листах:
.
Проверка ослабленного сечения.
Условие прочности:
,
условия прочности ослабленного сечения соблюдаются.
2.10 Конструкция сварного монтажного стыка главной балки
Ручная электродуговая сварка.
На монтаже сжатый пояс и стенку соединяют прямым стыковым швом, растянутый – наклонным под углом 600 для обеспечения равнопрочности.
Чтобы уменьшить сварочные напряжения: сначала сваривают поперечный стыковой шов стенки (1) и поясов (2), имеющие небольшую поперечную усадку. Остальные незаверенные на заводе участки поясных швов длиной около 500 мм дают возможность поясным листам несколько вытянуться при усадке швов (2). Последними завариваются угловые швы (3), имеющие небольшую продольную усадку.
Рисунок 9 – Монтажный стык составной сварной балки
2.11 Расчёт и конструирование опорной части
Рисунок 10 – Опирание сварной балки на колонну
Назначаем ширину опорных рёбер
.
Требуемая площадь сечения рёбер:
, см2, (2.9.1)
где
кН/см2;
см2.
Толщина ребра:
, см, (2.9.2)
где
см;
см.
Принимаем ближайшее по сортаменту значение:
мм.
Проверяем опорную часть балки на устойчивость:
см;
см.
Рисунок 11 – Сечение опорной стойки
Определим геометрические характеристики:
, см2, (2.9.3)
см2.
, см4 , (2.9.4)
см4;
см;
;
приложение IV, таблица 1 [2].
кН/см2
кН/см2 – условие устойчивости удовлетворяется.
Сварка полуавтоматическая сварочной проволокой Св 08ГА с расчётным сопротивлением
кН/см2.
Положение шва нижнее,
;
;
;
;
Длина шва:
см.
см
см, значит принимаем.
см.
3. РАСЧЁТ И КОНСТРУИРОВАНИЕ ЦЕНТРАЛЬНО-СЖАТОЙ КОЛОННЫ
3.1 Расчётная нагрузка на колонну
Рисунок 12 – Центрально-сжатая сквозная колонна
, кН, (3.1.1)
кН.
Расчётная длина колонны
, м, (3.1.2)
где
отметка верха настила, м;
толщина настила, м;
высота сечения балки настила, м;
высота сечения главной балки, м.
м.
Расчётная длина:
м.
Верхний и нижний конец колонны предполагаются шарнирно-опёртыми, значит
.
3.2. Подбор и компоновка сечения колонны
Колонна относится к III группе конструкций по СНиП2-23-81* «Стальные конструкции», назначим для неё сталь 18кп (С245) с
Определяем требуемую площадь поперечного сечения:
, см2, (3.2.1)
Задаёмся параметром гибкости из опыта проектирования:
, тогда
см2.
Площадь сечения 1 ветви:
см2.
Зададимся профилем.
см.
Назначим по сортаменту I 40Б2 c
;
;
;
;
,
.
Определим гибкость относительно материальной оси:
.
Условие устойчивости:
.
Зададимся гибкостью ветви:
Определим расстояние между планками в свету:
см , следовательно назначаем
см.
Определим требуемую гибкость колонны относительно не материальной оси:
.
Определим радиус инерции:
см.
.
Конструктивное условие:
условие удовлетворяется.
Назначаем размеры планок:
.
Толщина планки:
.
Проверка принятого сечения.
Определим геометрические характеристики:
см4,
условие удовлетворяется.
Для определения гибкости колонны относительно свободной оси, находим соотношение погонных жёсткостей планки и ветви:
,
где
см4,
.
Условие экономичности:
условие удовлетворяется.
3.3. Расчёт и конструирование базы колонны
Соединение базы колонны с фундаментом условно принимаем шарнирным.
Рисунок 13 – База колонны
Принимаем фундамент из бетона В12,5 с
0.75кН/см2- призменная прочность бетона – по СНиП 2.03.01-87* «Бетонные и железобетонные конструкции».
Определим расчётное сопротивление бетона смятию:
кН/см2,















