270357 (620707), страница 6
Текст из файла (страница 6)
К зонам постоянно действующих производственных факторов, связанных с работой монтажных кранов, относятся места, где происходит перемещение грузов. Эта зона ограждается защитными ограждениями по ГОСТ 23407-78.
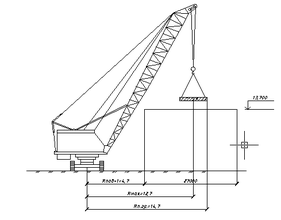
В целях создания условий безопасного ведения работ, действующие нормативы предусматривают зоны: монтажную зону, зону обслуживания краном, перемещения груза, опасную зону работы крана, опасная зона работы подъемника, опасную зону дорог.
1. Монтажная зона:
1/2b+Хот=1/2*1,5+5=5,75м
2. Зона обслуживания крана:
Rmax= 19 м, равна вылету стрелы.
3. Зона перемещения груза:
Rп.гр.= Rmax+0,5lmax.эл.=19+0,5·12 = 25м.
4.Опасная зона работы крана:
Rоп.= Rmax+0,5b+lэл+Хот =19+0,5·1,5+12+7= 38,75м.
Р
ис. 1. Схема зоны действия крана
Расстояния Хот принимаются по табл. 11 при наибольшей высоте здания 14,65м. (до 20м)
Таблица 11 Минимальное расстояние отлета груза при его падении (
)
| Высота возможного падения груза (предмета), м | Минимальное расстояние отлета груза (предмета), м ( | |
| перемещаемого краном | падающего со здания | |
| До 10 | 4 | 3,5 |
| " 20 | 7 | 5 |
| " 70 | 10 | 7 |
| " 120 | 15 | 10 |
| " 200 | 20 | 15 |
| " 300 | 25 | 20 |
| " 450 | 30 | 25 |
| Примечание - При промежуточных значениях высоты возможного падения грузов (предметов) минимальное расстояние их отлета допускается определять методом интерполяции. | ||
2) Проектирование складов
Необходимый запас материалов на складе:
Р = (Робщ/Т)∙Тн∙К1∙К2
где Робщ – кол-во материалов, деталей и конструкций, требуемых для выполнения плана строительства на расчетный период.
Т - продолжительность расчетного периода, дн
Тн - норма запаса материала, дн
К1 =1,3 - коэф. неравномерности поступления материала на склад
К2 =1,3 - коэф. неравномерности производственного потребления материала в течении расчетного периода
Полезная площадь склада:
F=P/V, где
V – кол-во материала, укладываемого на 1 м2 площади склада
Общая площадь склада:
S=F/ß, где
ß – коэф. использования склада.
Таблица 12
| Наименование материалов | Ед. изм. | Робщ | Т | Тн | Р | F | S |
| Кирпич в поддонах (о) | т.шт. | 778,6 | 72 | 6 | 109,65 | 156,64 | 223,78 |
| Сборные ж/б элементы (о) | м3 | 210,34 | 12 | 6 | 177,74 | 148,12 | 211,6 |
| Оконные и дверные блоки (з) | м2 | 308,24 | 9 | 8 | 463,1 | 23,16 | 38,6 |
| Стекло (з) | м2 | 266,58 | 2 | 8 | 1802,08 | 3,6 | 6 |
Итого: 479,98м2 Примечание: (о) - открытый склад S=435,38м2;
(з) - закрытый склад S=44,6м2;
3) Расчет автомобильного транспорта
Необходимое количество единиц автотранспорта в сутки (Ni) по заданному расстоянию перевозки по определённому маршруту:
Ni= Qi∙ tц/Ti∙ gтр∙ Тсм∙ kсм,
где Qi-общее количество данного груза, перевозимого за расчётный период, т;
tц-продолжительность цикла работы транспортной единицы, ч;
Тi-продолжительность потребления данного вида груза, дн.;
gтр-полезная грузоподъёмность транспорта, т;
Тсм-сменная продолжительность работы транспорта, равная 7,5ч;
kсм-коэффициент сменной работы транспорта.
Продолжительность цикла транспортировки груза:
tц= tпр+2 l/ v+ tм,
где tпр - продолжительность погрузки и выгрузки, ч, согласно нормам в зависимости от вида и веса груза и грузоподъёмности автотранспорта;
l - расстояние перевозки в один конец, км;
v - средняя скорость передвижения автотранспорта, км/ч;
tм - период маневрирования транспорта во время погрузки и выгрузки, ч.
Для кирпича:
tц=0,52+2·20/36+0.05=1,68 ч;
Ni=1515,27∙1,68/(21∙7∙7,5∙2)=1,15т,ч/дн.
N=2 (две единицы автотранспорта в сутки).
Для ж/б изделий:
tц=0,43+2·20/30+0.05=1,81 ч;
Ni=284,99∙1,81/(12∙12∙7,5∙2)=0,24т,ч/дн.
N=1 (одна единица автотранспорта в сутки).
Оконные и дверные блоки:
tц=0,53+2·20/40+0.05=1,58 ч;
Ni=98∙1,58/(4∙4∙7,5∙2)=0,84т,ч/дн.
N=1(одна единица автотранспорта в сутки).
Таблица 13
| Наименование и марка элементов | Наименование и вид транспорта | Грузоподъемность | Количество элементов, перевозимых за один рейс | Количество автотранспорных единиц | |
| тягач | прицеп | ||||
| Ж/б изделия | КамАЗ-5320 | 10т | 4 | 1 | |
| Оконные и дверные блоки | ЗИЛ-495810 | 5т | 30 | ||
| Поддоны с кирпичом | КамАЗ-5320 | 10т | 8 | 2 | |
4) Расчет временных зданий на строительной площадке
Согласно графику движения рабочих кадров наибольшее число рабочих в 1 смену на стройплощадке 25 чел., ИТР и служащие-17%= 6 чел., ПСО-3%= 1 чел. Итого 32 чел.
Общее число рабочих во все смены-36чел.
Требуемая площадь временных помещений определяется по формуле
Fтр=N*Fн
Таблица 14
| № | Наименование здания | Числен ность | Норма площади на 1 раб., м2 | Расчетная площадь, м2 | Тип временных помещений |
| 1 | Контора | 4 | 4 | 16 | Инвент.передвижное |
| 2 | Прорабская | 1 | 4,8 | 4,8 | Инвент.передвижное |
| 3 | Гардеробная | 36 | 0,9 | 32,4 | Инвент.передвижное |
| 4 | Душевая | 36 | 0,43 | 15,48 | Инвент.передвижное |
| 5 | Столовая | 36 | 0,6 | 21,6 | Инвент.передвижное |
| 6 | Туалет | 43 | 0,07 | 3,01 | Инд. изготовления |
| 7 | Помещение для обогрева | 36 | 1 | 36 | Инвент.передвижное |
| 8 | Мед.пункт | 43 | 0,07 | 3,01 | Инвент.передвижное |
Принимаем 8 вагончиков 2,5*6 м2 :
- 2 вагончика под гардеробную;
- 4 вагончик под помещение для обогрева и столовую;
- 2 вагончика под контору, прорабскую и мед.пункт;
Душевая и туалет изготавливаются из пиломатериала на стр. площадке, площадь18м2.
5) Электроснабжение строительной площадки
Расчет мощностей, необходимый для обеспечения строительной площадки электроэнергией:
,
где Р – расчетная нагрузка потребителей, кВт;
α – коэффициент, учитывающий потери мощности в сети и зависящий от ее протяженности, сечения (1,05 – 1,1);
К1, К2, К3, К4 – коэффициент спроса, определяемые числом потребителей и несовпадений по времени их работы;
Рс – мощности силовых потребителей, кВт;
Рт – мощности, требуемые для технологических нужд;
Ров – мощности, требуемые для наружного освещения;
cos φ – коэффициент мощности в сети.
Таблица 15
| Наименование потребителей | Единица измерения | Количество | Удельная мощность на единицу измерения, кВт | Коэффициент спроса ,Кс | Требуемая мощность, кВт. |
| Силовые потребители | |||||
| 1.Кран стреловой | шт | 1 | 30 | 0,2 | 12 |
| 2.Сварочные аппараты | 1 | 20 | 0,35 | 10 | |
| 3.Вибраторы | 1 | 1 | 0,15 | 0,25 | |
| 4.Растворобетоносмеситель | 1 | 2 | 0,15 | 0,5 | |
| Внутреннее освещение | |||||
| 1.Отделочные работы | м² | 7309 | (15) 36,5 | 0,8 | 29,2 |
| 2.Бытовые помещения | 120 | (15) 2,25 | 0,8 | 1,8 | |
| 3.Душевые и уборные | 18 | (3 ) 0,048 | 0,8 | 0,038 | |
| 4.Склад закрытый | 44,6 | (15) 0,81 | 0,8 | 0,65 | |
| 5.Склад открытый | 435,38 | (3) 1,47 | 0,8 | 1,18 | |
| Наружное освещение | |||||
| 1.Территория строительства | м² | 13673,4 | (0,2) 2,27 | 1 | 2,27 |
| 2.Кирпичная кладка | 1989,56 | (3) 2,41 | 1 | 2,41 | |
| 3.Монтаж строительных конструкций | м² | 119,88 | (3) 2,41 | 1 | 2,41 |
| Проходы и проезды | |||||
| 1.Проезды основные | км | 0,354 | (5) 0,004 | 1 | 0,004 |
| 2.Охранное освещение | 0,58 | (1,5) 0,765 | 1 | 0,765 | |
| 3.Аварийное освещение | м² | 0,58 | (3,5)0,002 | 1 | 0,002 |
Общая нагрузка по установленной мощности составит:















