48406 (608590), страница 10
Текст из файла (страница 10)
У області Strategy діалогового вікна знаходяться наступні кнопки:
-Strategy File - файл стратегії трасування, тобто сукупність параметрів для трасування (розширення файлу - .STR). За умовчанням має ім'я вхідного файлу;
-Output PCB File - файл із записом результатів трасування (розширення файлу *.РСВ). За умовчанням має ім'я вхідного файлу, але перед ім'ям файлу додається буква R;
-Output Log File - текстовий звіт про результати трасування (розширення файлу *.LOG). За умовчанням має ім'я вхідного файлу, але перед ім'ям файлу додається буква R.
Кнопка Load завантажує готовий файл стратегії. Кнопка Save зберігає вибраний файл стратегії для поточного проекту. Кнопка Set Base встановлює параметри стратегії і імена перерахованих вище трьох файлів за умовчанням.
Кнопка Layers викликає для перевірки або можливих змін діалогове вікно Options Layers.
Кнопка Net Attrs викликає діалогове вікно Edit Nets для перегляду і редагування атрибутів ланцюгів або редагування атрибутів.
Кнопка Via Style викликає діалогове вікно Options Via Style для перегляду і редагування стеків контактних майданчиків. Перехідні отвори, які завжди розташовуються у вузлах сітки трасування, для різних ланцюгів можна задавати за допомогою атрибуту VIASTYLE. Максимальний діаметр перехідного отвору обмежений двома кроками сітки трасування.
Після натиснення на кнопку Passes в діалоговому вікні Pass Selection простановкой відповідних прапорців вибираються типи проходів трасування.
Wide Line Routing - автотрасувальник проводить розводку в першу чергу широких ланцюгів, що мають атрибути AUTOROUTEWIDE і WIDTH. Розводка проводиться тільки в горизонтальному і вертикальному напрямах. Похилі траси проводяться уручну, і при подальшому запуску QuickBoute ширина таких трас трасувальником не змінюється.
Horizontal - трасування простих трас тільки горизонтальними лініями без перехідних отворів з мінімальними, відхиленнями від горизонтальної лінії.
Vertical - трасування простих трас тільки вертикальними лініями без перехідних отворів з мінімальними відхиленнями від вертикальної лінії.
"L" Routes ( 1 via) - формування фрагментів ланцюга, що мають два провідники (вертикальний і горизонтальний), що розташованих в двох різних шарах і сполучаються перехідним отвором. Така конфігурація має вид букви L з різною її орієнтацією. Провідники розміщуються на відстані не більше 100 mil (2,5 мм) від сторін прямокутника, вершини якого розташовані в центрі двох контактних майданчиків, що сполучаються трасою. Якщо протилежні шари плати мають орієнтацію траси відмінну від ортогональної, то даний прохід не використовується.
"Z" Routes (2 vias) - формування фрагментів ланцюга, що мають три провідники (вертикальні і горизонтальні), що розташованих в двох різних шарах і сполучаються двома перехідними отворами. Така конфігурація має вид букви Z з різною її орієнтацією. Провідники розміщуються на відстані не більше 100 mil (2,5 мм) від сторін прямокутника, вершини якого розташовані в центрі двох контактних майданчиків, що сполучаються трасою. Якщо протилежні шари платні мають орієнтацію траси відмінну від ортогональної, то даний прохід не використовується.
"С" Routes (2 vias) - формування фрагментів ланцюга, що мають три провідники (вертикальні і горизонтальні), що розташованих в двох різних шарах і сполучаються двома перехідними отворами. Така конфігурація має вид букви Із з різною її орієнтацією. Провідники розміщуються на відстані більш ніж 100 mil (2,5 мм) від сторін прямокутника, вершини якого розташовані в центрі двох контактних майданчиків, що сполучаються трасою.
Any Node (2 vias) - спроба трассировки.связи між двома контактними майданчиками з введенням не більше ніж двох перехідних отворів з метою виконання якнайповнішого трасування схеми. При цьому оптимізація (мінімізація) довжини траси, на відміну від попередніх проходів, не проводиться.
Maze Routes - оптимізуюче “лабіринтове” трасування, що не має обмежень на орієнтацію провідників на шарі. Немає обмежень і на число перехідних отворів. Максимальне число перехідних отворів для одного ланцюга встановлюється атрибутом MAXVIAS (за умовчанням число перехідних отворів для однієї. траси рівне 10).
Any Node (maze) – “лабіринтове” трасування без оптимізації довжини траси, з метою спроби проведення траси “за всяку ціну”.
Route Cleanup - використовується для поліпшення “зовнішнього вигляду” друкарської платні шляхом випрямлення вже проведених трас. Прохід використовується після завершення розводки всіх електричних ланцюгів.
Via Minimisazion - зменшує число перехідних отворів на розведеній платні.
У рядку Routing Grid вікна Route Autorouters визначається сітка трасування з чотирьох можливих значень кроків трасування: 25 mil, 20 mil, 16,7 -16,6 - 16,7 mil (для нерегулярної сітки) і 12,5 mil. Інші значення кроків трасування, включаючи і метричну систему одиниць, заборонені.
У рядку Line Width вибирається ширина всіх провідників. Мінімальне значення ширини - 0,1 mil (0,01 мм - в метричній системі). Максимальне значення ширини провідників обмежене вибраним кроком сітки трасування. Якщо необхідно задати ширину окремого провідника, то вона визначається при виконанні команди Edit/Nets завданням атрибуту WIDTH.
Область перемикача Error Messages дозволяє вивести повідомлення про помилки на екран монітора (Output to Screen), у файл діагностики (Output to Log File) або як у файл, так і на екран (Output to Both).
Команда Route/Info виводить поточну інформацію про хід трасування. Команда Route/Cancel припиняє процес трасування, а користувач повинен зробити вибір - тимчасово припинити трасування і запам'ятати проміжні результати (Stop Routing and Save), або припинити трасування без збереження результатів (Cancel Routing and do not save).
Після натиснення на кнопку Start процес розводки ланцюгів візуалізується на екрані, а в рядку станів виводяться повідомлення про хід трасування.
Після закінчення трасування у файлі-протоколі .LOG формується інформація про результати виконання окремих кроків трасування і підсумкові дані.
-
Обмеження для QuickRoute:
-Використовуються тільки прості контактні майданчики і перехідні отвори, що мають одну і ту ж форму на всіх шарах;
-Для ланцюгів, що не мають атрибуту AUTOROUTEWIDE, допускається тільки один стиль перехідних отворів;
-Широкі ланцюги, що розводяться на проході Wide Line Routing, повинні мати атрибути VIASTYLE, WIDTH і AUTOROUTEWIDE. Значення ширини провідника і стилі перехідних отворів встановлюються різними для кожного широкого ланцюга;
-Діаметр перехідного отвору не повинен перевищувати подвійного розміру поточної сітки трасування;
-Метрична сітка трасування не вирішується, а дозволені сітки трасування можуть мати кроки 10 mil, 12,5 mil, 16,7-16,6-16,7 mil, 20 mil і 25 mil;
-Ширина провідника не повинна перевищувати половину кроку поточної сітки;
-Атрибут RIPUP трасувальником не підтримується;
-Атрибут MAXVIAS використовується тільки при розводці типу “лабіринт”;
-Для перехідних отворів спеціальну сітку створити не можна;
-Виведення компонентів дозволено повертати тільки на 90;
-Допускається не більше чотирьох шарів металізації.
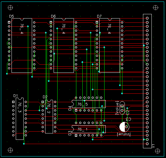
Рисунок. 9.1 - Трасування друкованої плати
-
-
ТЕХНОЛОГІЧНИЙ КОНТРОЛЬ ПЕЧАТНОЇ ПЛАТИ
Після завершення розробки топології друкарської плати і перед формуванням даних для випуску фотошаблонів необхідно перевірити плату на відповідність принциповій схемі, правилам проектування і технологічним обмеженням, тобто тим правилам, які встановлені командою Options/Design Rules. Перевірка проводиться з використанням утиліти DRC (Design Rule Check). Запускається утиліта командою Utils/DRC.
Нижче приводяться опції правил перевірки друкарської платні:
-Netlist Compare - порівняння списку з'єднань поточної друкарської платні і відповідної їй принципової схеми;
-Clearence Violations - перевірка заданих зазорів;
-Text Violations - перевірка правил написання тексту;
-Netlist Violations - перевірка відповідності з'єднань поточної друкарської платні і початкового списку ланцюгів проекту;
-Width Violations - перевірка обмежень на задану ширину трас;
-Unrouted Nets - перевірка на наявність непроведених ланцюгів;
-Unconnected Pins - перевірка неприєднаних виводів;
-Net Length - перевірка обмежень на довжину ланцюгів;
-Silk Screen Violations - перевірка зазорів між контактними майданчиками або перехідними отворами в шарі шелкографії;
-Copper Pour Violations - перевірка правильності виконання зазорів в областях металізації в сигнальних шарах;
-Plane Violations - перевірка у внутрішніх шарах типу “земля” і “живлення” накладення областей металізації, неправильного під'єднування до ним контактних майданчиків, перехідних отворів, ізольованих областей металізації;
-Component Violations - перевірка помилок розміщення компонентів;
-Drilling Violations - перевірка правильності свердлення отворів для штирьових висновків, крізних і глухих перехідних отворів.
У області Report Options указуються наступні опції перевірок:
-View Report - виводить текст звіту на екран монітора.
-Summarize Ignored Errors - кількість ігнорованих помилок;
-Summarize Overriden Errors - кількість помилок, що перекриваються, виведення яких заборонене в закладці Miscellaneous діалогового вікна Options Display команди Options/Display.
У області Error Options використовуються опції:
-Annotate Errors - індикація помилок спеціальними маркерами;
-Clear All Overrides - видалення всіх маркерів помилок, що перекриваються.
Для даної схеми сгенеровано наступний файл:
NETLIST LENGTH VIOLATIONS:
0 warning(s) detected.
0 error(s) detected.
WIDTH VIOLATIONS:
0 warning(s) detected.
0 error(s) detected.
COPPER POUR VIOLATIONS:
0 warning(s) detected.
0 error(s) detected.
PLANE VIOLATIONS:
0 warning(s) detected.
0 error(s) detected.
COMPONENT VIOLATIONS:
0 warning(s) detected.
0 error(s) detected.
DRILL VIOLATIONS:
0 warning(s) detected.
0 error(s) detected.
Netlist:
Errors: 0
Warnings: 0
Ignored Errors: 0
Unrouted Nets:
Errors: 0
Warnings: 0
Ignored Errors: 0
Unconnected Pins:
Errors: 54
Warnings: 0
Ignored Errors: 0
Net Length:
Errors: 0
Warnings: 0
Ignored Errors: 0
Width:
Errors: 0
Warnings: 0
Ignored Errors: 0
Copper Pour:
Errors: 0
Warnings: 0
Ignored Errors: 0
Plane:
Errors: 0
Warnings: 0
Ignored Errors: 0
Component:
Errors: 0
Warnings: 0
Ignored Errors: 0
Drilling:
Errors: 0
Warnings: 0
Ignored Errors: 0
Як бачимо, тільки помилки для неприєднаних виводів мікросхем, але це не вважається суттєвим, тому що дані виводи не використовуються.
-
-
ВИСНОВОК
У курсовій роботі було спроєктовано друковану плату з застосуванням різноманітних алгоритмів для кожного етапу проектування.
Проектування включало в себе розміщення елементів на друкованій платі, компоновки, трасування сполучень ,розподілу по шарах.
Також було застосовано алгоритми оптимізації для етапів розміщення та компоновки, а для трасування використано 2 алгоритми (1 для багатошарового трасування та 1 загальний).
Курсовій роботі була використане спеціалізоване програмне забезпечення – системи автоматизації проектування PCAD, де було сформовано описи логічних елементів в схемі, була спроектована принципова електрична схема в редакторі PCAD Schematic та проведено трасування трасувальником QuickRoute.
В завершення був проведений технологічний контроль печатної плати з використанням утиліти DRC (Design Rule Check).
















