150648 (598882), страница 7
Текст из файла (страница 7)
В целях обеспечения селективности защиты и если это не приводит к завышению сечения проводников, ток каждого аппарата защиты рекомендуется принимать не менее чем на две ступени большим тока предыдущего аппарата. Разница не менее чем на одну ступень обязательна при всех условиях, однако, если водные АВ осветительных щитков приняты с расцепителями только в целях большей устойчивости этих автоматов к токам КЗ, то требование к селективности защиты на них не распространяется. Номинальные токи тепловых расцепителей следует выбирать по расчетным токам защищаемых участков сети с учетом пусковых токов ламп накаливания и газоразрядных ламп высокого давления (ГЛВД). В табл. 7 приведены рекомендации по выбору Iнтр с учетом пусковых токов ИС. Выбор АВ по остальным параметрам аналогичен автоматическим выключателям в силовых линиях и приведен в части II методических указаний. Расцепители АВ в осветительных линиях допускается не проверять по чувствительности их действия, если обеспечено соотношение между длительно допустимым током проводника и номинальным током теплового расцепителя по условию (26).
Таблица 7
Выбор Iнтр автоматических выключателей с учетом пусковых токов источников света
| Аппараты защиты | Отношение номинального тока теплового расцепителя автомата к рабочему току линии, не менее | ||
| для ламп накаливания | Для ГЛВД | для люминесцентных ламп | |
| Автоматические выключатели с тепловыми расцепителями: – с уставками менее 50 А – с уставками 50 А и выше | 1,0 1,0 | 1,4 1,0 | 1,0 1,0 |
| Автоматические выключатели с комбинированными расцепителями: – с уставками менее 50 А – с уставками 50 А и выше | 1,4 1,4 | 1,4 1,0 | 1,0 1,0 |
4. Методические указания по выполнению графической части проекта ОУ
Согласно ГОСТ 21.608-84 «Внутреннее электрическое освещение (переиздан в октябре 2002 г.) на планах осветительных установок» наносят и указывают:
– строительные конструкции и строительные оси;
– наименования помещений, кроме помещений жилых домов. Допускается наименования помещений приводить в экспликации помещений по форме 1 (табл. 8) в соответствии с нумерацией и наименованием, указанным на чертеже.
Таблица 8
Экспликация помещений
– классы взрывоопасных и пожароопасных зон, категорию и группу взрывоопасных смесей для взрывоопасных зон;
– нормируемую освещенность от общего освещения (за исключением жилых помещений);
– светильники (в жилых домах – места их установки), их количество и типы;
– количество и мощность ламп в светильниках;
– высоту установки светильников (кроме потолочных);
– привязочные размеры для светильников или рядов светильников к элементам строительных конструкций или координационным осям здания (сооружения). Привязочные размеры допускается не проставлять, если места установки светильников ясны без указания привязочных размеров или если привязочные размеры приведены на чертежах интерьеров. В этом случае должна быть дана ссылка на соответствующие чертежи;
– комплектные распределительные устройства на напряжение до 1000 В, относящиеся к питающей сети (распределительные щиты, щиты станций управления, распределительные пункты, ящики и шкафы управления, вводно-распределительные устройства) и их обозначения;
– групповые щитки и их обозначения;
– понижающие трансформаторы;
– выключатели, штепсельные розетки;
– линии питающей, групповой сети и сети управления освещением, их обозначения, сечение и, при необходимости, марку и способ прокладки;
– другое электрическое оборудование, относящееся к внутреннему освещению.
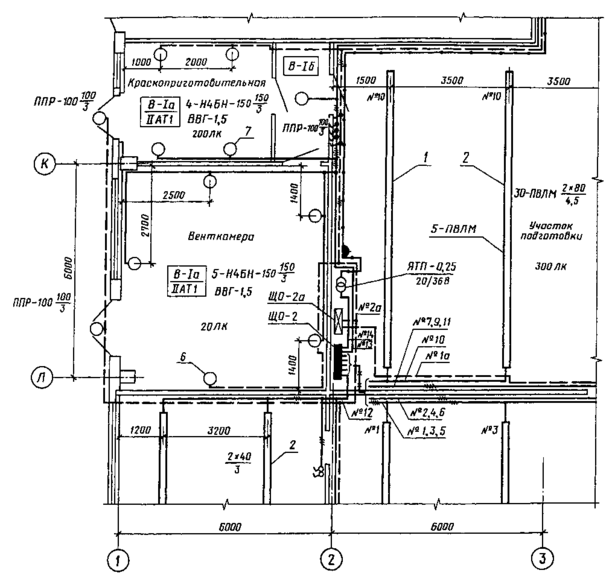
Пример оформления плана ОУ для производственного здания приведен на рис. 9.
Порядок записи условных обозначений на планах ОУ приведен в прил. 18, условные графические изображения – в прил. 19.
Кроме этого на планах ОУ приводят данные о групповых щитках по форме 3а (табл. 9) и принципиальные схемы питающей сети.
Рис. 9. План ОУ производственного помещения
Принципиальные схемы питающей сети выполняют в однолинейном изображении согласно требованиям стандартов Единой системы конструкторской документации (ЕСКД) на правила выполнения электротехнических схем и в соответствиис требованиями ГОСТ 21.608-84.
Пример оформления принципиальной схемы питающей сети приведен в прил. 20.
Допускается не выполнять принципиальные схемы питающей сети при количестве групповых щитков не более четырех и при условии, что все сведения о питающей сети приведены на плане.
Таблица 9
Данные о групповых щитках с автоматическими выключателями
Приложение 1
План механического цеха
Сведения об электрических нагрузках
| Номер на плане | Наименование электроприемника | Установленная мощность ЭП, кВт | |||||||||
| Номер варианта | |||||||||||
| 1 | 2 | 3 | 4 | 5 | 6 | 7 | 8 | 9 | 10 | ||
| 1-3 13-15 | Токарно-винторезный станок | 4,6 | 4 | 4 | 3,8 | 3,2 | 4 | 4,5 | 4,2 | 4,4 | 4,4 |
| 4-6 | Трубогибочный станок | 7 | 7,5 | 7,2 | 8,3 | 6,4 | 6,6 | 6 | 7 | 7,5 | 7 |
| 7-9 | Пресс ножницы | 4,5 | 4 | 4,2 | 3,5 | 3,8 | 4,2 | 3,7 | 4,5 | 4,4 | 4,3 |
| 10-12 | Пресс листогибочный | 15 | 12 | 12,5 | 11 | 14 | 16 | 16,4 | 14 | 13 | 13 |
| 16,17 41,42 | Кран-балка ПВ=40% | 10 | 8,5 | 7,5 | 11 | 12 | 13 | 14 | 14 | 14 | 14 |
| 18-26 | Токарно-винторезный станок | 3,2 | 3,2 | 3,2 | 3 | 2,8 | 2,8 | 3,3 | 3,3 | 3,4 | 3,5 |
| 27-32 | Токарно-винторезный станок | 12 | 10,2 | 11 | 11,5 | 11 | 10,8 | 10,6 | 8,5 | 9,2 | 9,4 |
| 33-36 | Универсальный круглошлифоваль-ный станок | 5,2 | 4,5 | 4,6 | 4,7 | 4,8 | 4,9 | 5 | 5,1 | 5,2 | 5,2 |
| 37-40 | Внутришлифовальный станок | 7,6 | 7,4 | 6,8 | 6,6 | 6,7 | 6,6 | 6,6 | 6 | 6 | 5,5 |
| 43,44 | Молот пневматический | 7 | 6,8 | 6,6 | 6,4 | 6,4 | 7 | 7 | 7,5 | 8,2 | 8,4 |
| 45-47 | Электропечь сопротивления | 30 | 25 | 28 | 32 | 34 | 24 | 28 | 29 | 24 | 30 |
| 48-49 | Молот пневматический | 10 | 7.5 | 8 | 10.5 | 11 | 12 | 13 | 15 | 11 | 12 |
| 50-54 | Печь муфельная | 2,6 | 1,8 | 1,6 | 2 | 2,2 | 2,4 | 2,4 | 2,2 | 2,8 | 1,8 |
| 55,56 | Сварочный агрегат ПВ=50 % | 28 | 15,5 | 14 | 17 | 18 | 19 | 22 | 24 | 32 | 30 |
| 57-61 | Трансформатор сварочный ПВ=40 % | 14 | 12 | 14 | 16 | 10 | 12 | 16 | 16 | 14 | 12 |
| 62-63 | Пр-тель сварочный | 12 | 14,5 | 12,5 | 12 | 14 | 14,5 | 14,5 | 14 | 15 | 1 |
| 64-66 | Машина электросварочного точения | 25 | 22,5 | 22,5 | 20 | 24 | 20 | 24 | 22,5 | 27,5 | 28 |
| 67-70 | Вентилятор | 12 | 11 | 7,5 | 7,5 | 11 | 15 | 11 | 11 | 15 | 15,5 |
Рис. План ремонтно-механического цеха















