62560 (588806), страница 13
Текст из файла (страница 13)
Сравнительный анализ сетевых операционных систем
| Характеристика | Сетевая операционная система | ||
| Windows 2000 | Windows NT | Windows Server 2003 | |
| Производительность | ++ | + | +++ |
| Тип процессора | Pentium 200Мгц (лучше 350Мгц) | Pentium 200Mгц и выше | 1,4 ГГц (процессор с архитектурой x64) или Intel Itanium 2. |
| Объём ОЗУ необходимый для нормальной работы | 128Мб (лучше 256 или 512Мб) | 16Мб (лучше 24Мб) | 8 Гбайт |
| Необходимый для инсталяции объём на жёстком диске | 900Мб | 50Мб | 32 Гбайт |
| Совместимость с другими типами сетей | + | + | + |
| Разрядность | 32 бит | 32 бит | 32/64 бит |
| Многозадачность | + | + | + |
| Защита и надёжность | Система аутэтенди-фикации, система прослеживания тран-закций, поддержка протокола безопас-ности IP Security Protocol зеркализация дисков, поддержи-вает кластеризацию с интегрированной балансировкой нагрузки, контроль сигналов от UPS | Система аутэтендификации, файловая система основанная на транзакциях, поддержка RAID 5 уровня, возможность распознавания сигналов от UPS | Система аутэтендификации, система прослеживания транзакций, зеркализация дисков, «горячее» резервирование дорожек диска, каналов и целых серверов, контроль сигналов от UPS |
| Простота управления | +++ | ++ | +++ |
| Интерфейс | Графический | Графический | Графический |
| Простота установки | +++ | ++ | +++ |
Приложение Г
Логическая схема сети
Приложение Д
План помещений и размещения оборудования сети (четвертый этаж)
Приложение Ж
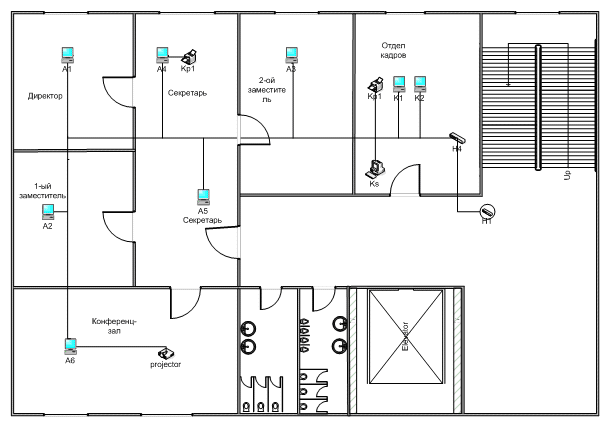
План помещений и размещения оборудования сети (третий этаж)
Приложение И
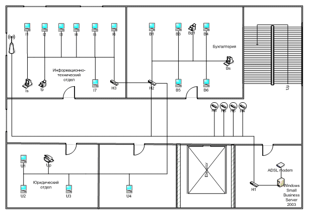
План помещений и размещения оборудования сети (второй этаж)
Приложение К
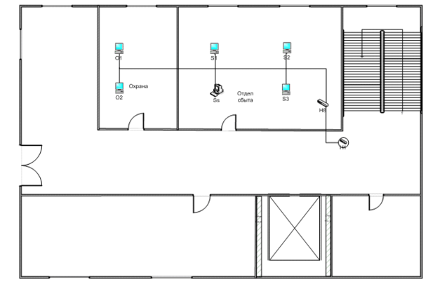
План помещений и размещения оборудования сети (первый этаж)
Приложение Л
План помещений и размещения оборудования сети (второй корпус - производственный отдел)















