48685 (588600), страница 4
Текст из файла (страница 4)
Рис.1.11
Очень удачный программный продукт российских разработчиков. Лучшее 2-х мерное планирование рис.1.11, отличная графика, быстрое создание проектов с привязкой по растениям, легка в обучение. Много различных объектов, от беседок, до теннисных кортов.
Но есть некоторая кривизна продукта. Например, что бы создать неправильной формы пруд, приходится накладывать друг на друга несколько овалов и квадратов. Хотя если привыкнуть, никаких затруднений не вызывает. Имеется возможность просмотра участка ночью, при различном освещении. Огромную базу растений, более 5000 видов, с возможностью выборки и фильтрации по критериям, а так же добавления и редактирования.
И, при всех его хороших качествах, есть минусы. 3-х мерный вид проекта оставляет желать лучшего, а лучше его и вообще не печатать, ограничится только плоским планом.
Достоинства
Отличный 2-х мерный вид, огромная база данных растений, с возможность добавления и редактирования.
Недостатки
Плохая 3-х мерная графика, нет импорта/экспорта объектов.
Выводы
Предназначен для качественного планирования и отображения в 2-х мерном виде. Для понимания самим дизайнером, где что у него растет. Нет необходимости перелистывать тонны книг, вспоминая, что же нужно садить во влажную почву в тени и т.п. Достаточно сделать выборку из базы данных, с определенными критериями и все.
Стоимость продукта
100$. Поставляется с электронным ключом. Пиратских версий нет.
CAD-программы
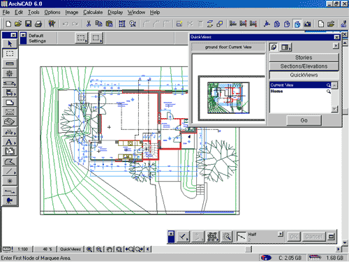
Рис.1.12
Мощный и профессиональный продукт для архитектурного моделирования. Довольно детально позволяет представить модель будущего проекта (здания, строения, участка), учитывая всевозможные размеры, нагрузку на конструкции и т.п. Очень широко распространен среди архитекторов. Изучается во всех ВУЗах как основное средство проектирования.
В качестве программы для визуализации и 2-х мерного представления будущего ландшафта приспособлен мало. Нет ни базы растений, не очень наглядный 2-х мерный план, а уж о 3-х мерном вообще нечего говорить - больше похоже на рисунки. Для изучения - сложен. Множество ненужных и мешающих работе настроек, окон (рассматривается как ландшафтное средство), рис1.12. Хотя и доступно множество различных объектов: здания, деревья, предметы и т.п., качество визуализации отвратительное, говорить о реалистичности проекта не приходится рис.1.13.
рис.1.13
Достоинства
Профессиональное планирование в в схематике.
Недостатки
Программа не предназначена для специфичного ландшафтного проектирования и не учитывает его специфики, плохой 3D вид.
Выводы
Семейство CAD используется архитекторами в качестве профессионального инструмента проектирования, но учитывая все доблести продукта, его спец. функции планирования 3-х мерный вид будущего проекта оставляет желать лучшего.
Стоимость продукта
Около 2000$, поставляется с электронным ключом, есть русифицированная версия.
ВЫВОДЫ
Оптимальное соотношение простота использования/конечный результат дают программы:
"Sierra Land 3D", "Наш Сад pro" и "Punch! 3D".
"Наш Сад pro" с его хорошим (красивым) 2-х мерным планом, обширнейшей базой данных по растениям, возможностью выборки и "Punch! 3D" & "Sierra Land 3D"с приемлемой 3-х мерной графикой, простотой обучения и быстротой создания сцен являются на сегодняшний день наилучшим решением.
Неплохая альтернатива "Expert Landscape Design 3D".
Как вариант, можно использовать в качестве схематичного проектирования CAD-программы, а графику делать в других.
Важно понять, продукты, созданные специально для ландшафтного проектирования предлагают шаблонные и скупые решения, сделать что то свое практически невозможно. В то же время, программы для общего моделирования предлагают намного больше возможностей, но требуют больше ресурсов, как человеческих так и программных.
P.S. Рисование, как метод 3-х мерного представления ландшафта не рассматривалось, хотя и используется дизайнерами как основной метод представления проекта.
2.Разработка структуры САПР и АРМ
2.1.Принципы построения САПР
2.1.1.Цель создания САПР
Решение проблем автоматизации проектирования с помощью ЭВМ основывается на системном подходе, т. е. на создании и внедрении САПР - систем автоматизированного проектирования технических объектов, которые решают весь комплекс задач от анализа задания до разработки полного объема конструкторской и технологической документации. Это достигается за счет объединения современных технических средств и математического обеспечения, параметры и характеристики которых выбираются с максимальным учетом особенностей задач проектно-конструкторского процесса. САПР представляет собой крупные организационно-технические системы, состоящие из комплекса средств автоматизации проектирования, взаимосвязанного с подразделениями конкретной проектной организации.
Под автоматизацией проектирования понимают систематическое применение ЭВМ в процессе проектирования при научно обоснованном распределении функций между проектировщиком и ЭВМ и научно обоснованном выборе методов машинного решения задач.
Цель автоматизации - повысить качество проектирования, снизить материальные затраты на него, сократить сроки проектирования и ликвидировать рост числа инженерно-технических работников, занятых проектированием и конструированием.
Научно обоснованное распределение функций между человеком и ЭВМ подразумевает, что человек должен решать задачи, носящие творческий характер, а ЭВМ — задачи, решение которых поддается алгоритмизации.
Существенным отличием автоматизированного проектирования от неавтоматизированного является возможность замены дорогостоящего и занимающего много времени физического моделирования — математическим моделированием. При этом следует иметь в виду одно важнейшее обстоятельство: при проектировании число вариантов необозримо. Поэтому нельзя ставить задачу создания универсальной САПР, а необходимо решать вопросы проектирования для конкретного семейства машин.
Для создания САПР необходимо:
-
совершенствовать проектирование на основе применения математических методов и средств вычислительной техники;
-
автоматизировать процессы поиска, обработки и выдачи информации;
-
использовать методы оптимального и вариантного проектирования; применять эффективные, отражающие существенные особенности, математические модели проектируемых объектов, комплектующих изделий и материалов;
-
создавать банки данных, содержащих систематизированные сведения справочного характера, необходимые для автоматизированного проектирования объектов;
-
повышать качество оформления проектной документации;
-
повышать творческую долю труда проектировщиков за счет автоматизации нетворческих работ;
-
унифицировать и стандартизовать методы проектирования;
-
подготавливать и переподготавливать специалистов;
-
реализовывать взаимодействие с автоматизированными системами различного уровня и назначения.
Комплекс средств автоматизации проектирования включает методическое, лингвистическое, математическое, программное, техническое, информационное и организационное обеспечение.
2.1.2. Состав САПР
САПР — система, объединяющая технические средства, математическое и программное обеспечение, параметры и характеристики которых выбирают с максимальным учетом особенностей задач инженерного проектирования и конструирования. В САПР обеспечивается удобство использования программ за счет применения средств оперативной связи инженера с ЭВМ, специальных проблемно-ориентированных языков и наличия информационно-справочной базы.
Структурными составными составляющими САПР являются подсистемы, обладающие всеми свойствами систем и создаваемые как самостоятельные системы. Это выделенные по некоторым признакам части САПР, обеспечивающие выполнение некоторых законченных проектных задач с получением соответствующих проектных решений и проектных документов.
По назначению подсистемы САПР разделяют на два вида: проектирующие и обслуживающие.
Процесс проектирования реализуется в подсистемах в виде определенной последовательности проектных процедур и операций. Проектная процедура соответствует части проектной подсистемы, в результате выполнения которой принимается некоторое проектное решение. Она состоит из элементарных проектных операции, имеет твердо установленный порядок их выполнения и направлена на достижение локальной цели в процессе проектирования. Под проектной операцией понимают условно выделенную часть проектной процедуры или элементарное действие, совершаемое конструктором в процессе проектирования. Примерами проектных процедур могут служить процедуры разработки кинематической или компоновочной схемы станка, технологии обработки изделий и т. п., а примерами проектных операций — расчет припусков, решение какого-либо уравнения и т. п.
Структурное единство подсистем САПР обеспечивается строгой регламентацией связей между различными видами обеспечения, объединенных общей для данной подсистемы целевой функцией. Различают следующие виды обеспечения:
-
методическое обеспечение — документы, в которых отражены состав, правила отбора и эксплуатации средств автоматизации проектирования;
-
лингвистическое обеспечение — языки проектирования, терминология;
-
математическое обеспечение — методы, математические модели, алгоритмы;
-
программное обеспечение — документы с текстами программ, программы на машинных носителях и эксплуатационные документы;
-
техническое обеспечение — устройства вычислительной и организационной техники, средства передачи данных, измерительные и другие устройства и их сочетания;
-
информационное обеспечение — документы, содержащие описание стандартных проектных процедур, типовых проектных решений, типовых элементов, комплектующих изделий, материалов и другие данные;
-
организационное обеспечение — положения и инструкции, приказы, штатное расписание и другие документы, регламентирующие организационную структуру подразделений и их взаимодействие с комплексом средств автоматизации проектирования.
2.1.3. Стадии создания САПР
Создание и развитие САПР осуществляется самой проектной организацией с привлечением (при необходимости) других организации-соисполнителей, в том числе научно-исследовательских институтов и высших учебных заведений. Следует подчеркнуть, что создание САПР — сложная и трудоемкая работа, выполнение которой под силу только большому высококвалифицированному коллективу разработчиков.
Процесс создания САПР включает в себя восемь стадий: предпроектные исследования, техническое задание, техническое предложение, эскизный проект, технический проект, рабочий проект, изготовление, отладка и испытание, ввод в действие.
Руководство разработкой, внедрением, эксплуатацией и модернизацией систем и компонентов САПР в проектной организации должно заниматься специализированное подразделение, включающее группы специалистов соответствующих направлений.
Предпроектные исследования проводятся для выявления готовности конкретной проектной организации к внедрению автоматизированных методов. Основу этой работы составляет системное обследование объекта проектирования и используемых в инженерной практике традиционных методов и приемов проектирования, а также объема технической документации, разрабатываемой в процессе проектирования. Процесс обследования осуществляется главным образом опросом опытных проектировщиков и конструкторов.
В результате обследования определяется необходимость и экономическая эффективность создания автоматизированной системы. При этом учитывается объем проектно-конструкторских работ, их периодичность, общие затраты инженерного труда, возможность создания адекватного математического описания и оптимизационных процедур, необходимость повышения качественных показателей проектируемого изделия, сокращение сроков проектирования.
Существенным фактором при решении вопроса о целесообразности создания САПР является подготовленность соответствующего проектного подразделения к созданию и внедрению САПР. Подготовленность может быть оценена по следующим критериям:
-
возможность формализации проектно-конструкторских задач и реализации математических методов их решения;
-
наличие требуемых технических средств и необходимость приобретения и установки дополнительных агрегатов;
-
подготовленность информационных фондов и технических средств хранения и обработки информации.
Кроме того, важно выявить факторы оценки подготовленности кадров для эксплуатации САПР, к которым можно отнести следующие:
-
соответствие внедряемой системы принятой организации проектных работ;
-
наличие в проектно-конструкторской организации кадров для эксплуатации и поддержания работоспособности САПР;
-
отношение руководства организации к созданию си-темы и уровень организации этих работ;
-
психологическая подготовленность коллектива к внедрению САПР.
Техническое задание (ТЗ) является исходным документом для создания САПР и должно содержать наиболее полные исходные данные и требования. Этот документ разрабатывает головной разработчик системы. ТЗ на создание САПР должно содержать следующие основные разделы:
«Наименование и область применения», где указывают полное наименование системы и краткую характеристику области ее применения;
«Основание для создания», где указывают наименование директивных документов, на основании которых создается САПР;
«Характеристика объектов проектирования», где приводят сведения о назначении, составе, условиях применения объектов проектирования;
«Цель и назначение», где перечисляют цель создания САПР, ее назначение и критерий эффективности ее функционирования;















