147106 (580147), страница 2
Текст из файла (страница 2)
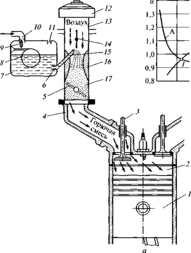
Пусковое устройство (рис. 6) обеспечивает приготовление богатой смеси, что способствует быстрому пуску и прогреву холодного двигателя. В нем предусмотрены мембранный и рычажный механизмы для закрытия воздушной заслонки 7и прикрытия дроссельной заслонки 15. Особенность этих механизмов заключается в использовании фигурных кромок на рычаге 4.
Наружная фигурная кромка 10 воздействует на промежуточный рычаг 14, связанный с дроссельными заслонками через регулировочный винт 13, фиксируемый скобой 12. При полном закрытии воздушной заслонки 7 дроссельная заслонка /5 первой камеры приоткрывается на 0,8... 1,5 мм . В промежуточных положениях рычага 4 его фигурные кромки 5 и 6 взаимодействуют со штифтом поводка 8 воздушной заслонки и допускают се открытие на определенный угол. Ручное управление рычагом 4 осуществляется рукояткой из салона кузова посредством тяги 11.
При пуске холодного двигателя рычаг 4 поворачивается против часовой стрелки (вытягиванием рукоятки на себя); при этом образовавшийся зазор между кромками 5 и 6 рычага и поводка 8 позволяет возвратной пружине 9 удерживать воздушную заслонку в закрытом положении. Одновременно с этим из-за значительного разрежения под прикрытой дроссельной заслонкой и в смесительной камере вступают в работу система холостого хода и главная дозирующая система первой камеры, приготовляя богатую горючую смесь.
Рис.5. Ускорительный насос
Рис. 6. Пусковое устройство карбюратора
С увеличением разрежения под дросселем первой камеры мембрана / будет воздействовать на шток 3 и принудительно приоткрывать воздушную заслонку. Величину приоткрывания (пускового зазора h= 2,5...3,2 мм) заслонки можно регулировать винтом 2. Величина приоткрывания зависит от ширины паза между кромками 5 и 6 рычага 4 и от положения регулировочного винта 2.
По мере прогрева двигателя рычаг 4 поворачивают по часовой стрелке; при этом с помощью профиля 10 этого рычага дроссельная заслонка приоткрывается на больший угол, а фигурной кромкой 6 полностью открывается воздушная заслонка. Все элементы пускового устройства подобраны таким образом, чтобы воздушная заслонка при пуске и начале прогрева двигателя открывалась и закрывалась автоматически, не допуская чрезмерного обогащения или обеднения горючей смеси.
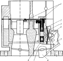
Система снижения токсичности отработавших газов обеспечивает управление включением и отключением электромагнитного клапана 3 (рис. 7) карбюратора 4 при его работе в режиме экономайзера принудительного холостого хода (ЭПХХ). Это происходит, например, при движении автомобиля под уклон или при быстром его торможении, когда резко закрывается дроссельная заслонка 5 при высокой частоте вращения коленчатого вала.
На указанном режиме при помощи электромагнитного клапана прекращается подача топлива в систему холостого хода, что снижает расход топлива и токсичность отработавших газов.
Электронный блок управления ЭБУ 2 является основным узлом экономайзера принудительного холостого хода и всей системы снижения токсичности, встроенной в карбюратор. Информация к блоку поступает в виде импульсов напряжения по двум каналам: от концевого выключателя 10 о положении дроссельной заслонки и от катушки зажигания 1, связанной с электронным коммутатором 11, о частоте вращения коленчатого вала. Поступающая по обоим каналам информация обрабатывается блоком управления, который в необходимые моменты подает напряжение, достаточное для включения электромагнитного запорного клапана. Концевой выключатель 10 регулировочного (упорного) винта 8 соединяет пятую клемму электронного блока управления 2 с «массой» автомобиля при закрытой дроссельной заслонке 5.
Рис. 7. Принципиальная схема управления ЭПХХ
Принцип работы системы управления электромагнитным клапаном заключается в следующем. Перед пуском двигателя дроссельная заслонка первой камеры карбюратора закрыта. При этом регулировочный винт 8 количества горючей смеси, контактируя с рычагом 6 привода дроссельных заслонок, замыкает электрическую цепь. В результате этого ток поступает с корпуса карбюратора 4 на пятую клемму электронного блока управления 2 и далее через шестую клемму на электромагнитный клапан 3, который открывает топливный жиклер, установленный в канале 9 системы холостого хода. После пуска двигателя и его работы на холостом ходу электромагнитный клапан 3 получает питание от электронного блока управления.
При возрастании частоты вращения коленчатого вала более 1 900 об/мин блок управления 2 отключается и не действует на электромагнитный клапан, но в катушку последнего ток поступает, так как пятая клемма блока управления не соединяется с «массой».
При резком закрытии дроссельных заслонок, что имеет место при принудительном холостом ходе, рычаг 6 упирается в регулировочный винт 8 и шунтирует пятую клемму на «массу». В этом случае электромагнитный клапан отключается, так как на него ток не поступает, его игла перекрывает топливный жиклер холостого хода, прерывая подачу горючей смеси.
При снижении частоты вращения коленчатого вала до значения 1 650 об/мин включается блок управления 2 и на электромагнитный клапан 3 снова подается ток, который открывает топливный жиклер и подает горючую смесь из канала 9. Карбюратор имеет также полость /подогрева горючей смеси при выходе ее из системы холостого хода.
На двигателях базовой модели автомобиля ВАЗ-2110 с бесконтактной системой зажигания установлен карбюратор ДААЗ-110-7010-31. Если в системе питания двигателя имеется датчик расхода топлива, то устанавливается карбюратор ДААЗ-2114-1107010-31, отличающийся от карбюратора базовой модели автомобиля отсутствием патрубка слива топлива в бак.
На двигателях автомобилей особо малого класса ВАЗ-11113 «Ока» и ЗАЗ-1105 «Таврия» также установлены карбюраторы ДААЗ соответственно моделей 1111-1107010 и 21081-1107010. Устройство и принцип действия основных смеседозирующих систем указанных карбюраторов не имеет принципиальных различий от вышеописанного (см. рис. 2), за исключением того, что одноименные жиклеры каждого карбюратора имеют свои тарировочные данные.
Смесеобразование. Сущность процесса смесеобразования в карбюраторных двигателях заключается в получении мельчайших частиц бензина, полного их испарения и перемешивания с воздухом. Процесс получения смеси воздуха с мелкораспыленным и частично испаренным бензином называется карбюрацией, а прибор, в котором происходит этот процесс,— карбюратором. Основным назначением карбюратора является дозирование подачи бензина для любого из возможных режимов работы двигателя. При этом смеседозируюшие устройства карбюратора обеспечивают необходимое соотношение между распыленным топливом и воздухом.
Полученная таким образом смесь мельчайших частиц и паров бензина с воздухом называется горючей смесью.
В цилиндрах двигателя горючая смесь смешивается с оставшимися там от предыдущего цикла продуктами сгорания (остаточными газами) и превращается в рабочую смесь.
В карбюраторных двигателях процесс смесеобразования происходит в тысячные доли секунды. За это время бензин, поступающий в смесительную камеру карбюратора, должен достаточно тонко распылиться, перемешаться с воздухом и испариться. Распыление топлива происходит главным образом из-за разности скоростей поступления топлива и воздуха.
Наибольшая скорость топлива в смесительной камере карбюратора равна 5...7 м/с, а воздуха — примерно в 20 — 25 раз больше и составляет 100... 150 м/с. С повышением скорости воздуха в смесительной камере тонкость распыливания бензина увеличивается, это увеличивает и скорость его испарения.
Увеличение скорости испарения бензина происходит еще и за счет подогрева горючей смеси горячими стенками цилиндров, камер сгорания и днищами поршней.
Если такой подогрев смеси оказывается недостаточным, то применяют местный подогрев участка впускного газопровода, связывающего карбюратор с цилиндрами двигателя отработавшими газами. Наиболее полное смесеобразование обеспечивается при температуре 45...65°С.
Состав горючей смеси. Для полного сгорания 1 кг бензина теоретически требуется около 15 кг (или 12,5 м3) воздуха. Однако при
106 работе карбюраторного двигателя количество воздуха в горючей смеси может быть больше или меньше теоретически необходимого. Поэтому состав горючей смеси характеризуется коэффициентом избытка воздуха а, который представляет собой отношение действительного количества воздуха Lд , участвующего в сгорании топлива, к теоретически необходимому его количеству Lт. Если в горючей смеси на 1 кг топлива приходится 15 кг воздуха, то смесь называется нормальной и в этом случае а = Lд/Lт=1 Если в горючей смеси на 1 кг топлива приходится 15... 17 кг воздуха, то ее называют обедненной (а = 1,05... 1,15), при содержании же воздуха свыше 17 кг — бедной (а = 1,20... 1,25). Горючую смесь, содержащую 12... 15 кг воздуха на 1 кг топлива, называют обогащенной (а = = 0,80...0,95), а при содержании воздуха менее 12 кг — богатой (ос = = 0,4...0,7). Наиболее экономичная работа двигателя достигается на обедненной смеси (при а = 1,05... 1,15).
Общее устройство системы питания. В карбюраторном двигателе система питания служит для приготовления горючей смеси, подачи ее к цилиндрам и отвода из них продуктов сгорания. В систему питания входят устройства, обеспечивающие подачу и очистку топлива и воздуха, приготовление горючей смеси, отвод отработавших газов и глушение шума при выпуске, хранение запаса топлива и контроль его количества.
В системе питания карбюраторного двигателя (рис. 1) бензин из бака 10 через открытый кран 12, фильтр-отстойник 16 и топливопроводы 7 подается насосом 22 к карбюратору 3. Одновременно из подкапотного пространства или канала / через воздухоочиститель 2 в карбюратор засасывается очищенный воздух, который, смешиваясь с парами и мелкораспыленными частицами бензина, образует горючую смесь, поступающую через впускной газопровод в цилиндры двигателя. Из цилиндров отработавшие газы через выпускной газопровод 21 отводятся в приемные трубы 20, из них — к глушителю 18, который не только снижает шум, но и гасит пламя и искры от отработавших газов при выходе их через выпускную трубу 13. Глушитель грузового автомобиля представляет собой цилиндрический корпус, который перегородками 15 разделен на ряд полостей и имеет переднее 19 и заднее 14 днища с патрубками и три внутренние грубы 17со щелевидными отверстиями.
Простейший карбюратор. На двигателях устанавливают карбюраторы эмульсионного типа. Их принцип действия основан на том, что из-за большой разницы в скоростях движения воздуха и топлива, проходящих через смесеобразующее устройство, струя топлива разбивается на мельчайшие частицы с образованием паровоздушной горючей смеси.
Простейший карбюратор (рис. 8.) состоит из поплавковой камеры 7, жиклера 6 (пробки с калиброванным отверстием) с распылителем 15, диффузора 16, смесительной камеры 17идросссльной заслонки 5. По топливопроводу 10 топливо из топливного бака поступает в поплавковую камеру 7, в которой с помощью поплавка 8 и игольчатого клапана 9 поддерживается постоянный уровень топлива.
Калиброванное отверстие жиклера 6 рассчитано на истечение через распылитель 15 определенного количества топлива в диффузор 16. Для поддержания атмосферного давления в поплавковой камере сделано отверстие 11.
При такте впуска, когда поршень 3 движется вниз, в надпоршневом пространстве цилиндра 2 создается разрежение, которое через открытый впускной клапан 1 передается в газопровод 4. Под действием этого разрежения поток воздуха, пройдя воздухоочиститель 12 и полностью открытую воздушную заслонку 14, поступает в диффузор 16, имеющий в средней части сужение, что увеличивает скорость воздушного потока и, следовательно, разрежение у среза распылителя.















