5130 (567275), страница 2
Текст из файла (страница 2)
Визначаємо щільність людського потоку на першій дільниці D1:
люд./ м2
По отриманому значенню D1, виходячи з довідкової таблиці 3, визначаємо V1= 80 м/хв, q1=8 м/хв
Підрахуємо час руху людського потоку на першій дільниці:
хв.
Швидкість руху людського потоку на дільницях шляху, наступних після першого, приймаємо в залежності від інтенсивності руху людського потоку по кожному з дільниць шляху.
м/хв
По довідковій таблиці знаходимо V2= 80 (м/хв).
Отже час руху по другій дільниці:
хв.
Інші дані розрахунків виконуються аналогічно. Для нарядності зведемо їх в таблицю.
Таблиця 3 Розрахунок часу евакуації людей при пожежі з приміщення ЦЯВ ТОВ «Райффайзен банк Аваль»
| № дільниці | Інтенсивність руху qi, м/хв | Швидкість руху Vi, м/хв | Час руху Ti, хв |
| 1 | 8 | 80 | 0,09 |
| 2 | 8 | 84 | 0,01 |
| 3 | 4,7 | 100 | 0,07 |
| 4 | 6,2 | 95 | 0,01 |
| 5 | 5 | 100 | 0,13 |
| 6 | 6,2 | 95 | 0,01 |
| 7 | 4,7 | 100 | 0,1 |
| 8 | 4 | 100 | 0,04 |
| 9 | 6,2 | 95 | 0,01 |
| Трасч. = ∑ Тi | 0,47 | ||
Розрахунковий час евакуації людей визначається як сума часу руху людського потоку по кожній дільниці шляху:
Трасч. = ∑ Тi = 0,47 хв.
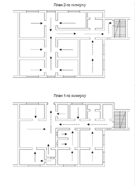
Оскільки будівля, в якій знаходиться відділ, відноситься до категорії Д по пожежобезпеці, то необхідний час евакуації не обмежується. Отже, для запобігання впливу на людей небезпечних чинників пожежі передбачена можливість швидкої евакуації людей з відділу через евакуаційний вихід, зображений на схемі евакуації (рис. 1), і є самим безпечним варіантом евакуації службовців банку з відділу.
Рис. 1. Схема евакуації в ЦЯВ ТОВ «Райффайзен банк Аваль»
У 2005 р. у ЦЯВ ТОВ «Райффайзен банк Аваль» проводився комплексний захід щодо досягнення встановлених нормативів безпеки, гігієни праці і виробничої середи, підвищенню рівня охорони праці, попередженню випадків виробничого травматизму, професійних захворювань і нещасних випадків.
За результатами аналізу можна зробити висновки:
стан гігієни праці в відділенні відповідає нормам;
техніка безпеки і пожежна профілактика в приміщенні задовольняє вимогам, що пред'являються.
До недоліків можна віднести організаційні питання, порушення трудової і виробничої дисципліни.
Для вдосконалення охорони праці необхідно активізувати контроль за охороною праці, поліпшити якість інструктажів, що проводяться з працівниками банку, забезпечити достатнє фінансування витрат з охорони праці в банку.















