АРХИ (1229934), страница 3
Текст из файла (страница 3)
В секции жилого здания при выходе из квартир в коридор (холл), не имеющий оконного проема в торце, расстояние от двери наиболее удаленной квартиры до выхода непосредственно в лестничную клетку или выхода в тамбур или лифтовой проходной холл, ведущий в воздушную зону незадымляемой лестничной клетки, не должно превышать 12 м [7,п 7.2.1]
Ширина коридора должна быть не менее, м: при его длине между лестницами или торцом коридора и лестницей до 40 м - 1,4м.[7,п 7.2.2]
Расчёт параметров путей эвакуации показал, что проверка условий эвакуации людей из здания выполняется, фактическое расстояние до выхода не менее нормируемого.
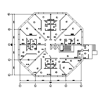
1.4. Объемно-планировочное решение здания
Здание сложной конфигурации,. Надземных этажей – 14, высота первого этажа и всех последующих в чистоте – 3,0 м,. Под всем зданием предусмотрено техническое подполье высотой – 1,9 м. Размер здания в осях 24 × 24 м.
План 1-го и 2-го этажей здания показаны на рисунках 3,4 соответственно.
Рис. 3
Рис. 4
1.4.1. Конструктивная система здания.
Конструктивная система здания - каркасная (рис.5,6)
Рис 6
В зданиях каркасной системы несущим остовом служит система из опирающихся на фундаменты колонн и горизонтальных связей , образующих каркас здания.
Колонны каркаса размещены как по периметру, так и внутри здания. Такие конструктивные схемы широко используются в промышленном строительстве, а также при сооружении общественных и жилых зданий.
Основным достоинством каркасных зданий является их высокая экономичность, а также большая свобода в планировки здания, так как при каркасных системах стены служат лишь ограждающими конструкциями и поэтому их можно делать тонкими, одинаковой толщины по всей высоте здания. Каркас выполняют из монолитных железобетонных конструкций. Колонны сечением 300X300 мм устанавливают на расстоянии 6 м друг от друга. Они опираются на железобетонные башмаки стаканного типа. Горизонтальной связью служит монолитное железобетонное перекрытие. Соединяют элементы каркаса, сваривая закладные стальные детали, которые заложены в конструкциях при их изготовлении.
1.4.2. Построение разреза здания
Разрез здания выполняется на основе решения плана с учётом принятой конструктивной системы. Плоскость разреза должна проходить по наиболее характерным частям здания для полного представления его объёмно-планировочного и конструктивного решения. Как правило, разрез выполняется по лестничной клетке или входу здания. На разрезе должны быть показаны основные конструкции. Разрез здания показан на рисунке 6.
Рис.6
1.4.3. Разработка фасада здания
Архитектура здания должна быть художественно выразительна, отражать специфику его назначения, иметь четкие архитектурные формы, хорошие пропорции, гармоничное сочетание цвета и фактуры отделочных материалов.
При разработке и уточнении эскиза фасада здания нужно пользоваться чертежами планов и разрезов. С планов на фасад переносятся все необходимые горизонтальные размеры: длина здания, длина выступов, размеры оконных и дверных проемов, балконов .
С разреза переносятся на фасад все необходимые вертикальные размеры: высота здания, высота цоколя, размеры дверных и оконных проемов. Фасад здания показан на рисунке 7
Рис. 7
1.6.1. Фундаменты
Выбирая конструкции фундаментов для здания, следует учитывать вид грунта на территории возводимого здания, конструктивные и технологические особенности проектируемого здания, возможности строительных организаций. Принятые конструкции фундаментов должны быть технологичны в строительном производстве. Конструкции фундаментов здания или сооружения должны характеризоваться минимальными величинами приведенных затрат, материалоемкости, энергоемкости, трудоемкости [14]. В проекте принят монолитный железобетонный фундамент стаканного типа под несущие элементы здания (колонны) (рис.11)и ленточный фундамент из сборных железобетонных элементов по периметру здания под наружные стены. (рис.12)
Рис.11 Рис.12
1.6.1.1. Расчет глубины заложения фундамента
Глубина заложения подошвы фундамента должна приниматься с учетом следующих факторов:
-
конструктивные
-
климатические
-
инженерно-геологические
Глубина заложения фундамента по климатическим условиям зависит от глубины промерзания грунтов около фундаментов.
где
– нормативная глубина промерзания;
– коэффициент, учитывающий влияние теплового режима сооружения, принимаемый для наружных фундаментов отапливаемых сооружений.
= - 2,92 Нормативная глубина промерзания грунтов под оголенной поверхностью г. Комсомольск - на - Амуре [4]
= 0,8 – для здания с подвалом, при расчетной среднесуточной температуре воздуха в помещении, примыкающем к наружным фундаментам, 50С [11, таблица 5.2].
dmin = 0,8 * 2,92 = 2,3 м.
При наличии подземных устройств подошву фундаментов требуется заглублять ниже таких устройств. В частности, фундаменты заглубляются в нескальные грунты не менее чем на 0,5 м ниже отметки пола подвала [11].
где hn – толщина подушки, м; hcf – отметка низа конструкции пола подвала, м.
dmin = 0,5 + 2,2 + 0,5 = 3,2 м
Таким образом, глубина заложения фундамента d = 3,2 м.
1.6.2. Колонны
Преимущество монолитных колонн в том, что они возводятся очень быстро, что позволяет значительно сократить сроки строительства. Монолитное перекрытие опирается на железобетонные монолитные колонны, а не на несущие стены.
Комбинация опорно-несущих конструкций разных типов позволяет разнообразить планировочные решения дома. А также существенно экономить на материалах, одновременно увеличивая ресурс строящегося здания. Сечение колонн выполнят 300×300 мм. На рисунке 13 показана монолитная колонна.
Рис.13
1.6.4. Перекрытие
Каркасная система здания, в которой монолитное перекрытие опирается на монолитные колонны, позволяет проектировать многоэтажные здания самых разнообразных конфигураций и планировок. Устройство монолитных перекрытий, которые в каркасе работают как единый жесткий диск, придает всему зданию пространственную жесткость и позволят обходиться без несущих стен. Устройство перекрытий в проектируемом здании принято без балочное.
Устройство без балочного монолитного перекрытия рисунок 14.
Рис.14
1.6.6 Наружные стены
Наружные стены здания состоят из силикатного кирпича толщиной 250 мм; Для соблюдения требований энергосбережения ,стены утеплены слоем минераловатных плит(Толщина которых определяется в тепло техническом расчете наружних стен) Наружная отделка стен выполняется из кирпича декоративного (бессер) толщиной 90 мм. Внутренняя отделка, штукатурка (сложный раствор) толщиной 20мм.
Конструкция наружной стены показана на рисунке15.
Рис. 15
Материалы и размеры слоев стен, а также значения характеристик материалов приведены в таблице. 1.3
Таблица 1.3
| Наименование материала | Толщина слоя, (м) | Средний объёмный вес (плотность), (кг/м3) | Коэффициенты | |
| Теплопроводность, Вт/м0С | Паропроницаемость, мг/мч*Па | |||
| 1. Кирпич декоративный на цементно-песчаном растворе | 0,12 | 2300 | 0,96 | 0,1 |
| 2. Утеплитель (минераловатная плита) | Находим в пункте 1.6.6.1 | 250 | 0,085 | 0,41 |
| 3. Силикатный кирпич на цементо-песчаном растворе | 0,25 | 1800 | 0,87 | 0,11 |
| 4. Штукатурка | 0,02 | 1700 | 0,87 | 0,098 |
1.6.6.1 Теплотехнический расчет наружных стен
Для расчета толщины утепляющего слоя необходимо определить сопротивление теплопередачи ограждающей конструкции исходя из требований санитарных норм и энергосбережения.
1.Определение нормы тепловой защиты ;
Нормируемое значение приведенного сопротивления теплопередаче ограждающей конструкции, Rнорм , м 2 · o С/Вт, следует определять по формуле:
Rнорм Rтр m (1.6.6.1.1)
Где Rтр - базовое значение требуемого сопротивления теплопередаче ограждающей конструкции, м2 · o С/Вт, следует принимать в зависимости от градусо-суток отопительного периода, ГСОП, o С сут/год, региона строительства и определять [2, табл.3]
Определяем градусо-сутки отопительного периода по [2,п 5.2] .
ГСОП = (tв - tот.пер) zот.пер где:
tв-расчетная средняя температура внутреннего воздуха, оС;
tот.пер - средняя температура отопительного периода, оС;
zот.пер - продолжительность отопительного периода, сут.
ГСОП = (20 +10,8) 223=6868 оС•сут
Нормативное значение требуемого сопротивления теплопередаче следует принимать не менее нормируемых значений, определяемых по [2, табл.4] в зависимости от градусо-суток района строительства:
Rтр= α*ГСОП+b
где: ГСОП - градусо-сутки отопительного периода, °С•сут
a,b - коэффициенты, значения которых следует принимать по [2, табл.3]
Rтр= α*ГСОП+b=0,00035*6868+1,4=3,8 м2 °С/Вт
Rнорм=3,8*0,74 (1.6.6.1.1)
Rнорм=2,8
Расчет толщины утеплителя.
,
где :
–коэффициент теплопередачи внутренней поверхности ограждающей конструкции, Вт/м2∙°С, который находится по (2, табл. 4);
- коэффициент теплопередачи наружной поверхности ограждающей конструкции, который находится по (2, табл. 6);
– толщина
i-го слоя стены, м;
– теплопроводность i-го слоя стены, Вт/м2·°С.
Толщину утеплителя принимаем за Х
,
Х= 0,188
Назначаем толщину утеплителя равную 200 мм исходя из требуемой нормативной толщины утеплителя и толщины минераловатных плит.
Толщина наружных стен равна 540мм.
1.6.7. Крыша
Конструкция крыши состоит из металических и деревянных элементов.















