конструкции (1223047), страница 2
Текст из файла (страница 2)
Рисунок 2.13 – Прогибы прогонов от нормативных нагрузок
Рисунок 2.14 – Прогибы подстропильной балки от нормативных нагрузок
Рисунок 2.15 – Прогибы балок Б1 от нормативных нагрузок
Рисунок 2.16 - Коэффициенты запаса устойчивости по РСН
Рисунок 2.17 - Таблица РСН
Рисунок 2.18 — Эпюра Му для подстропильных и стропильных балок.
Рисунок 2.19 — Эпюра Му (т*м) для балок перекрытия
Р
исунок 2.20 — Эпюра N (т) для колонн
2.4 Конструктивный расчёт
Профили, подобранные программой ЛИРА:
Колонны каркаса — колонный двутавр 25, 30, 40К1 по СТО АСЧМ 20-93 «Двутавры с параллельными гранями полок»;
Балки перекрытия (на отм. +4.500) — балочный двутавр 40Б2, 55Б2 по СТО АСЧМ 20-93 «Двутавры с параллельными гранями полок»;
Балки покрытия — балочный двутавр 25Б1, 40Б2, 70Б1, 70Б2 по СТО АСЧМ 20-93 «Двутавры с параллельными гранями полок»;
Прогоны по покрытию — швеллер №20 по ГОСТ 8240-97 «Швеллеры стальные горячекатаные»;
Вертикальные связи жесткости — гн. труба 140х140х5 по ГОСТ 30245-2003 «Профили стальные гнутые замкнутые сварные квадратные и прямоугольные для строительных конструкций»;
Связи жесткости по покрытию — гн. труба 80х80х5 по ГОСТ 30245-2003 «Профили стальные гнутые замкнутые сварные квадратные и прямоугольные для строительных конструкций»;
Распорные элементы — гн. труба 100х100х5 по ГОСТ 30245-2003 «Профили стальные гнутые замкнутые сварные квадратные и прямоугольные для строительных конструкций»;
2.5 Проверка машинного расчета вручную
2.5.1 Расчёт прогона
Расчёт прогона покрытия с шагом 1 м в месте снегового мешка .
Предварительно назначается швеллер №20.
Уклон 20%.
Характеристики профиля: Wx=152 см3; Wy=20,5 см3; Ix=1520 см4;
Нагрузки:
Собственный вес,
кг/м.
Вес от панели покрытия,
кг/м.
Всего: 418 кг/м.
кг/м.
кг/м.
кН*м.
Из плоскости устанавливается в середине пролета прогона тяж,
кН*м.
Проверим прогон,
=
Условие выполняется.
Расчёт тяжа по двух пролётной схеме.
кг/м.
Из плоскости прогон считается как двух пролётная шарнирно опертая балка.
В таком случае, реакцию на промежуточной опоре можно вычислить как,
кг, или 3,12 кН.
Требуемую площадь сечения тяжа вычислим из условия работы тяжа как одноболтового соединения, работающего на растяжение по формуле:
(2.1)
Первый тяж воспринимает усилия со всех ниже расположенных, тогда:
см2; Принимаем тяж Ø25 мм.
Расчёт тяжа по трёх пролетной схеме (с постановкой двух тяжей).
Из плоскости прогон считается как трёх пролётная шарнирно опертая балка.
В таком случае, реакцию на промежуточной опоре можно вычислить как,
кг, или 1,83 кН.
см2; Принимаем два тяжа Ø16 мм.
Проверим прогиб прогона,
Нормативная нагрузка, 303 кг/м.
;
2.5.2 Расчёт подстропильной балки
Проверка принятой толщины стенки:
Из условия работы стенки на касательные напряжения,
.
Чтобы обеспечить местную устойчивость стенки без дополнительного укрепления её продольным ребром, минимальная толщина стенки, для низколегированных сталей,
;
;
Условная гибкость стенки по п.8.5.1.,
,
Условная гибкость по п.8.5.9. больше
, поэтому стенку следует усиливать поперечными ребрами жёсткости.
Расстояние по п.8.5.9. между поперечными ребрами не должно превышать
;
Ширина выступающей части, для парного ребра, не менее,
, если учесть скос ребра, то
мм.
Принимается с учетом округления,
.
Толщина поперечного парного ребра,
.
Окончательно принимается поперечное ребро 100х8 с шагом 1,8 м.
Характеристики балки:
;
;
;
.
Р
исунок 2.21 — К расчёту подстропильной балки
Коэффициент устойчивости при изгибе:
Для составного двутавра,
;
;
.
Подстропильная балка раскреплена из плоскости через 6 метров. Закрепления сжатого пояса в пролете делят общий пролет на 3 равные части.
;
Так как
, то
Общая устойчивость балки,
Условие выполняется.
Условная гибкость больше 3,5. Устойчивость стенки не обеспечена. Необходимо произвести расчёт на устойчивость стенки балки симметричного сечения, укрепленного только поперечными ребрами, при отсутствии местного напряжения, и условной гибкости,
,
,
,
;
Так как a>hw, то
;
Крайний отсек,
;
Среднее касательное напряжение,
;
Среднее значение момента на расчётном участке отсека, M = 361 кН*м;
Краевое сжимающее напряжение, по сечению брутто, без коэффициентов,
;
=
Средний отсек,
;
;
.
Условия выполняются, следовательно стенка устойчива, принятый шаг поперечных ребер жесткости через 1,8 метра обеспечивает устойчивость стенки.
2.5.3 Расчёт опорного ребра
Требуемая площадь опорного ребра из условия смятия,
;
Конструктивно предварительно назначаем ширина опорного ребра, 20 см, тогда, требуемая толщина,
. Толщина ребра назначается также из конструктивных соображений, 1,6 см.
Фактическая поперечная площадь сечения ребра,
;
Максимальный выступ опорного участка
,
Проверка опорного участка балки на устойчивость,
Момент инерции ребра,
;
Полная площадь, с учетом работы части стенки,
;
Радиус инерции,
;
Гибкость ребра,
;
Приведенная гибкость,
;
Напряжения в ребре,
.
Катет вертикального шва крепления ребра к стенке балки,
;
; Принимается катет 6 мм.
Проверяется напряжения среза по металлу границе сплавления,
,
.
Болты назначаются конструктивно М20-5.8. С учетом конструктивной расстановки болтов, окончательно принимается ребро 250х16 мм.
2.5.4 Расчёт соединения поясов со стенкой
Поясные швы сплошные.
Сопротивление двух сплошных поясных швов,
, электроды Э50.
,
Статический момент пояса
,
;
Сдвигающее усилие на 1 см длины балки,
;
Катет шва из расчёта половины толщины стенки, 5 мм.
Минимальный катет сварного шва при толщине более толстого из свариваемых элементов, по таблице 38, 5 мм.
Окончательно принимается, катет сварного шва 6 мм.
2.5.5 Расчёт крепления опорного столика
Требуемая длина сварного вертикального шва для крепления столика рассчитывается с учетом возможной неравномерной передачи опорного давления, тогда при катете сварного шва 10 мм,
С учетом непровара, 22+3=25 см.
Сварной шов заводится на торцы на 15 мм для избежания концентрации напряжений на конце шва.
Толщина столика подбирается исходят из условий возможности опирания ребра,
Монтажный зазор (прокладка), 6 мм.
.
Окончательное принимается столик 250х25 мм. Ширина столика принимается на 30 мм больше, чем ребро.
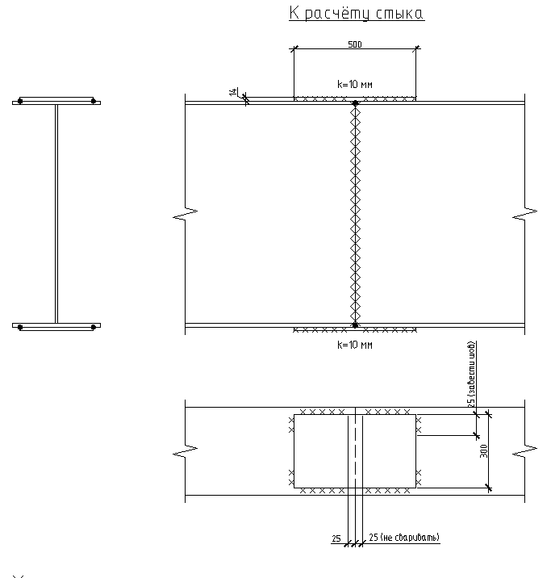
2.5.6 Расчёт монтажного комбинированного стыка
Стык выполняется в не опасной зоне. Прямой стык балок встык осуществляется с постановкой поясных компенсирующих накладок.
Перед сваркой стыка на монтаже кромки свариваемых деталей очищаются. Стык собирается с помощью сборочных приспособлений с целью фиксации и выставить зазоры, устранить возможные смещения кромок стыкуемых элементов.
В полках следует выполнять разделку кромок (обеспечивается заводом изготовителем при изготовлении отправочных марок). Швы выводить на выводные планки. Сваривать следует с внутренней стороны растянутый пояс, затем сжатый. Затем, удаляются корни шва. Выполняется сварка с наружной стороны. Снимается усиление швов. Тип сварного соединения С21, двухсторонний со скосом двух кромок, с зазором 2,0 мм.
Стык стенки следует выполнять по ГОСТ 14771-76 УП тип сварного шва С7, двухсторонний без скоса кромок, с зазором 1,5 мм.
После выполнения сварки встык привариваются поясные накладки.
Р
исунок 2.22 — К расчёту подстропильной балки
Расчёт поясных накладок,
,
Усилие в поясных накладках,
Требуемая площадь накладки,
;
При ширине накладки 30 см,
.
Требуемая длина сварного шва с катетом 10 мм,
С учетом непровара и не свариваемого участка в месте стыка, 50 мм, окончательно принимается поясная накладка 500х300х14 мм.
Проверка напряжений в швах,
.
2.5.7 Расчёт опирания стропильной балки на подстропильную
Крепление шарнирное (разрешен поворот по Uy) через опорное ребро и опорный столик. Стропильная балка раскрепляет подстропильную балку с шагом 6 м., и воспринимает сжимающее/растягивающее продольные усилия.
По п.8.5.10. поперечные ребра следует проверять на устойчивость в месте приложения сосредоточенных нагрузок. Ребра следует рассматривать как внецентренно сжатую стойку с эксцентриситетом от приложения нагрузки и возникающий горизонтальный усилий в виде крутящих моментов из плоскости балки. В расчётное сечение стойки включается часть сечения стенки.
Площадь ребра из 30К1,
;















