1. Заключение (1209976), страница 4
Текст из файла (страница 4)
Таблица 5.1.2 – Программное обеспечение, установленное на АРМ ИС «Комитет»
-
Автоматизированное рабочее место администратора ИС «Комитет»
В ИС «Комитет» остутствует разделение обязанностей по администрированию между несколькими сотрудниками. Администрированием всей информационной системы занимается один человек.
В таблице 5.2.1 представлены характеристики АРМ работника с полномочиями администратора ИС и безопасности информации (далее – Администратор). В таблице 5.2.2 представлен перечень программного обеспечения, установленного на АРМ Администратора.
Таблица 5.2.1 – Технические средства АРМ Администратора ИС
| Имя АРМ | Основные технические средства и системы | |
| ZEMLYA GLSPEC (АРМ 7) | Системный блок | Процессор: Intel(R) Core(TM) i3-4160 CPU @ 3.60GHz; Системная плата: Asus B85M-G; Чипсет: Intel Lynx Point B85, Intel Haswell; ОЗУ: 3563 МБ; Жесткий диск: WDC WD5000AZRZ-00HTKB0 ATA Device (465 ГБ, IDE); Видеокарта: Intel(R) HD Graphics Family; Сетевая карта: Atheros AR8151 PCI-E Gigabit Ethernet Controller (192.168.123.117). |
| Монитор | EnVision LCD2071 [20" LCD] | |
| Принтер | hp LaserJet 3020 PCL 6 | |
Таблица 5.2.2 – Программное обеспечение, установленное на АРМ Администратора ИС
| Имя АРМ | Наименование | Тип ПО |
| ZEMLYAGLSPEC-PC (АРМ 1) – АРМ Администратора ИС | Microsoft Windows 8.1 Professional 6.3.14393.693 | Операционная система |
| 7-Zip 15.12 | Офисное ПО | |
| ABBYY FineReader 12 Professional | Прикладное ПО | |
| Google Chrome | СЗИ | |
| Kaspersky Endpoint Security 10 для Windows | СЗИ | |
| Агент администрирования Kaspersky Security Center 10 | Прикладное ПО | |
| MapInfo Pro 15.0 | Прикладное ПО | |
| Microsoft Office 2003 | Прикладное ПО | |
| WinRAR 5.40 | Прикладное ПО |
-
Характеристика каналов связи и потоков информации, используемых при обработке и передаче информации в МИС
В информационной сети «Комитет» подключение к сетям общего пользования предоставляется услугами провайдера «ТТК». Сетевое оборудование в ИС отсутствует, для функционирования системы используется оборудование КСОМСа.
Данные из ИС «Комитет» передаются в Росреестр, а так же любым другим заинтересованным юридическим и физическим лицам.
В Росреестр данные доставляются, либо на бумажных носителях, либо в электронном виде на компакт диске непосредственно сотрудником ИС. Журнал контроля носителей информации не ведется, данные на диске находятся в незашифрованном виде.
Заинтересованным юридическим и физическим лицам данные передаются непосредственно на руки в пределах КЗ. Конфигурация информационной системы представлена на рисунке А.1 (см. Приложение А).
-
Режим обработки информации
Режим обработки предусматривает следующие действия: сбор, систематизацию, накопление, хранение, уточнение (обновление, изменение), использование, передачу, уничтожение данных.
Все пользователи ИС «Комитет» наделены одинаковыми ролями, наделяющими их равными полномочиями.
В таблице 8.1 и 8.2 представлен список ролей в виде матрицы доступа ИС «Комитет».
Таблица 8.1 – Матрица доступа ИС «Комитет»
| Привилегии и права, ресурс | Администратор ИС с полномочиями администратора ИБ | Пользователи ИС |
| Права и привелегии | ||
| Изменение настроек политик AD | + | - |
| Запрет изменения системных файлов на серверах БД | - | + |
| Удаленный доступ к АРМ пользователей | + | - |
| Вывод защищаемой информации на принтер | + | + |
| Загрузка ПЭВМ с внешних носителей (доступ к BIOS) | + | - |
| Запрет изменения системных файлов АРМ пользователей | - | + |
| Изменение личного пароля пользователя | + | - |
| Работа с системным журналом ОС | + | - |
| Возможность создания личных ресурсов на локальных АРМ | + | + |
| Возможность создания ресурсов на сервере БД | + | + |
| Работа с системным журналом СЗИ | + | - |
| Установка, настройка, сопровождение СЗИ | + | - |
| Доступ к общим сетевым ресурсам на АРМ пользователей | RWAXD | RWA |
| Доступ к локальным папкам пользователей | RWAXD | RWAXD |
| Доступ к средствам управления БД | RWAXD | - |
-
R - разрешение на открытие файлов только для чтения;
-
W - разрешение на открытие файлов для записи;
-
A - разрешение на создание файлов на диске/создание таблиц в БД;
-
D - разрешение на удаление файлов/записи в БД;
-
Х - разрешение на запуск программ;
-
Существующие меры защиты информации
Все кабинеты ИС «Комитет», где обрабатываются и хранятся данные, закрываются на ключ. В помещениях имеется пожарная сигнализация, которая работает круглосуточно. Охранная сигнализация отсутствует. В здании администрации установлена система контроля и управления доступом (далее – СКУД). Все сотрудники имеют персональные идентификаторы (пропуски) установленного образца. Пропуск в здание посетителей осуществляется в сопровождении ответственного лица.
Бумажные документы хранятся в архивах в шкафах:
в архиве земельного отдела: металлические открытые стеллажи, дверь архива закрывается на ключ;
в архиве по приватизации: пара деревянных шкафов без замков;
в архиве по аренде муниципального имущества: пара деревянных шкафов без замков;
в архиве кадровой информации: металлический сейф с замком.
Вся информация хранится на различных компьютерах ИС и на виртуальном сервере КСОМСа, доступ к полям и записям базы данных сервера осуществляется с рабочих мест. Режимы работы автоматизированных систем – многопользовательский.
Аутентификация пользователей ПЭВМ, с помощью которых производится обработка персональных данных, осуществляется посредством использования персонального логина и пароля. Пользователи имеют одинаковые права доступа к сетевым ресурсам. Доступ к информации предоставляется только после прохождения авторизации на собственных АРМ.
Защита от вирусных атак осуществляется с применением ПО «Kaspersky Security Center 10». Обновление антивирусных баз происходит ежедневно.
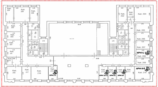
Технические средства ИС находятся на втором этаже здания, подробная схема расположения кабинетов приведена в Приложении Б
-
Приложение А. Конфигурация ИС и топология ЛВС «Комитет»
Рис. А.1 – конфигурация ИС «Комитет»
Рисунок А.2 – Топология локальной вычислительной сети «Комитет»
-
Приложение Б. Размещение элементов информационной системы относительно границ контролируемой зоны
На схемах ниже приведены планы этажей здания , в которых располагается ИС «Комитет» с указанием расположения элементов ИС и кабинетов относительно границ КЗ.
Рис. Б.1 – Расположение элементов ИС относительно границ КЗ на втором этаже















