1. Заключение аудита (1209962), страница 3
Текст из файла (страница 3)
Параметры информационной системы отдела представлены в таблице 2
Таблица 5.2 Параметры ИС
| Наименование параметра | Значение |
| Структура информационной системы | Распределенная |
| Архитектура информационной системы | Файл-серверная |
| Взаимодействие с иными информационными системами | Имеется |
| Подключение информационной системы к сетям общего пользования и (или) сетям международного информационного обмена | Имеется |
| Размещение технических средств | ТС расположены в КЗ |
| Режим обработки персональных данных | Многопользовательский |
| Режим разграничения прав доступа пользователей | Система с разграничением прав доступа |
| Местонахождение технических средств информационной системы | Все технические средства находятся в пределах Российской Федерации |
| Объем обрабатываемых персональных данных | Более 100 тысяч субъектов персональных данных |
| Категории обрабатываемых персональных данных | Иные категории персональных данных |
В информационной системе телекоммуникационной компании обрабатываются специальные категории персональных данных согласно Федеральному закону от 27.07.2006 №152-ФЗ (ред. От 22.02.2017) «О персональных данных».
Субъекты персональных данных, которые обрабатываются в подразделении:
-
Работники ООО «Рэдком-РУ»
-
Физические лица, состоящие в договорных и иных гражданско-правовых отношениях с ООО «Рэдком-РУ»
-
Юридические лица, состоящие в договорных и иных гражданско-правовых отношениях с ООО «Рэдком-РУ»
Подразделение телекоммуникационной компании ООО «Рэдком – РУ» обрабатывает следующий перечень персональных данных сотрудников:
-
Фамилия
-
Имя
-
Отчество
-
Пол
-
Дата рождения
-
Место рождения
-
Место регистрации
-
Место физического проживания
-
Сведение об образовании
-
Сведения о состоянии в браке
-
Сведения о воинском учете
-
Прохождение аттестации
-
Дата прохождения аттестации
-
Решение об аттестации
-
Дата начала и конца обучения
-
Квалификация
-
Наименование учебного заведения
-
Информация о повышении квалификации
-
Данные об отпуске
-
Гражданство
-
Данные о детях
-
Сведения о знании языков
-
СНИЛС
-
ИНН
-
Реквизиты документа о присвоении квалификационной категории
-
Табельный номер
-
Должность
-
Подразделение
-
Категория
-
Характер работы
-
Вид работы
-
Стаж работы
-
Основание исчисления стажа
-
Место работы
-
Средний заработок
-
Дата приема на работу
-
Дата увольнения
-
Оклад
-
Ставка
-
Льготы
-
Пособия
-
Выработанные часы
Подразделение телекоммуникационной компании ООО «Рэдком – РУ» обрабатывает следующий перечень персональных данных клиентов:
-
Фамилия
-
Имя
-
Отчество
-
Пол
-
Дата рождения
-
Место рождения
-
Место регистрации
-
Место физического проживания
-
СНИЛС
-
Гражданство
-
Вид и номер документа, удостоверяющего личность (Паспорт, доверенность с копией паспорта)
-
Адрес, по которому предоставляются услуги
-
Контактный телефон
-
Факс
-
Электронный почтовый ящик
-
ИНН
-
Виды предоставляемых услуг
-
Тарификация услуг
-
Текущий баланс лицевого счета
-
Банковский счет
-
Данные подключения
-
Льготы
-
Акции
-
Почтовый адрес
-
Классификация ИСПДн
При помощи перечня технических и организационных мер обеспечения безопасности, определяющиеся нормативно-методической документацией ФСТЭК России и ФСБ России можно обеспечить безопасность персональных данных.
В соответствии с Требованиями к защите персональных данных при их обработке в информационных системах персональных данных, утвержденных постановлением Правительства Российской Федерации от 01.11.2012 г. №1119, определяется четыре уровня защищенности персональных данных от первого до четвертого. Самым высоким уровнем защищенности является первый. Уровень защищенности зависит от следующих показателей:
-
тип актуальных угроз;
-
категория обрабатываемых персональных данных;
-
тип субъектов ПДн, персональные данные которых обрабатываются в информационной системе;
-
количество субъектов ПДн, не являющихся сотрудниками оператора.
В ходе изучения сегмента информационной сети было установлено, что в системе обрабатываются специальные персональные данные, а, следовательно, для системы актуальны угрозы, не связанные с наличием недокументированных (не декларированных) возможностей в системном и прикладном программном обеспечении, используемом в информационной системе, то есть актуальны угрозы 3 типа.
В отделе обрабатываются данные более 100000 субъектов персональных данных. Исходя из категорий и объема персональных данных, одновременно обрабатываемых в системе и типа угроз на основании пункта 10 подпункта «е» «Требований к защите персональных данных при их обработке в информационных системах персональных данных» необходимо обеспечить 2 уровень защищенности персональных данных.
-
Техническая информация
В таблице 3 представлены технические характеристики АРМ пользователей.
Таблица 5.3 Технические характеристики АРМ пользователей
| Основные ТС и системы | |
| Системный блок | Процессор: QuadCore Intel Core i5-2500, 3500 MHz Охлаждение:Intel Box Алюминий Оперативная память: DDR3 4 Гб 1600МГц Hynix Материнская плата:MSI H81M-P-33 DDR3 Жёсткий диск: 500 Гб 7200 rpm Seagate Видеокарта: nVIDIA GeForce GT 610; Оптический привод:DVD-RW Блок питания:БП FSP 400W Корпус:Deepcool WAVE Сетевая карта: Realtek PCIe GBE Family Controller |
| Монитор | Philips 193V5LSB2 |
| Мышь | DEXP CM-407BU |
| Клавиатура | DEXP K-503BU |
-
Характеристика каналов связи для обработки и передачи информации
ИСПДн представляет собой локальную вычислительную сеть, объединяющую отдельные АРМ подразделений по проводной технологии передачи данных. Взаимодействие всех сетевых устройств друг с другом осуществляется по стандарту IEEE 802.3, объединенных через сетевой коммутатор Cisco SF220-24. Взаимодействие подразделения с ЦОДом осуществляется по стандарту IEEE 802.6. Имеется одна точка выхода в сеть общего пользования.
В качестве каналов связи в ЛВС подразделения используются кабели симметричной витой пары категории 5е. Подключение к сетям общего пользования предоставляется самой телекоммуникационной компанией ООО «Рэдком – РУ»
-
Расположение ИСПДн относительно КЗ
Элементы ИСПДн расположены в другом здании компании. Подключение АРМ к основной ЛВС компании осуществляется через Волоконно – оптический кабель
Элементы ИСПДн расположены на двух этажах, все АРМ подключены основной ЛВС телекоммуникационной компании через проводной кабель, а передача ПДн от подразделения до ЦОДа осуществляется через волоконно-оптический кабель ведущий в другое здание.
Идентификация, аутентификация и авторизация пользователей, на которых обрабатываются персональные данные происходит при помощи персонального логина и пароля. Пароль создается самим сотрудником, с обязательным условием, сложность пароля должна соответствовать требованиям безопасности обработки информации конфиденциального характера.
К сетевым ресурсам пользователи имеют разные права доступа, в соответствии с их должностью. Доступ к защищаемой информации, пользователь получает только после прохождения авторизации в АРМ и специализированном ПО. Согласно доменной политике, пользователи не могут устанавливать на свои АРМ различное ПО, ПО устанавливается по запросу в специализированный отдел, который сверяется с возможностью установки и в случае возможности устанавливает.
Сотрудники службы эксплуатации, которые обеспечивают информационную безопасность на сервере и в базах данных устанавливаю права доступа и разрешаемы действия на изменение информации в соответствии с должностью сотрудников. В таблице 4 представлен список прав в виде матрицы доступа
Таблица 5.4 Список прав в виде матрицы доступа.
| Права доступа | Сотрудники службы эксплуатации с правами администраторов ИБ | Пользователи |
| Работа с системным журналом СЗИ | + | - |
| Установка, настройка, сопровождение СЗИ | + | - |
| Доступ к общим сетевым ресурсам на АРМ пользователей | RWA | RWA |
| Доступ к локальным папкам пользователей | RWAXD | RWAXD |
| Центральные БД ИСПДн | RWAXD | RWXD |
| Доступ к средствам управления БД | RWAXD | - |
| Доступ к средствам управления СЗИ | RWAXDS | - |
| Изменение пароля учетной записи пользователя | + | + |
| Изменение пароля учетной записи пользователя в базе данных | + | + |
| Работа с системным журналом ОС | + | - |
| Вывод информации, в том числе и защищаемой на принтер | + | + |
| Удаленны доступ к АРМ сотрудника | + | - |
-
R - разрешение на открытие файлов только для чтения;
-
W - разрешение на открытие файлов для записи;
-
A - разрешение на создание файлов на диске/создание таблиц в БД;
-
D - разрешение на удаление файлов/записи в БД;
-
Х - разрешение на запуск программ;
-
S - разрешение на настройку средств защиты
-
Существующие меры защиты информации
Доступ в помещение подразделения охраняется сотрудником вневедомственной охраны. Пост охраны оборудован тревожной кнопкой
Лица, не являющиеся сотрудниками компании, могут находится в помещении, но доступа к техническим средствам информационной системы персональных данных не имеют.
В подразделении ведется видеонаблюдение, которое работает по отдельной выделенной линии с отдельной автономной информационной системой, не входящей в рассматриваемую информационную систему в данной работе. Вся информация с камер видеонаблюдения поступает на пульт охраннику подразделения и охраннику главного офиса, где располагается центр обработки данных. Так же офис оборудован охранной, пожарной сигнализацией.
Охранная сигнализация включается в момент, когда офис закрыт и в нем нет сотрудников компании в выходной или праздничный день, либо в не рабочее время, когда офис закрывается до следующего рабочего дня сотрудников. В рабочее время охранная сигнализация выключается. Пожарная сигнализация работает круглосуточно.
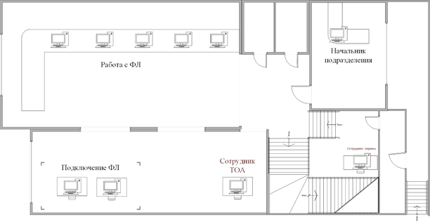
Офис подразделения состоит из двух этажей.
На первом этаже находится пост охраны, начальник подразделения и сотрудники, работающие с физическими лицами.
На втором этаже находится сектор по работе с юридическими лицами. Так же на втором этаже находится коммутационный шкаф, который связывает все АРМ подразделения в одну ЛВС и позволяет обмениваться информацией с центром обработки данных.
На рабочих станция сотрудников установлено и настроено антивирусное средство защиты «Kaspersky Endpoint Security РАСШИРЕННЫЙ», имеющий сертификат ФСТЭК.
Расположение технических средств информационной системы персональных данных, согласно схемы помещения представлено на рисунке 5.3 и рисунке 5.4.
Рисунок 5.3 – Схема расположения ТС на первом этаже
Рисунок 5.4 – Схема расположения ТС на втором этаже















