Диплом Прихоько финал (1197637), страница 11
Текст из файла (страница 11)
Лица, ответственные за пожарную безопасность:
обеспечивают выполнение на вверенных им участках работы требований правил пожарной безопасности;
знают пожарную опасность товаров, применяемых или хранимых на вверенном участке, и не допускают нарушений правил их хранения;
следят за исправностью сигнализации, телефонной связи, систем отопления и вентиляции, электроустановок, содержанием путей эвакуации, проездов, противопожарных разрывов, источников водоснабжения и принимают меры к устранению, обнаруженных неисправностей;
знают правила использования имеющихся средств пожаротушения и обеспечивают их постоянную готовность к действию;
разъясняют служащим и рабочим инструкции и правила пожарной безопасности, действующие на объекте;
следят за тем, чтобы после окончания работы производилась уборка рабочих мест и помещений, отключалась электросеть, за исключением дежурного освещения, источников электропитания автоматических установок пожаротушения и сигнализации, а также электроустановок, которые по условиям технического процесса производства должны работать круглосуточно.
Инструкции о мерах пожарной безопасности разработана руководителями склада, утверждена руководителями объекта, и была изучена в системе производственного обучения и вывешена на видных местах.
В инструкциях по пожарной безопасности на складе непроизводственных товаров отражены следующие вопросы:
порядок содержания помещений, территории, в том числе путей эвакуации;
условия и нормы хранения товаров;
места курения, применения открытого огня и производства огневых работ;
специальные противопожарные мероприятия для отдельных помещений, несоблюдение которых может вызвать пожар или возгорание;
порядок применения средств пожаротушения и вызова пожарной помощи при обнаружении пожара;
порядок сбора, хранения и удаления горючих отходов, содержания и хранения спецодежды;
условия использования отопительных и электрических приборов;
сроки проведения повторного противопожарного инструктажа;
обязанности и действия рабочих и служащих при пожаре.
Каждый работающий на складе (независимо от занимаемой должности) четко знает и строго выполняет установленные правила пожарной безопасности, не допускает действий, могущих привести к пожару или возгоранию.
Руководители складов, а пожарной безопасности в зависимости от характера нарушений и их последствий, несут ответственность в установленном законном порядке.
Противопожарный инструктаж (пожарно-технический минимум) с работниками склада, проводиться в системе производственного обучения с целью широкого изучения правил пожарной безопасности. Противопожарная подготовка работников состоит из противопожарного инструктажа (первичного и вторичного) и занятий по программе пожарно-технического минимума.
Первичный (вводный) инструктаж о соблюдении мер пожарной безопасности проходится все вновь принимаемым на работу, в том числе и временные рабочие.
Для проведения первичного противопожарного инструктажа на предприятии выделено помещение (уголок), оборудованное необходимыми наглядными пособиями по вопросу соблюдения противопожарного режима на территории предприятия, в зданиях, помещениях, на рабочих местах, а также образцами первичных средств пожаротушения, пожарного инвентаря и пожарной связи, имеющихся на предприятии.
Первичный противопожарный инструктаж с работниками можно проводить одновременно с вводным инструктажем по технике безопасности.
По окончании инструктажа проводиться проверка знаний и навыков, полученных инструктируемыми. Лица, знания которых оказались неудовлетворительными, подвергаются повторному инструктажу с обязательной последующей проверкой знаний.
Повторный инструктаж проводится на рабочем месте лицом, ответственным за пожарную безопасность склада, причем этот инструктаж обязательно проводиться и при переводе работников с одного участка на другой, применительно к особенностям пожарной опасности нового участка работы.
Занятия по пожарно-техническому минимуму проводятся по специально утвержденной руководителем учреждения программе. Этот минимум проводится с электрогазавщиками, электриками, истопниками и материально-ответственными лицами.
По окончании прохождения пожарно-технического минимума у рабочих и служащих должны быть приняты зачеты. Результаты зачетов оформляются соответствующим актом или ведомостью с подписями членов приемной комиссии. Лица, не сдавшие зачеты, к исполнению служебных обязанностей не допускаются.
Учет лиц, прошедших противопожарный инструктаж и обучение по программе пожарно-технического минимума, ведется в специальном журнале, где указываются даты инструктажа (обучения), кем проведен инструктаж, фамилия, имя, отчество инструктируемого (обучаемого), его должность и место работы на объекте, личные подписи инструктировавшего и инструктируемого (обучаемого).
Мероприятия по тушению пожаров направлены на решение следующих задач:
быстрая эвакуация людей из зоны возгорания;
ограничение распространение огня по складскому помещению;
сохранение целостности конструкций на максимально возможный срок;
обеспечение защиты от токсичных продуктов горения.
При обнаружении открытого огня решающей мерой будет сообщение о проблеме в пожарную охрану, оповещение и эвакуация сотрудников. До приезда пожарных необходимо: отключить электроэнергию (кроме средств противопожарной защиты); остановить работу вентиляционных систем; попытаться локализовать очаг возгорания при помощи имеющихся средств (ящики с песком, гидропульты, огнетушители). Ответственный работник встречает пожарных и показывает кратчайший путь к очагу пожара.
Подводя итоги можно кратко перечислить все основные требования необходимые для обеспечения пожарной безопасности на крытом складе непроизводственных товаров. Все складские помещения укомплектованы автоматической системой пожарной сигнализации и первичными средствами тушения пожара, прошедшими сертификацию. Для оснащения складов без внутреннего пожарного водопровода первичными средствами пожаротушения, комплектуются пожарные щиты. Все пожарные щиты расположены в легкодоступных местах, в пределах видимости. Место хранения противопожарного оборудования снабжается светящейся табличкой.
Все лица, допущенные к работе в хранилищах и складах, проходят первичный инструктаж по обеспечению пожаробезопасности объекта. Инструктаж проводится непосредственно на рабочем месте, при этом работника ознакамливают со средствами пожаротушения, находящимися на объекте и алгоритмом практических действий в случае возникновения пожара. Повторные инструктажи проводятся по мере необходимости, но не раже 1 раза в 6 месяцев.
В складских помещениях обязательно размещение плана (схемы) эвакуации из здания, выполненного согласно ГОСТ Р 12.2.143-2009 и таблички с обозначением лица, ответственного за пожарную безопасность объекта, включающей инициалы, должность и номера телефона. На стенах складских помещений обязательно присутствуют люминесцентные знаки, обеспечивающие путь аварийной эвакуации персонала при отключении электроэнергии.
Вне помещения склада, на стене из негорючего материала, располагаются аппараты для отключения электроэнергии. При этом они размещаются в нишу или шкаф, который замкнут и опломбирован.
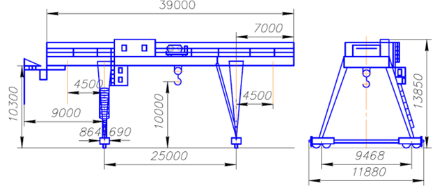
8.2 Расчет устойчивости козлового крана 15/5к на площадке для длинномерных грузов
Проверку устойчивости козловых кранов на опрокидывание производят в нерабочем положении при действии ураганного ветра вдоль пути.
Уравнение устойчивости относительно точки опрокидывания О имеет вид [2]:
(8.1)
где k– коэффициент собственной устойчивости, принимаемый равным 1,15;
– давление ветра на отдельные части конструкции, Па;
-вес портала, Н;
- вес тележки и грузового полиспаста, Н;
- вес противовеса на одной тележке, Н;
,a,b,c – плечи сил относительно точки опрокидывания О, м.
Расчет устойчивости козлового крана в данном дипломном проекте делается на примере козлового крана типа КК-16, установленного на Промышленной Строительно- Экипировочной Базе Космодрома Восточный, на площадке для длинномерных грузов 1-6.
Грузоподъемность данного крана составляет 15 тонн, масса крана 61 тонн, класс крана по ИСО 4301/1 – А5.
Расчетная схема крана приведена на рис. 8.2.
Рис. 8.2. Расчетная схема крана
Таблица 8.1
Параметры козлового крана КК15/5К
| Технические характеристики | |
| Грузоподъемность, т | 15 |
| Пролет, м | 25 |
| Высота подъема, м | 10 |
| Группа режима работы | (А5) 5К |
| Скорость, м/с | |
| - подъема, ±15% | 0,16 |
| - передвижения тележки, ±15% | 0,63 |
| - передвижения крана, ±15% | 1,0 |
| Колея тележки, мм | 3500 |
| Длинна консолей, м | 7,0+7,0 |
| Рабочий вылет консолей, м | 3,5+3,5 |
| Тип подкранового рельса | Р50, Р65 ГОСТ Р 51685-2000 |
| Нагрузка на колесо при работе (8 колес), кН не более | 170 |
| Конструктивная масса крана, т. не более | 61,0 |
| Температура окружающей среды, град С | -40…+40 |
| Род тока/ Напряжение В | Переменный/ 380 |
| Тип кабины | Закрытый |
Для решетчатой конструкции крана принимается:
a=0,35, k=1,5, q=25 кг/м2 .
Площадь ригеля крана:
F1=2(25+4)=58 м2; (8.2)
Давление ветра на ригель крана:
W1=kqaF1, тогда (8.3)
W1=1,5×25×0,35×58=0,76 Т;
Площадь жесткой ноги:
F2=4×10
=20 м2 (8.4)
Сила давления ветра на жесткую ногу:
W2=kqaF2, тогда (8.5)
W2 =1,5×25×0,35×20=0,26 Т;
Усилие при торможении крана, передвигающегося с грузом:
Т=0,1×Q, (8.6)
T=0,1×76=7,6 Т,
где Q – вес крана с грузом, тогда
Q=61+15=76 т.;
При действии ветровой нагрузки кран будет стремиться опрокинуться вокруг колеса.
Расстояние от рельса до центра тяжести ригеля:
h1=0,5+10
×2=10,5 м;
Расстояние от рельса до центра тяжести жесткой ноги:
h2=0,5+
×10=7,2 м;
Опрокидывающий момент от силы давления ветра на ригель:
M1=W1h1, тогда (8.7)
M1=0,76×10,5=7,9 Т×м;
Опрокидывающий момент от силы давления ветра на жесткую ногу:
M2=W2h2, тогда (8.8)
M2=0,26×7,2=1,87 Т×м;
Опрокидывающий момент от инерционных сил, возникающих при торможении, полагая, что силы действуют по оси ригеля:















