ВКР_Оптимизация производственного процесса с использованием инструментов бережливого производства (1196640), страница 7
Текст из файла (страница 7)
Хлебопекарня ИП «Самарина Л.П.» – пекарня с полным циклом производства и включает в себя три основных участка: сырьевой склад, основное хлебопекарное производство и хлебохранилище. Планировка помещения хлебопекарни представлена на рисунке 6 , где цифрами обозначены:
Рисунок 6 – Планировка помещений хлебопекарни ИП «Самарина Л.П.»
-
Служебное помещение (вахта)
-
Складское помещение
-
Остывочный цех
-
Помещение для персонала
-
Служебный вход
-
Выход для выдачи готовой продукции
-
Кабинет заведующего производством (технолога)
-
Моечная инвентаря
-
Производственная зона
-
Моечная лотков
Анализируя планировку помещений пекарни, можно прийти к выводу, что ввиду ограниченности пространства большая часть площади занята производственной зоной и необходимыми помещениями для её эффективного функционирования. При этом численность производственных рабочих, по данным таблицы 7, довольно высока; а это значит, что при отсутствии чёткой организации рабочих мест и служебных помещений существуют риски возникновения производственных конфликтов, снижение производительности работников при захламленности и неправильной организации рабочих мест. Таким образом, для того, чтобы оптимизировать производственный процесс, нужно прежде всего обратить внимание на организацию рабочего пространства.
Хлебопекарня работает круглосуточно, без выходных, поэтому производственный процесс представлен двумя рабочими сменами, продолжительностью 12 часов каждая. С учётом максимальной мощности пекарни при условии её полной загруженности, представим основные характеристики производственного процесса в таблице 10.
Таблица 10 – Основные производственные характеристики пекарни
| Показатель | Величина |
| Количество изделий, выпускаемых в час | 310 |
| Продолжительность рабочей смены, час | 12 |
| Количество смен за рабочий день | 2 |
| Количество рабочих дней в месяц | 30 |
| Количество изделий, выпускаемых в смену, шт | 3720 |
Поточных линий на производстве, соответствующих современному уровню развития техники и высокой производительности труда, две: для производства формового хлеба и для производства мелкоштучных и булочных изделий.
Важным условием выпуска качественной хлебопекарной продукции является соответствие качества сырья, полуфабрикатов и готовой продукции требованиям нормативной документации. Поэтому работники завода должны уметь проводить минимальный контроль качества сырья, полуфабрикатов и готовой продукции
Технохимический контроль на различных стадиях технологического процесса осуществляется цеховым технологом; результаты контроля фиксируются в журнале контроля производства.
Контроль включает проверку выполнения рецептур, качества полуфабриката, выполнения технологического режима по кислотности, температуры и продолжительности брожения, массы кусков теста, продолжительности расстойки и выпечки, укладка изделий и количественных показателей технологического процесса.
Контроль годовой продукции проводят в соответствии со стандартом, технологическим условием и положением о базовой оценке. Действующие в настоящее время нормы качества на готовые изделия устанавливают: Вид изделия (весовой, штучный), их выпечка (подовой, формовой), Органолептические показатели (форма, поверхность, окраска), состояние мякиша (пропеченность, прожег, пористость), вкус, запах.
Правила отбора проб для контроля хлебобулочных и сдобных изделий изложена в ГОСТ 5667-65 [9]. Все результаты визуального контроля технолог или старший смены заносит в специальный журнал. Однако, документация и записи о результатах контроля не являются общедоступными и доводятся до сведения рядовых работников пекарни только в случае возникновения брака в партиях готовой продукции.
В зависимости от используемого в пекарне оборудования технологический процесс будет организован с той или иной степенью механизации труда и соответствующей потребностью в обслуживающем персонале.
Для правильной организации технологического процесса и контроля его на участке имеется технологический план производства. Работа на участках организованна по принципу непрерывного производственного потока кроме кондитерского участка, так как там прерывное производство. Готовая продукция подлежит быстрой реализации.
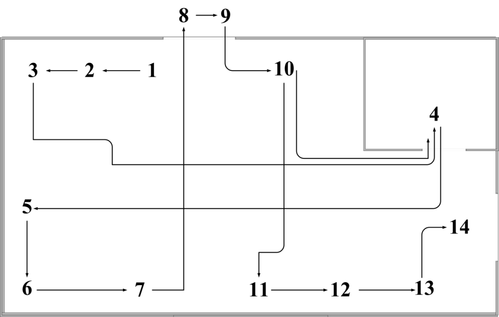
При установке минимального количества машин, необходимых для производства хлеба и хлебобулочных изделий, механизируются только основные операции. Технологический процесс производства представлен в виде упрощённой схемы перемещений на рисунке 7.
Рисунок 7 – Визуализированная схема перемещений работников при осуществлении производственного процесса
При визуализации схемы перемещений видно, что производственная линия расположена не оптимально, даже в условиях ограниченного пространства. Это порождает определённые затраты времени на перемещение работников по цеху, не добавляет ценности конечной продукции, а значит создаёт препятствия для эффективного функционирования организации.
Таким образом, при анализе производственного процесса хлебопекарни ИП «Самарина Л.П.» были выявлены две основных проблемы, устранение которых позволит оптимизировать процесс:
-
Отсутствие организации рабочих мест и служебных помещений для персонала;
-
Нерациональное расположение оборудования в рамках производственного цеха.
Для устранения этих несоответствий предложим внедрить в деятельность организации два самых популярных инструмента бережливого производства: метод организации рабочих мест 5S и метод U-образных ячеек. Подробные алгоритмы внедрения рассмотрены в следующей главе.
3 ОПТИМИЗАЦИЯ ПРОИЗВОДСТВЕННОГО ПРОЦЕССА ИП «САМАРИНА Л.П.» ПУТЁМ ВНЕДРЕНИЯ ИНСТРУМЕНТОВ БЕРЕЖЛИВОГО ПРОИЗВОДСТВА
3.1 Обоснование необходимости внедрения инструментов в деятельность организации
Внедрение бережливого производства на предприятии имеет потенциал не просто на изменение сложившейся ситуации, по средствам небольшого её корректирования, а на полное изменение существующего уклада. Полная отдача сотрудников работе не способна снизить существующих потерь, но это может сделать бережливое производство, путём снижения затрат времени, увеличения производительности, сокращения брака и прочего.
На рассматриваемом предприятии бережливое производство должно решить следующие задачи, которые отражают слабости и угрозы, вытекающие из SWOT-анализа предприятия:
-
Увеличение скорости обучения и вливания персонала в производственный процесс;
-
Высвобождение времени для участия производственного персонала в процессах совершенствования деятельности предприятия.
Кроме того, внедрение бережливого производства позволит поддерживать высокие значения объемов производства, являющиеся сильной стороной рассматриваемого предприятия.
Но, несмотря на существующие плюсы, создание бережливого производства может оказаться убыточным для предприятия. Поэтому сначала целесообразно рассмотреть существующие ошибки на предприятиях аналогичного типа, которые приводят к полному или частичному провалу внедрения.
Первая ошибка – рассмотрение бережливого производства как «серебряной пули» для решения всех проблем. Действительно, у данного метода существует огромное количество плюсов, которые возможно использовать, но только при достаточной конкурентоспособности продукции предприятия. Российские компании часто внедряют БП в те моменты, когда их продукция катастрофически отстает техническом плане, что не может конкурировать даже с предприятиями среднего уровня. Бережливое производство – это способ повышения конкурентной способности продукции за счёт:
-
снижения времени изготовления продукции;
-
снижения затрат на производство продукции;
-
повышения качества продукции.
На рассматриваемом предприятии невозможно получить устаревание характеристик продукции, поэтому единственной угрозой для совершения первой ошибки представляется наличие слабости по новым ассортиментным позициям. В случае изменения вкусов покупателей преимущества, получаемые от БП, никак не повлияют на ситуацию на рынке, но эффект их наличия распространится и на новые виды продукции, снизив затраты на производство,
Вторая ошибка – внедрение БП подразумевает сокращение рабочих мест. На любом производящем предприятии существует неравномерная загрузка рабочих, кто-то чрезмерно загружен, кто-то наоборот имеет недостаточное количество задач. Ключевая особенность бережливого производства – это не сокращение, а перераспределение ресурсов. Для предотвращения этой ошибки сокращение персонала предприятия не будет производиться.
Третья ошибка – использование бережливого производства для получения разовых результатов. Действительно, получить разовые преимущества гораздо более просто, но предприятие должно быть ориентировано на долгосрочные перспективы.
После определения целей внедрения и предупреждения возможных ошибок можно приступать к выбору тех инструментов, которые будет внедрены в первую очередь и будут использоваться наиболее активно. Несмотря на то, что рекомендуется использовать весь доступный спектр инструментов, необходимо начинать с небольшого их количества, для плавного и постепенного вливания в производство.
Бережливое производство начинается с использования философии «5S». Это система необходима для наведения порядка, чистоты, укрепления дисциплины, повышения производительности и создания безопасных условий труда, с участием всего персонала. Данная система позволяет практически без затрат не только наводить порядок на предприятии (повышать производительность, сокращать потери, снижать уровень брака и травматизма), но и создавать необходимые стартовые условия для реализации сложных и дорогостоящих производственных и организационных инноваций, обеспечивать их высокую эффективность за счет радикального изменения сознания работников, их отношения к своему делу [18]. Данный метод позволяет решить проблему увеличение скорости обучения и вливания персонала в производство и поддерживать необходимые темпы производства.
Японское название каждого из этих принципов начинается с буквы "С":
-
Сейри: отделить нужные предметы - инструменты, детали, материалы, документы - от ненужных, с тем чтобы убрать последние;
-
Сейтон: аккуратно расположить то, что осталось: поместить каждый предмет на свое место;
-
Сейсо: поддерживать чистоту;
-
Сейкецу: соблюдать аккуратность за счет регулярного выполнения первых трех S;
-
Сицуке: придерживаться дисциплины, обеспечивающей выполнение первых четырех S .
После внедрения системы 5S необходимо улучшить контроль над производственным процессом для поддержания высоких темпов производства и контроля его качества.
Для решения проблемы участия персонала в управлении при сохранении высоких объемов производства необходимо найти и устранить потери времени, имеющиеся на предприятии. Чаще всего данные потери можно найти на этапах производства. Для этого был проведен анализ движения персонала, обслуживающего производящий поток, во время производства продукции. Результаты представлены на рисунке ниже.
Рисунок 8 – Упрощенная схема перемещений работников при осуществлении производственного процесса
Как видно из рисунка, движения персонала местами нерациональны, и потери времени определённо имеют место быть. Для решения данной проблемы целесообразно использовать планирование производства в виде U-образных ячеек.
Таким образом, внедрение инструментов бережливого производства на предприятии является возможным и позволит решить существующие проблемы, сохраняя и увеличивая имеющиеся достоинства предприятия. Пассивным преимуществом от внедрения станет ускорение переналадки производства в случае изменения ассортиментного ряда, а, значит, устранит ещё одну слабость. Кроме того, предоставление персоналу возможности участвовать в совершенствовании производственного процесса позволит увеличить их отдачу от работы, а значит, поможет параллельно косвенно решать проблемы, связанные с текучестью кадров в организации.
3.2 Описание алгоритма и расчёт эффективности внедрения инструментов бережливого производства














