ПЗ (1189640), страница 24
Текст из файла (страница 24)
Таблица З.4 – Технические характеристики крана.
4.Автосамосвал МАЗ 551603 2123.
Рисунок З.4 – Автосамосвал МАЗ 551603 2123
Таблица З.5 - Технические характеристики автосамосвала МАЗ 551603 2123
| Основные характеристики | Показатели |
| Колёсная формула / кол-во осей | 6х4 |
| Характеристики грузоподъёмности и массы | |
| Грузоподъёмность | 20000* |
| Полная масса автомобиля | 33000* |
| Распределение полной массы на переднюю ось | 7000* |
| Распределение полной массы на заднюю ось | 26000* |
| Масса снаряженного автомобиля | 12700 |
| Двигатель | |
| Модель двигателя | ЯМЗ-236БЕ(EURO-1) |
| Тип двигателя | дизель,турбо |
| Рабочий объём двигателя (силового агрегата) | 11150 |
| Мощность двигателя (силового агрегата) | 184(250) |
| Максимальный крутящий момент, Нм(кгсм) | 1030 |
| Число и расположение цилиндров | 6,V-образное |
| Коробка передач | |
| Модель коробки передач | ЯМЗ-238М |
| Тип коробки передач | механическая |
| Число передач КП | 8 |
| Диапазон коробки передач | 7,3-0,71 |
| Передаточное число | 7,14 |
| Топливная система | |
| Топливный бак | 350 |
| Контрольный расход топлива | 32 |
| Максимальная скорость | 81 |
| Подвеска | |
| Подвеска передняя | рессорная |
| Подвеска задняя | рессорно-балансирная |
| Колёса | |
| Размер колес | 8,5-20 |
| Способ крепления | клиновый(шпилечный)** |
| Шины | 12.00R20 |
| Тип колес | без(дисковые)** |
| Характеристики самосвала | |
| Платформа | самосвальн ковш.тип без задн.борта |
| Площадь платформы | 11,2 |
| Высота платформы | 1085 |
| Ширина платформы | 2280 |
| Длина платформы | 4920max |
| Объем платформы | 10,5 |
5.Автобетоносмеситель СБ – 92Б.
Рисунок З.5 – Автобетоносмеситель СБ – 92Б
Таблица З.6 – Технические характеристики Автобетоносмесителя СБ – 92Б
6.Деррик – кран УМК – 2.
Рисунок З.6 – Автобетоносмеситель СБ – 92Б
Таблица З.7– Технические характеристики деррик – крана УМК – 2
| Характеристики | Ед. изм | Показатели |
| Грузоподъемность: на оптимальном вылете на наибольшем вылете | т | 20 13 |
| Вылет стрелы: оптимальный наибольший | м | 15 22,82 |
| Максимальная высота подъема крюка от головки подкранового рельса | м | 24,10 |
| Угол поворота стрелы | град. | 160 |
| База крана: продольная поперечная | м | 11,05 8,00 |
| Полная масса крана | т | 34,2 |
7.Вибропогружатель VP 300
Рисунок З.7 – Автобетоносмеситель СБ – 92Б
Таблица З.8 – Технические характеристики
| Характеристики | Ед. изм | Показатели |
| Общая масса вибропогружателя | кг | 1050 |
| Усилие зажима | т | 36 |
| Усилие погружение/извлечения | кг | 15550 |
| Частота | об/мин | 2680 |
| Статический момент | кгм | 4 |
| Амплитуда | мм | 12 |
| Максимальная высота подъема крюка от головки | м | 24,10 |
| А | мм | 670 |
| В | мм | 150 |
| D | мм | 1460 |
| F | мм | 890 |
| G | мм | 1200 |
| H | мм | 25 |
8.Бетононасос Daewoo Novus
Рисунок З.8 – Бетононасос
Таблица З.9 – Технические характеристики
| Характеристики | Ед. изм | Показатели |
| Высота подачи | м | 42,5 |
| Дальность подачи | м | 38,5 |
| Минимальная высота раскрытия | м | 10,2 |
| Диаметр трубопровода | мм | 125 |
| Угол поворота | град | 360 |
| Размах передних опор | м | 8,3 |
| Размах задних опор | м | 9,37 |
| Масса | кг | 27850 |
| Габаритные размеры | мм | 12600х2495х3980 |
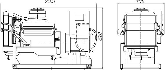
9.Компрессор
Рисунок З.9 – Габаритная схема дизельной электростанции ДЭС-100
Таблица З.10 – Характеристики дизельной электростанции ДЭС-100
| Характеристики | Ед.изм | Показатели |
| Номинальная мощность (длительная) | кВт/кВА | 100/125 |
| Максимальная часовая мощность | кВт/кВА | 110/137,5 |
| Род тока | переменный трехфазный | |
| Номинальное напряжение | В | 400 |
| Номинальная частота | Гц | 50 |
| Номинальный коэффициент мощности | 0,8 | |
| Номинальный ток | А | 180 |
| Частота вращения вала двигателя | мин-1 | 1500 |
| Продолжительность непрерывной работы при номинальной мощности | час | 8 |
| Система топливопитания | л | 200 |
| Габаритные размеры (длина*ширина*высота) | мм | 2450x1040x1145 |
| Масса сухого электроагрегата | кг | 2050 |
ПРИЛОЖЕНИЕ И. Ведомость подсчета продолжительности строительства
Таблица И.1 – Ведомость продолжительности строительства
| Наименование основных работ | Ед. Изм. | Объём работ | Норма времени на ед. | Продолжительность работ, сут. | ||||||||||||
| 1. Освоение строительной площадки, постройка необходимых помещений | 1 мост | 1 | 25 | 25 | ||||||||||||
| Опора №0 | ||||||||||||||||
| 1. Забивка стального шпунта | 1 п.м. | 21,00 | 0,3 | 7 | ||||||||||||
| 2. Разработка котлована грейфером | 100 м3 | 247,7 | 3 | 8 | ||||||||||||
| 3. Устройство тампонажного слоя толщиной 1,0м | м3 | 52,48 | 0,03 | 2 | ||||||||||||
| 4. Время для набора прочности | дни | 1 | 7 | 7 | ||||||||||||
| 5. Сооружение сборно-монолитного тела опоры | м3 | 187,88 | 0,016 | 3 | ||||||||||||
| Итого | 27 | |||||||||||||||
| Опора №1 | ||||||||||||||||
| 1. Ударно-канатное бурение скважин диаметром 1,02м в обсадных трубах | 1 п.м | 49,20 | 0,04 | 2 | ||||||||||||
| 2. Монтаж каркасов, бетонирование столбов ВПТ | м3 | 38,60 | 0,06 | 3 | ||||||||||||
| 3. Время для набора прочности | дни | 1 | 7 | 7 | ||||||||||||
| 4. Забивка стального шпунта | 1 п.м. | 28,17 | 0,3 | 9 | ||||||||||||
| 5. Разработка котлована грейфером | 100 м3 | 321,15 | 3 | 10 | ||||||||||||
| 6. Устройство тампонажного слоя толщиной 1,0м | м3 | 68,04 | 0,03 | 2 | ||||||||||||
| 7. Время для набора прочности | дни | 1 | 7 | 7 | ||||||||||||
| 8. Сооружение монолитного ростверка | 1 м3 | 51,04 | 0,045 | 3 | ||||||||||||
| 9. Время для набора прочности | дни | 1 | 7 | 7 | ||||||||||||
| 10. Сооружение сборно-монолитного тела опоры | 1 м3 | 259,16 | 0,016 | 5 | ||||||||||||
| 11. Сооружение монолитных подферменных плит | 1 м3 | 30,62 | 0,08 | 3 | ||||||||||||
| Итого | 58 | |||||||||||||||
| Опора №2 | ||||||||||||||||
| 1.Отсыпка островка объемом 500 | островок | 1 | 12 | 12 | ||||||||||||
| 2. Ударно-канатное бурение скважин диаметром 1,02м в обсадных трубах | 1 п.м. | 300,80 | 0,04 | 12 | ||||||||||||
| 3. Монтаж каркасов, бетонирование столбов ВПТ | м3 | 236,13 | 0,06 | 15 | ||||||||||||
| 4. Время для набора прочности | дни | 1 | 7 | 7 | ||||||||||||
| 5. Забивка стального шпунта | 1 п.м. | 28,17 | 0,3 | 9 | ||||||||||||
| 6. Разработка котлована грейфером | 100 м3 | 322,18 | 3 | 10 | ||||||||||||
| 7. Устройство тампонажного слоя толщиной 1,0м | м3 | 68,04 | 0,03 | 2 | ||||||||||||
| 8. Время для набора прочности | дни | 1 | 7 | 7 | ||||||||||||
| 9. Сооружение монолитного ростверка | 1 м3 | 51,04 | 0,045 | 3 | ||||||||||||
| 10. Время для набора прочности | дни | 1 | 7 | 7 | ||||||||||||
| 11. Сооружение сборно-монолитного тела опоры | 1 м3 | 435,88 | 0,016 | 7 | ||||||||||||
| 12. Сооружение монолитных подферменных плит | 1 м3 | 30,62 | 0,08 | 3 | ||||||||||||
| Итого | 94 | |||||||||||||||
| Опора №3 | ||||||||||||||||
| 1.Отсыпка островка объемом 500 | островок | 1 | 12 | 12 | ||||||||||||
| 2. Ударно-канатное бурение скважин диаметром 1,02м в обсадных трубах | 1 п.м. | 276,00 | 0,04 | 11 | ||||||||||||
| 3. Монтаж каркасов, бетонирование столбов ВПТ | м3 | 211,66 | 0,06 | 13 | ||||||||||||
| 4. Время для набора прочности | дни | 1 | 7 | 7 | ||||||||||||
| 5. Забивка стального шпунта | 1 п.м. | 28,17 | 0,3 | 9 | ||||||||||||
| 6. Разработка котлована грейфером | 100 м3 | 322,18 | 3 | 10 | ||||||||||||
| 7. Устройство тампонажного слоя толщиной 1,0м | м3 | 68,04 | 0,03 | 2 | ||||||||||||
| 8. Время для набора прочности | дни | 1 | 7 | 7 | ||||||||||||
| 9. Сооружение монолитного ростверка | 1 м3 | 51,04 | 0,045 | 3 | ||||||||||||
| 10. Время для набора прочности | дни | 1 | 7 | 7 | ||||||||||||
| 11. Сооружение сборно-монолитного тела опоры | 1 м3 | 411,38 | 0,016 | 7 | ||||||||||||
| 12. Сооружение монолитных подферменных плит | 1 м3 | 30,62 | 0,08 | 3 | ||||||||||||
| Итого | 91 | |||||||||||||||
| Опора №4 | ||||||||||||||||
| 1.Отсыпка островка объемом 500 | островок | 1 | 12 | 12 | ||||||||||||
| 2. Ударно-канатное бурение скважин диаметром 1,02м в обсадных трубах | 1 п.м. | 308,00 | 0,04 | 13 | ||||||||||||
| 3. Монтаж каркасов, бетонирование столбов ВПТ | м3 | 241,78 | 0,06 | 15 | ||||||||||||
| 4. Время для набора прочности | дни | 1 | 7 | 7 | ||||||||||||
| 5. Забивка стального шпунта | 1 п.м. | 28,17 | 0,3 | 9 | ||||||||||||
| 6. Разработка котлована грейфером | 100 м3 | 322,18 | 3 | 10 | ||||||||||||
| 7. Устройство тампонажного слоя толщиной 1,0м | м3 | 68,04 | 0,03 | 2 | ||||||||||||
| 8. Время для набора прочности | дни | 1 | 7 | 7 | ||||||||||||
| 9. Сооружение монолитного ростверка | 1 м3 | 51,04 | 0,045 | 3 | ||||||||||||
| 10. Время для набора прочности | дни | 1 | 7 | 7 | ||||||||||||
| 11. Сооружение сборно-монолитного тела опоры | 1 м3 | 387,91 | 0,016 | 6 | ||||||||||||
| 12. Сооружение монолитных подферменных плит | 1 м3 | 30,62 | 0,08 | 3 | ||||||||||||
| Итого | 94 | |||||||||||||||
| Опора №5 | ||||||||||||||||
| 1.Отсыпка островка объемом 500 | островок | 1 | 12 | 12 | ||||||||||||
| 2. Ударно-канатное бурение скважин диаметром 1,02м в обсадных трубах | 1 п.м. | 328,00 | 0,04 | 14 | ||||||||||||
| 3. Монтаж каркасов, бетонирование столбов ВПТ | м3 | 257,48 | 0,06 | 16 | ||||||||||||
| 4. Время для набора прочности | дни | 1 | 7 | 7 | ||||||||||||
| 5. Забивка стального шпунта | 1 п.м. | 28,17 | 0,3 | 9 | ||||||||||||
| 6. Разработка котлована грейфером | 100 м3 | 322,18 | 3 | 10 | ||||||||||||
| 7. Устройство тампонажного слоя толщиной 1,0м | м3 | 68,04 | 0,03 | 2 | ||||||||||||
| 8. Время для набора прочности | дни | 1 | 7 | 7 | ||||||||||||
| 9. Сооружение монолитного ростверка | 1 м3 | 51,04 | 0,045 | 3 | ||||||||||||
| 10. Время для набора прочности | дни | 1 | 7 | 7 | ||||||||||||
| 11. Сооружение сборно-монолитного тела опоры | 1 м3 | 255,20 | 0,016 | 4 | ||||||||||||
| 12. Сооружение монолитных подферменных плит | 1 м3 | 30,62 | 0,08 | 3 | ||||||||||||
| Итого | 94 | |||||||||||||||
| Опора №6 | ||||||||||||||||
| 1. Ударно-канатное бурение скважин диаметром 1,02м в обсадных трубах | 1 п.м. | 222,00 | 0,04 | 9 | ||||||||||||
| 2. Монтаж каркасов, бетонирование столбов ВПТ | м3 | 174,27 | 0,06 | 11 | ||||||||||||
| 3. Время для набора прочности | дни | 1 | 7 | 7 | ||||||||||||
| 4. Забивка стального шпунта | 1 п.м. | 21,00 | 0,3 | 7 | ||||||||||||
| 5. Разработка котлована грейфером | 100 м3 | 247,7 | 3 | 8 | ||||||||||||
| 6. Устройство тампонажного слоя толщиной 1,0м | м3 | 52,48 | 0,03 | 2 | ||||||||||||
| 7. Время для набора прочности | дни | 1 | 7 | 7 | ||||||||||||
| 8. Сооружение монолитного ростверка | 1 м3 | 27,40 | 0,045 | 2 | ||||||||||||
| 9. Время для набора прочности | дни | 1 | 7 | 7 | ||||||||||||
| 10. Сооружение сборно-монолитного тела опоры | 1 м3 | 187,88 | 0,016 | 3 | ||||||||||||
| Итого | 63 | |||||||||||||||
| Сооружение пролетных строений | ||||||||||||||||
| 1.Сооружение временных опор для полунавесного монтажа | 1пролет-ное строение | 25 | 1 | 25 | ||||||||||||
| 2.Монтаж пролётных строений со сплошной стенкой | 1пролет-ное строение | 2 | 0,2 | 1 | ||||||||||||
| 3.Полунавесной и навесной метод монтажа пролетных строений | т | 1988 | 0,09 | 179 | ||||||||||||
| 4.Монтаж барьерного ограждения и перил | 1 п.м. | 1001,9 | 0,06 | 60 | ||||||||||||
| 5.Укладка плит БМП | 1 п.м. | 500,94 | 0,28 | 141 | ||||||||||||
| Итого | 406 | |||||||||||||||
| Подготовка к сдаче моста в эксплуатацию | ||||||||||||||||
| Подготовка к сдаче моста в эксплуатацию | 1 мост | 1 | 20 | 20 | ||||||||||||
| Итого | 20 | |||||||||||||||
| Итого по мосту | 947≈ 31,5 мес | |||||||||||||||
ПЕРЕЧЕНЬ ЧЕРТЕЖЕЙ
Лист №1 – Варианты № 1, 2, 3;
Лист №2 – Варианты № 4, 5,6;
Лист №3 – Общий вид моста по разрабатываемому варианту;
Лист №4 – Конструкция промежуточной опоры;
Лист №5 – Конструкция береговой опоры;
Лист №6 – Конструкции БНС промежуточной опоры;
Лист №7 – Конструкция БНС береговой опоры;
Лист №8 – ППР по промежуточной опоре;
Лист №9 – ППР по береговой опоре;
Лист №10 – Полунавесной монтаж пролетного строения №2;
Лист №11 – Навесной монтаж пролетного строения №3;
Лист №12 – Строительная площадка;
Лист №13 – Календарный график работ;













