Разработка технологического процесса обработки детали «Диск» (1094130)
Текст из файла
Московский Государственный Университет Инженерной Экологии
кафедра ТХМ и А
Домашняя работа по ТМ
Разработка технологического процесса обработки
детали «Диск»
Работу выполнила:
студентка группы Э-33
Работу проверил:
Матвеев А.П.
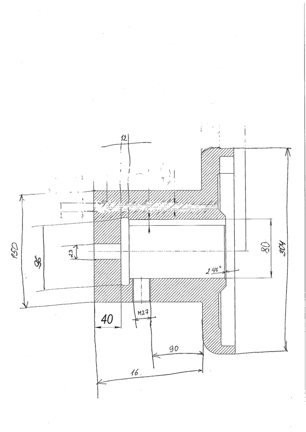
Приблизительно этот «Диск» выглядит так
Обоснование выбора и метода изготовления заготовки.
При выборе метода изготовления заготовки нужно учесть:
- конструктивную форму, размеры, массу и материал детали;
- годовую программу выпуска;
- необходимую точность изготовления заготовки;
- шероховатость и качество поверхностных слоив материала заготовки.
Годовой выпуск 2000 шт., следовательно, для данной детали выбираем среднесерийный тип производства.
Выбранный метод должен обеспечить наименьшую себестоимость детали.Метод изготовления заготовки выбираем на основе сравнения результатов технико-экономического анализа нескольких возможных методов изготовления заготовки. Рациональным является получение заготовки литьем в песочную форму и кокильное литье.
Для выбора метода необходимо рассчитать стоимость получения заготовки и сравнить результаты по запланированным методам.
Стоимость заготовки методом литья в песочную форму:
Масса готовой детали “Диска” m=68кг;
объем готовой детали “Диска”:
,
Найдем объем заготовки, после того, как назначены напуски и припуски на изготовление диска. Расчет сделаем увеличено, допущения на механическую обработку назначаются приблизительно. Объем заготовки определяется как сумма объемов простых геометрических тел, из которых состоит заготовка.
Заготовку условно представим как такую, которая состоит из параллелепипеда размером
и диска R, h2, внутренней полостью в форме цилиндра размерами r и h3.
= 18,1 х 16,6 х 16,8 + 3,14 х 22,82 х 4,4 – 3,14 х 6,62 х 16,3 = 5047,7 + 7183,3 – 2229,4 = 10000,5 см3
При плотности стали 25 Л ρ= 7,8 г/см3 m=ρ x V = 7,8 х 10000,5 = 78003,92 = 7,8 кг;
Цену заготовки, полученной литьем в песочную форму определяем зависимостью
Сп= 0,001[Сбп х Gп Kт.п x Kс.п. x Kн.п. x Kп.п. x Kв.п. - (Gп –Gф) x Cв.х. ];
где: Сп и Сб.п. – цена заготовки и базовая цена одной тонны заготовок, изготовленных из базового материала, с базовой точностью и сложностью заготовки, руб.;
Gп – масса заготовки, кг; Кт.п., Кс.п., Кн.п., Кп.п., Кв.п. – коэффициенты соответственно точности размеров и технологической сложности заготовки, марки материала, программы годового заказа и массы заготовки, значения базовых цен заготовки и отмеченных коэффициентов приведенных.
Сп = 0,001 х [916,78 х 1,39 х 1,14, х 1,14 х 1,09, х 0,93 -(78-68)х96] = 64,5 руб.
Стоимость заготовки методом литья в кокиль. Находим объем заготовки после того, как назначены напуски и допущения на изготовление диска. Расчет выполняется приблизительно, так же, как и в предыдущем варианте:
= 17,2 х 15,8 х 16,4 + 3,14 х 222 - 2,8 – 3,14 х 72 х 15,8 = 9281,1 см3
Получим массу заготовки:
m=V x ρ = 7,8 х 9281,1 = 72392,5г = 7,2 кг
Цену заготовки, полученной литьем в кокиль найдем за такой же формулой, что и в первом варианте:
Сп= 0,001[Сбп х Gп Kт.п x Kс.п. x Kн.п. x Kп.п. x Kв.п. –(Gп –Gф) x Cв.х. ]=
= 0,001 х [981 х 72,3 х 1,24, х 1,08 х 1,12 х 1,09 х 0,87 - (72-68)х96] = 50 руб.
Таким образом, получение заготовки методом кокильного литья представляется наиболее дешевым способом.
Сущность метода кокильного литья заключается в заливке расплавленного металла в металлические подогретые формы. Дальше формы разнимают, из них удаляют отблески. Точность отливок 1,5 мм на 100мм, при особенных условиях точность можно довести до 0,5мм на 100мм.
Отливки выходят плотные, мелкозернистые, имеют гладкие и чистые поверхности, малые допуски и припуски, однородные по свойствами. Кроме того, снижаются расходы формуемых материалов в 8-10 раз. Стойкость кокилей, изготовленных из чугуна или стали составляет для стальных отливок в среднем 500-700 отливок.
Получение полостей в кокильных отливках происходит с помощью стержней. В результате проведенного анализа, для диска лучше всего применить кокильное литье. К тому же в результате кокильного литья диска в процессе механической обработки ряд поверхностей не нуждается в обработке.
Вывод: получение заготовки методом кокильного литья представляется наиболее дешевым способом.
Определение припусков на обработку.
Определение припусков расчетно-аналитическим методом выполним для поверхностей, маршрут обработки которых предусматривает многоэтапную последовательность обработки. В этом случае это поверхностьØ 80Н7(+0,03). Технологический маршрут обработки записываем в таблицу расчетов припусков. Также записываем в таблицу соответственно каждому переходу значения элементов припусков.
Для заготовок, полученных литьем в кокиль, значения коэффициентов будут равняться: Rz=200мкм; Т=300
Расчет допуcков и предельных размеров на обработку отверстия Ø80Н7
| Технологические переходы обработки поверхности Ø80Н7 | Элементы припуска, мкм | Расчетное допущение 2Zmin,мкм | Расчетный размер, dp, мкм | Допуск б, мкм | Предельный размер, мм | Предельные значения припусков, мкм | |||||
| Rz | T | ρ | E | dmin | dmax | 2Z пр min | 2Zпр min | ||||
| 1 | 2 | 3 | 4 | 5 | 6 | 7 | 8 | 9 | 10 | 11 | 12 |
| Заготовка | 200 | 300 | 290 | 78,034 | 740 14кв | 77,29 | 78,03 | ||||
| Растачивание черновое | 50 | 50 | 14,5 | 168 | 2х835 | 79,704 | 190 11кв | 79,51 | 79,7 | 1670 | 2220 |
| Чистовое | 20 | 25 | 2 | 8,4 | 2х116 | 79,936 | 74 9кв | 79,866 | 79,940 | 240 | 356 |
| Тонкое | 5 | 10 | - | - | 2х47 | 80,03 | 30 7кв. | 80,00 | 80,03 | 90 2000 | 134 2710 |
Величина пространственного отклонения составляет ρ=290 мкм. Величина станочного пространственного отклонения после чернового растачивания
=0,05 х ρ= 0,05 х 290= 14,5 мкм
Погрешность установки при черновом растачивании
Остаточная погрешность установки при чистовом растачивании
Е2=0,05 х Е1=0,05 х 168=8,4
Так как черновое и чистовое растачивание проводится в одной установке, то Ед=0;
На основе записанных в таблице данных проводим расчет минимальных значений межоперационных припусков, используя основную формулу:
Минимальное припуск под растачивание:
-черновое
2Zmin1=2(200+300+
) = 2 х 835 мкм
-чистовое
2Zmin2=2(50+50+
) =2 х 116 мкм
-тонкое
2Zmin3=2(20+25+2) = 2 х 47 мкм
Имея расчетный размер, после последнего перехода (тонкое растачивание Ø80,03), для других переходов получаем:
-для чистового растачивания
dp=80,03 – 2 x 0,047 = 79,936мм
- для чернового растачивания
dp=79,936 – 2 x 0,116 = 79,936мм
- для заготовки:
dp=79,704 – 2 x 0,835 = 79,936мм
Значение допусков каждого перехода принимаем и таблицам в соответствии с квалитетом: заготовка – 14 кв.; растачивание черновое – 11 кв.; растачивание чистовое – 9 кв.; растачивание тонко – 7 кв.;
dmax – расчетный размер, округленный к точности соответствующего допуска; dmin – это наибольший размер с вычитанием допуска.
Минимальные значения припусков равные разнице наибольших предельных переходов, а максимальное значение – соответственно разница наименьших предельных размеров.
Общие допущения Zmin и Zmax определяем добавляя промежуточные допущения и записываем их значение внизу соответствующих граф
2Zоmin=90+240+1670=2000мкм
2Zоmах=134+356+2220=2710мкм
Общий номинальный припуск
Zоном=Zоmin+Вв-Вд=2000+370-30=2340 мкм
dзном=dдном- Zоном=80-2,34=77,66 мкм
Припуски и допуски на поверхности детали “Диск":
| Поверхность | Размер | Допуск | Припуск | |
| 1 | 165 | 2х2,4 | ||
| 2 | 160 | 2х2,4 | ||
| 3 | 160 | 2,4 | ||
| 4 | Сверление резьбы в сплошном металле | |||
| 5 | Растачивание канавки в сплошном металле | |||
| 6 | Ø80 | 2 х 2,3 (расчетный 2х1,2) | ||
| 7 | 100 | 2,3 | ||
| 8 | Ø304 | :2,8 | ||
| 9 | Сверление в сплошном металле | |||
| 10 | Сверление в сплошном металле | |||
| 11 | Шпоночная канавка в сплошном металле | |||
Характеристики
Тип файла документ
Документы такого типа открываются такими программами, как Microsoft Office Word на компьютерах Windows, Apple Pages на компьютерах Mac, Open Office - бесплатная альтернатива на различных платформах, в том числе Linux. Наиболее простым и современным решением будут Google документы, так как открываются онлайн без скачивания прямо в браузере на любой платформе. Существуют российские качественные аналоги, например от Яндекса.
Будьте внимательны на мобильных устройствах, так как там используются упрощённый функционал даже в официальном приложении от Microsoft, поэтому для просмотра скачивайте PDF-версию. А если нужно редактировать файл, то используйте оригинальный файл.
Файлы такого типа обычно разбиты на страницы, а текст может быть форматированным (жирный, курсив, выбор шрифта, таблицы и т.п.), а также в него можно добавлять изображения. Формат идеально подходит для рефератов, докладов и РПЗ курсовых проектов, которые необходимо распечатать. Кстати перед печатью также сохраняйте файл в PDF, так как принтер может начудить со шрифтами.















