ПЗ (1052360), страница 3
Текст из файла (страница 3)
На основании расчета представленного в приложении А минимальная длина пролета для беззаторного пропуска ледохода составляет 7,97м.
Коэффициент общего размыва равен 1,15 (приложение Б).
Величина местного размыва для варианта №1 составила 0,76м (приложение В). Для остальных вариантов расчет выполнен аналогично данному.
Эскизный расчет фундамента по несущей способности основания представлен в приложении Г (для промежуточной опоры варианта №1, для остальных выполнен аналогично данному).
1.2.1 Вариант №1
Схема моста 42.5+63+42.5. Длина моста – 158,42м.
В первом вариане принято металлическое неразрезное пролетное строение. Несущие конструкции представляют собой две сплошностенчатые сварные балки. Объединение блоков главных балок между собой и с ортотропной плитой запроектировано на высокопрочных болтах.
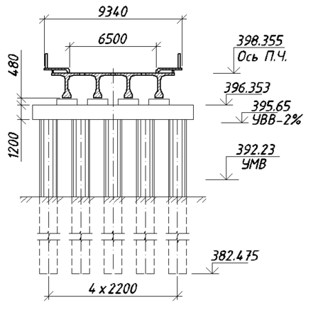
Длина столбов промежуточных опор составляет 15м, для береговых опор 8м. Поперечный разрез представлен на рисунке 1.1. Фактическое отверстие моста 135,67м.
Рисунок 1.1 – Разрез поперек оси моста
1.2.2 Вариант №2
Схема моста 42.5+63+42.5. Длина моста – 158,42м.
В данном варианте применено пролетное строение сталежелезобетонное неразрезное с ездой поверху. Принято в северном исполнении по т.п.3.509.9-110.93 выпуск 5. Несущие конструкции представляют собой две сварные сплошностенчатые двутавровые балки , объединенные с помощью жестких упоров со сборной железобетонной плитой проезжей части. Пролетное строение устанавливается на металлические литые опорные части по т.п. серии 3.503.1-35 (тип3 и тип4).
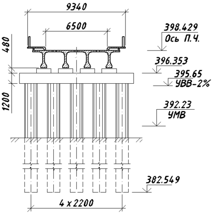
Длина столбов промежуточных опор составляет 16м, для береговых опор 9м. Поперечный разрез представлен на рисунке 1.2. Фактическое отверстие моста 135,67м.
Рисунок 1.2 – Разрез поперек оси моста
1.2.3 Вариант №3
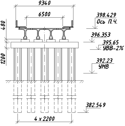
Схема моста 6х24. Длина моста – 155,89м.
В данном варианте применено пролетное строение сталежелезобетонное неразрезное с ездой поверху. Принято в северном исполнении по т.п.3.509.9-43-89 выпуск 0. Несущие конструкции представляют собой две сварные сплошностенчатые двутавровые балки , объединенные с помощью жестких упоров со сборной железобетонной плитой проезжей части.
Максимальная длина столбов для промежуточных опор составляет 13м, для береговых опор 5м. Поперечный разрез представлен на рисунке 1.2. Фактическое отверстие моста 131,68м.
Рисунок 1.3 – Разрез поперек оси моста
1.2.4 Вариант №4
Схема моста 7х21. Длина моста – 157,40м.
В данном варианте используются железобетонные типовые пролетные строения серии 3.503.1 – 81 «Пролетные строения сборные железобетонные длиной 24,0 м из балок таврового сечения с напрягаемой арматурой для мостов и путепроводов, расположенных на автомобильных дорогах общего пользования». Типовое пролетное строение собирают из четырех отдельных двутавровых балок-блоков с развитой плитой проезжей части. Расстояние между балками 2,1 м. Балки-блоки объединяют в уровне плиты проезжей части бетонированием стыка. Опорные части приняты по т. п. 3.503.1 – 81 (выпуск 4-1). Максимальная длина столбов для промежуточных опор составляет 14м, для береговых опор 6м. Фактическое отверстие моста 134,62м.
Рисунок 1.4 – Разрез поперек оси моста
1.2.5 Вариант №5
Схема моста 6х24. Длина моста – 154,35м.
В данном варианте используются железобетонные типовые пролетные строения серии 3.503.1 – 81 «Пролетные строения сборные железобетонные длиной 21,0 м из балок таврового сечения с напрягаемой арматурой для мостов и путепроводов, расположенных на автомобильных дорогах общего пользования». Типовое пролетное строение собирают из четырех отдельных двутавровых балок-блоков с развитой плитой проезжей части. Расстояние между балками 2,1 м. Балки-блоки объединяют в уровне плиты проезжей части бетонированием стыка. Опорные части приняты по т. п. 3.503.1 – 81 (выпуск 4-1). Максимальная длина столбов для промежуточных опор составляет 14м, для береговых опор 6м. Фактическое отверстие моста 129,92м.
Рисунок 1.5 – Разрез поперек оси моста
1.2.6 Вариант №6
Схема моста 24+3х33+24. Длина моста – 157,3м.
В данном варианте используются железобетонные типовые пролетные строения серии 3.503.1 – 81 «Пролетные строения сборные железобетонные длиной 21,0м и 33м из балок таврового сечения с напрягаемой арматурой для мостов и путепроводов, расположенных на автомобильных дорогах общего пользования». Типовое пролетное строение собирают из четырех отдельных двутавровых балок-блоков с развитой плитой проезжей части. Расстояние между балками 2,1 м. Балки-блоки объединяют в уровне плиты проезжей части бетонированием стыка. Опорные части приняты по т. п. 3.503.1 – 81 (выпуск 4-1). Максимальная длина столбов для промежуточных опор составляет 16м, для береговых опор 6м. Фактическое отверстие моста 135,296м.
Рисунок 1.6 – Разрез поперек оси моста
1.3 Технико-экономическое сравнение вариантов
Сравнение вариантов был проведено в ценах 1984г. Технико-экономические показатели отдельных вариантов приведены в приложении Д.
Результаты сравнения приведены в таблице 1.10.
Таблица 1.10 – Показатели вариантов
| Вариант | Стоимость т.р. | Трудоемкость ч-д |
| №1 | 675,717 | 3783,6 |
| №2 | 779,222 | 4043,73 |
| №3 | 792,564 | 10142,0 |
| №4 | 296,607 | 7156,63 |
| №5 | 282,372 | 6766,97 |
| №6 | 291,599 | 6772,42 |
По выше приведенным данным можно сделать вывод, что увеличение числа пролетов не производит необходимого эффекта. Наименьший по стоимости получится вариант №6, но в связи с большой отдаленностью района строительства более важным критерием выбора является трудоемкость. Таким образом к дальнейшей разработке принимается вариант №1, как наименее трудоемкий.
2 Расчет и конструирование элементов сооружения
2.1 Конструктивные решения по выбранному варианту
Схема моста 42+63+42. Длина моста – 158,42м.
Несущие конструкции пролетного строения представляют собой две сплошностенчатые балки. Объединение блоков главных балок между собой и с ортотропной плитой на высокопрочных болтах. Схема пролетного строения представлена на рисунке 3.1.
Рис.2.1. Конструкция пролетного строения.
Опорные части ОЧШС по ТУ 2530.001-169880466-01.
Ограждение проезжей части принято в соответствии с ГОСТ Р 52289-2004 высотой 0,75м. Водоотвод с проезжей части и тротуаров предусмотрен за счет продольных и поперечных уклонов через тротуары к водоотводным лоткам вдоль пролетного строения к опорам. Конструкция сопряжения моста с насыпью принята применительно к типовой серии 3.503.1-96 СДП с монолитной ж.б плитой переходной полузаглубленной плитой длиной 6м.
2.2 Расчет и конструирование береговой опоры
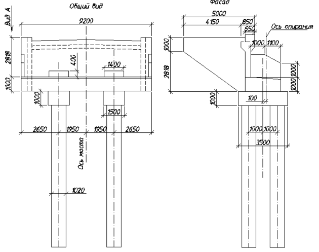
Береговая опора принята на сваях из стальных труб диаметром 1020х10мм по ГОСТ 10704-91 с заполнителем монолитным железобетоном. Верх опор из монолитного железобетона . Конструкция опоры приведена на рисунке2.2 и рисунке 2.3.
Рисунок 2.2 – Общий вид и фасад береговой опоры
В ходе расчета береговой опоры в программе «Опора_Х» длина свай была увеличина на 2 м (приложение Е). После чего в программе «Beton» было подобрано армирование свай (приложение З).
Рисунок 2.3 – Береговая опора, вид сверху
Ниже представлен алгоритм расчета опор в программе «Опора_Х». Результаты расчета приведены в приложениях Е,Ж.
Алгоритм расчета:
1. Строится Линия Влияния опорной реакции для рассчитываемой опоры. График выводится на экран с возможностью вычисления ординаты в любой точке.
2. Определяются постоянные нагрузки в расчетном сечении :
- от собственного веса пролетов и конструкций опоры;
- от веса грунта на уступах фундамента;
- для русловых опор - объемы погруженной в воду части опоры (взвешивающие силы), и вес воды на уступах тела опоры (если включено в настройках);
- для устоев - боковые давления от собственного веса грунта со стороны насыпи и со стороны пролета. Давление вычисляется отдельно по площади каждой ступени [высота] Х [расчетная ширина], для шкафной стенки, ригеля, тела опоры и т.д., приводится к расчетному сечению (момент силы My) и суммируется.
3. Вычисленные нормативные постоянные нагрузки, а также коэффициенты перегрузки, выводятся в табличной форме в новом окне для просмотра и корректировки. Здесь можно отредактировать вес каждой ступени тела опоры (кнопка «Веса ступеней») например, если ступень сложной формы (закругления, пространственная ферма).
4. Определяются расчетные и суммарные постоянные нагрузки.
5. По линиям влияния опорных реакций вычисляются временные вертикальные нагрузки от загружения пролетов: одной полосой АК, нагрузкой на тротуарах и тяжелой нагрузкой НК-80, НК-100, или НГ-60, или нагрузкой от толпы при расчете пешеходных мостов.
6. Определяются схемы загружения пролетов (для устоев нагрузка располагается на пролете и устое ) :
- "А" : нагрузка АК на двух пролетах с тротуарами. Ось первой полосы-
на расстоянии 1.5 м от полосы безопасности;
- "Б" : нагрузка АК на двух пролетах без тротуаров. Ось первой полосы- на расстоянии 1.5 м от бордюра;
- "В" : нагрузка АК на одном пролете с тротуарами. При опирании на опору неразрезных пролетов нагрузка АК с тротуарами располагается на отрицательных участках линии влияния. Для устоев , на которые опираются разрезные пролеты, нагрузки по схеме "В" не определяются . Ось первой полосы- на расстоянии 1.5 м от полосы безопасности;
- "Г" : нагрузка АК на одном пролете без тротуаров. При опирании на опору неразрезных пролетов нагрузка АК располагается на отрицательных участках линии влияния. Для устоев, на которые опираются разрезные пролеты, нагрузки по схеме "Г" не определяются ) . Ось первой полосы- на расстоянии 1.5 м от ограждения проезжей части;
- "Д" : НК-80, НК-100, или НГ-60 на двух пролетах.
- "Е" : НК-80, НК-100, или НГ-60 на одном пролете. При опирании на опору неразрезных пролетов нагрузка располагается на отрицательных участках линии влияния. Для устоев , на которые опираются разрезные пролеты, нагрузки по схеме "Е" не определяются ).















