4 (1016818), страница 3
Текст из файла (страница 3)
— цепные, поворачивающие изделие вокруг оси, проходящей через изделие, с помощью гибкой тяги на которую кладут изделие {рис. 4.18, в);
— кольцевые, поворачивающие изделие вокруг оси с помощью разъёмного кольца, охватывающего изделие (рис. 4.18, г).
Рис. 4.19. Сварочные колонны для самоходного (а) и подвесного (6) сварочных автоматов:
Рис. 4.20. Общий вид колонны с универсальным вращателем
Рис. 4.22. Схема (а) и общий вид (б) универсальной установки для дуговой сварки, собранной из унифицированного механизированного оборудования
Колонны для сварочных автоматов предназначены: для установки и перемещения либо самоходных, либо подвесных (несамоходных) сварочных автоматов (рис. 4.19). Первые применяются для сварки кольцевых и прямолинейных продольных швов, вторые - только для кольцевых швов.
Б
ольшинство колонн поворотные, что делает возможным отводить сварочный аппарат в сторону и устанавливать свободно изделие каким-либо подъёмным устройством; известны также передвижные (по рельсовому пути) и стационарные колонны.
Колонны могут быть снабжены фильтровентиляционными агрегатами для отсоса вредных веществ из зоны сварки и использованы при работе с универсальными, вертикальными, горизонтальными и роликовыми вращателями (рис. 4.20).
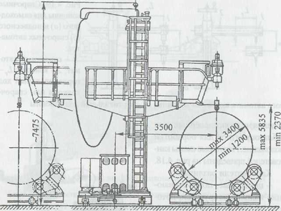
К оборудованию для перемещения сварщика относительно изделия относятся различного рода подъёмные и подъёмно-выдвижные площадки (балконы) с механизированным приводом дистанционного управления (рис. 4.21). При электрошлаковой сварке барабанов, котлов и других крупногабаритных изделий требуется перемещение сварщиков по вертикали на несколько метров. В этих случаях в процессе сварки применяют специальные лифты.
На рис. 4.22 приведена схема установки для дуговой сварки под флюсом, собранной из унифицированного механизированного оборудования. Эта установка с рабочим балконом предназначена для сварки резервуаров внешними продольными и кольцевыми швами. Возможность комбинации этой установки с четырьмя роликовыми вращателями обеспечивает высокую степень её загрузки. При дуговой сварке под флюсом кольцевыми швами на балконе можно устанавливать и перемещать сварочную головку на расстояние 2,5 м с целью точного позиционирования.
Существенное повышение производительности достигается при оснащении установки двумя сварочными головками и системой автоматического слежения за стыком. Установку можно оборудовать видеосистемой наблюдения за процессом сварки, и тогда она будет обслуживаться одним оператором.
4.4.3. Поточные механизированные и автоматизированные линии
Поточной механизированной сборочно-сварочной линией называется комплекс оборудования, расположенного в порядке последовательности технологического процесса и обеспечивающего механизированное выполнение операций изготовления сварного изделия.
Схема поточной механизированной линии изготовления скребков шахтных транспортеров показана на рис. 4.23. Полосовой металл подается со склада на поточную линию к прессу /, на котором полосы режутся на заготовки необходимых размеров. Затем на прессе 2 производится гибка полос, после чего они передаются на правильную плиту 3 и после правки складываются в ящики 4. Выправленные детали собирают в приспособлениях с клиновыми зажимами на двух поворотных столах 5 (на каждом столе имеется по четыре таких приспособления). За каждым поворотным столом работают двое рабочих: один собирает скребок и освобождает его после прихватки, а второй осуществляет прихватку собранных деталей.
Собранный скребок устанавливают в поворотное приспособление для автоматической сварки его под флюсом. На линии имеются два сварочных конвейера. Рабочий-сварщик вручную продвигает тележку к первой сварочной головке 6, где накладывается наружный сварной шов. После этого автосварщик поворачивает приспособление на 180°, ссыпает флюс и передвигает тележку ко второй сварочной головке 7, на которой другой рабочий выполняет внутренний сварной шов, вынимает скребок из приспособления и передает его на плиту 8, где производится зачистка от шлака.
Освободившаяся тележка по наклонному пути под действием собственного веса перекатывается к началу конвейера. Для проверки качества сварки предусмотрен контрольный пункт 9. Дефекты сварных швов устраняют на рабочем месте 10.
Рис. 4.23. Схема поточно-механизированной линии (а) изготовления скребков шахтных транспортёров (б)
Автоматической сборочно-сварочной линией называется комплекс технологического и подъёмно-транспортного оборудования, выполняющего операции подготовки, сборки и сварки без непосредственного участия человека в определённой технологической последовательности и с определённым тактом.
4.4.4. Сварочные роботы
Термин «робот» ввёл чешский писатель Карел Чапек в 1920 г. в своей фантастической пьесе «РУР» («Россумские универсальные роботы»). Этим словом были названы механические рабочие, предназначенные для замены людей на тяжёлых физических работах. Далее многочисленное семейство роботов получило развитие на страницах научно-фантастических романов. Но не прошло и сорока лет, как робот вышел из стен научных лабораторий и начал применяться на производстве.
Согласно ГОСТ 25686-83 промышленный робот - это автоматическая машина, представляющая собой манипулятор с перепрограммируемым устройством управления для выполнения в производственном процессе двигательных и управляющих функций, заменяющих аналогичные функции человека при перемещении предметов производства и (или) технологической оснастки.
Промышленный робот для сварки - это манипуляционная система, оснащённая техническими средствами ведения сварочного процесса, с программным управлением координатами сварочного инструмента и изделия и параметрами режима сварки. Робот имеет подвижную руку и шарнирную кисть с захватом, которые обладают свободой пространственных перемещений, в какой-то степени имитируя руку человека. В захвате кисти закрепляют сварочную головку (сварочные клещи при контактной сварке). Большинство сварочных роботов имеют пять движений (степеней свободы): три движения «руки» и два движения «кисти» (рис. 4.24).
При работе сварочных роботов оператор становится в известной степени руководителем специализированного сварочного поста, в обязанности которого входят:
- выполнение несложных заданий по программированию;
- управление и контроль всех процессов в пределах роботизированного сварочного поста;
- контроль качества деталей, сваренных роботом;
- устранение неполадок при незапланированных остановках робота;
- выполнение дополнительных сварочных работ, недоступных для робота;
- заполнение магазинов для заготовок и присадочных материалов;
- очистка и замена изношенных деталей, например, сопел горелок;
- работа в контакте с механиками по обслуживанию и ремонту, а также с мастерами и технологами.
В состав робототехнологического комплекса могут входить, например: сварочный робот (рис. 4.25) со шкафом и пультом управления, а также программирующим устройством; оборудование для установки и перемещения заготовок; сварочное оборудование; технологическая осна стка робота (например, устройство очистки и смазки горелки, защиты её от поломки).
В промышленно развитых странах серьёзные стимулы роста инвестиций в производство и применение промышленных роботов следующие:
— непрерывное снижение стоимости промышленных роботов на фоне роста стоимости рабочей силы (так, с 1990 по 1999 г. средняя цена промышленных роботов на рынке США снизилась н 40 %, в то время как стоимость рабочей силы повысилась на 38-39 %);
— недостаток квалифицированной рабочей силы;
— освобождение работающих на производстве от тяжелого, интенсивного и монотонного труда;
— возможность улучшения экологической обстановки на производстве.
Применение роботов для автоматизации процессов дуговой сварки целесообразно при одновременном выполнении следующих условий:
— изделие выпускают мелкими и средними партиями;
— швы сварных соединений конструкции - сложной формы либо короткие и различным образом ориентированы в пространстве;
— к швам сварных соединений предъявляют повышенные требования стабильности качества (от изделия к изделию) с минимальным влиянием «человеческого фактора»;
— разработка, изготовление и обслуживание специального сварочного автомата дороже применения серийно выпускаемого промышленного робота;
— высокая культура заготовительного и сварочного производства, наличие на предприятии соответствующих технических служб по наладке и ремонту робототехнологических комплексов;
— создание на предприятии благоприятных условий (как моральных, так и материальных) для обслуживающего робот персонала, стимулирующих бесперебойность работы комплекса.
Рис. 4.24. Схемы роботов с перемещением руки в сферической (а) и прямоугольной (б) системе координат
Рис. 4.25. Роботизированная сварочная система серии ARC MATE
4.5. ДОПОЛНИТЕЛЬНАЯ ОБРАБОТКА СВАРЕННЫХ УЗЛОВ
Как указывалось в гл.1 в процессе изготовления сварных конструкций в них возникают сварочные напряжения и деформации. Поэтому для устранения деформаций после сварки и снижения остаточных напряжений конструкции подвергаются дополнительной
правке, прокатке, термической и вибрационной обработке. Кроме того, в ряде случаев требуется зачистка сварных швов.
4.5.1, Устранение деформаций после сварки
Для крупногабаритных сварных узлов применяют гидравлические правильные прессы и специализированные правильные машины. Так. грибовидность сварных двутавровых балок - деформацию полок, образующуюся вследствие усадки сварных швов, выправляют на специализированной машине по схеме, приведенной на рис. 4.27
Широко применяемая для устранения деформаций термическая правка - это концентрированный и быстрый нагрев небольших участков конструкции с целью создания в них пластических деформаций сжатия. Быстро нагретый участок, когда вокруг него металл остаётся сравнительно холодным, стремится расшириться во все стороны и из-за сопротивления расширению со стороны окружающего его холодного металла получает пластические деформации укорочения. В результате площадь прогретого участка после охлаждения уменьшается. Термическую правку применяют в основном для устранения деформаций коробления листовых конструкций и ликвидации изгиба балочных конструкций.
На рис. 4.26 изображена искривлённая балка таврового сечения, и тёмными пятнами показаны возможные формы и расположение прогретых участков для выправления балки.
Для механической правки в холодном состоянии крупнога баритных сварных узлов применяют гидравлические правильные прессы и специализированные правильные машины. Так. грибовид-ность сварных двутавровых балок - деформацию полок, образующуюся вследствие усадки сварных швов, выправляют на специализированной машине по схеме, приведенной на рис. 4.27, а. Ролики 1 и 3 служат для подачи балки в процессе правки, нажимной ролик 2 совершает возвратно-поступательное движение, передаваемое ему от электродвигателя через червячный редуктор и зубчатую передачу.
Сварные цилиндрические оболочки правят на трёх- и четырёх-валковых листогибочных машинах (рис. 4.27, б).
Термомеханическая правка заключается в сочетании местного нагрева с приложением статической нагрузки, изгибающей исправляемый элемент конструкции в нужном направлении. Эта нагрузка может создаваться домкратами, прессами или другими устройствами. Применение дополнительного нагрева способствует снижению усилий, необходимых для устранения деформаций. Такой способ правки обычно применяют для жёстких сварных узлов.
















