ПЗ (восстановлен) (1004298), страница 6
Текст из файла (страница 6)
Сравнение вариантов по приведенной единичной стоимости
Из таблицы 1.7 видно, что вариант №3 является наиболее экономически целесообразным, принимаем его к дальнейшей детальной разработки конструкции и технологи производства работ. Общий вид, план и разрезы приоритетного варианта детально показаны на листе №3
2. ДЕТАЛЬНАЯ РАЗРАБОТКА ВЫБРАНОГО ВАРИАНТА МОСТА
2.1 Расчет и конструирование промежуточной опоры
2.1.1 Конструкция опоры
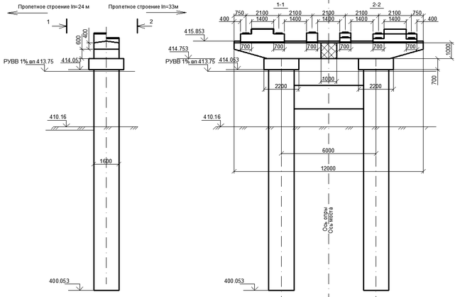
Общий вид опоры №2 показан на рисунке 2.1
Рисунок 2.1 Конструкция промежуточной опоры №2
Промежуточная опора представляет собой столбчатые опоры на сваях-оболочках диаметром 1.6 м с бесплитным фундаментом, объединённых блоками ригеля. Столбы впоследствии заполняются бетоном классом B25 по прочности, F300 по морозостойкости, W6 водонепроницаемости. Так же были приняты во внимание такие факторы, сейсмичность района и карчеход. В соответствии с СП 14.13330.2014 "СНиП II-7-81* Строительство в сейсмических районах", в качестве антисейсмических мероприятий применены антисейсмические тумбы. Против карчехода устраиваются диафрагмы между столбами опор.
2.1.2 Сбор нагрузок. Сочетания нагрузок
Сбор нагрузок производится в программе «ОПОРА_Х».
Программа «ОПОРА_X» предназначена для cбора нагрузок и расчета фундаментов устоев и промежуточных опор автодорожных, железнодорожных, и пешеходных мостов (любых габаритов проезжей части, с разрезными и неразрезными пролетными строениями, мостов на кривых, и косых путепроводов) на следующие нагрузки и их сочетания:
- Постоянные нагрузки от веса конструкций и воздействия грунта и воды;
- Временные вертикальные нагрузки (с сопутствующими горизонтальными):
- АК, НК – для автодорожных мостов;
- Ветровая нагрузка с учетом динамической составляющей;
- Давление грунта от временной нагрузки на призме обрушения (для устоев);
- ледовые нагрузки (для русловых опор);
- нагрузки от навала судов (для мостов на судоходных реках);
- сейсмические нагрузки при сейсмичности от 7 до 9 баллов
в соответствии с требованиями СНиП 2.05.03-84* «Мосты и трубы», СНиП 2.02.01-83* «Основания зданий и сооружений» и СНиП 2.02.03-85 «Свайные фундаменты», СНиП II-7-81* «Строительство в сейсмических районах», СНиП 2-01-07-85 «Нагрузки и воздействия», СП 50-102-2003, ГОСТ Р 52748-2007 «Дороги автомобильные общего пользования. Нормативные нагрузки, расчетные схемы загружения и габариты приближения».
Все сочетания нагрузок разделяются на 4 группы:
1) Основные сочетания: сюда входят постоянные нагрузки, временные
вертикальные и сопутствующие им нагрузки, ветер;
2) Ледовые сочетания (если есть ледоход и опора - русловая): кроме перечисленных в п. 1 нагрузок сюда входят нагрузки от высокого ледохода и от первой подвижки льда;
3) Сочетания от навала судов (если опора - русловая и судоходная): кроме перечисленных в п. 1 нагрузок сюда входят нагрузки от навала судов вдоль и поперек моста;
4) Сейсмические сочетания (если есть сейсмика): сюда входят сейсмические нагрузки.
2.1.3 Расчеты. Результаты расчетов
Расчет опоры моста под нагрузку А-14 и Н-14 производится в программе «ОПОРА_X».
. Определяются постоянные нагрузки в расчетном сечении :
-
от собственного веса конструкций опоры;
-
от веса грунта на уступах фундамента;
-
для русловых опор - объемы погруженной в воду части опоры (взвешивающие силы);
-
для устоев - боковые давления от собственного веса грунта со стороны насыпи и со стороны пролета;
2. Вычисленные нормативные постоянные нагрузки выводятся в табличной форме на экран для просмотра и корректировки
3. Определяются расчетные и суммарные постоянные нагрузки;
4. По линиям влияния опорных реакций вычисляются временные вертикальные нагрузки от загружения пролетов: одной полосой АК, нагрузкой на тротуарах и тяжелой нагрузкой НК-80 (или НГ-60 ) или нагрузкой от толпы при расчете пешеходных мостов.
5. Определяются схемы загружения пролетов (для устоев нагрузка располагается на пролете и устое):
-
"А": нагрузка АК на двух пролетах с тротуарами. Ось первой полосы - на расстоянии 1.5 м от полосы безопасности;
-
"Б": нагрузка АК на двух пролетах без тротуаров. Ось первой полосы- на расстоянии 1.5 м от бордюра;
-
"В": нагрузка АК на одном пролете с тротуарами (при опирании на опору неразрезных пролетов нагрузка АК с тротуарами располагается на отрицательных участках линии влияния ; для устоев, на которые опираются разрезные пролеты, нагрузки по схеме "В" не определяются). Ось первой полосы - на расстоянии 1.5 м от полосы безопасности;
-
"Г": нагрузка АК на одном пролете без тротуаров (при опирании на опору неразрезных пролетов нагрузка АК располагается на отрицательных участках линии влияния ; для устоев, на которые опираются разрезные пролеты, нагрузки по схеме "Г" не определяются ) . Ось первой полосы- на расстоянии 1.5 м от ограждения проезжей части моста;
-
"Д": нагрузка НК-80 (или НГ-60) на двух пролетах. Нагрузка располагается на расстоянии 2.2 м от ограждения проезжей части;
-
"Е": нагрузка НК-80 (или НГ-60) на одном пролете (при опирании на опору неразрезных пролетов нагрузка располагается на отрицательных участках линии влияния; для устоев, на которые опираются разрезные пролеты, нагрузки по схеме "Е" не определяются ) . Ось нагрузки - на расстоянии 1.5 м от ограждения проезжей части моста.
6. Для схем загружения "А" - "Г" определяются сопутствующие нагрузки:
-
поперечные удары;
-
тормозная нагрузка;
-
центробежная нагрузка (если есть).
7. Определяются ветровые нагрузки на пролет и опору вдоль и поперек моста;
8. Для русловых промежуточных опор определяются следующие нагрузки:
-
ледовые нагрузки от первой подвижки льда и от высокого ледохода
-
нагрузка от навала судов вдоль и поперек моста (если указан класс реки ).
9. Если в исходных данных указана сейсмичность больше 6 баллов, то производится расчет сейсмических нагрузок вдоль и поперек моста ( для устоев дополнительно определяется добавка на сейсмическое давление от собственного веса грунта).
10. Согласно приложения 2 СНиП 2.05.03-84 вычисляются сочетания нагрузок. Сочетания сортируются по .4 типа как изложено выше. Типы сочетаний 1 - 4 определяются от расчетных нагрузок.
Если перед расчетом задано сечение не по подошве фундамента, то расчет заканчивается вычислением сочетаний нагрузок в центре заданного сечения; иначе (если задано сечение по подошве фундамента (ростверка) расчет продолжается.
11. Для фундаментов на естественном основании производятся следующие проверки:
-
проверка несущей способности грунта основания;
-
проверка несущей способности подстилающих слоев грунта;
-
проверка фундамента на опрокидывание (положение равнодействующей внешних сил);
-
проверка фундамента на сдвиг;
12. Для свайных фундаментов производится:
-
расчет усилий в сваях;
-
определение экстремальных усилий в сваях для проверок и расчета армирования свай;
-
проверка сваи по грунту на вертикальные нагрузки;
-
проверка сваи по грунту на горизонтальные нагрузки;
-
проверка несущей способности грунта в основании свай (как для условного массивного фундамента);
-
проверка несущей способности подстилающих слоев грунта (как для условного массивного фундамента);
-
проверка несущей способности заделки сваи в скальный грунт (для свай, забуренных в скалу);
Все нагрузки приводятся к центру расчетного сечения.
Данные для расчета опоры и результаты приведены в Приложении В .
Анализ результатов показал, что в данных условиях, достаточно глубины погружения сваи при ее размерах сечения.
Так как были применены опоры элементы, которых имеют типовые решения, в программе «ОПОРА_Х» выполнилась проверка достаточность армирования блока ригеля. В качестве расчетного сечения задается положение верхних сеток на расстоянии 0.778 м от низа ригеля.
Результаты армирования приведены в Приложении Г.
2.2 Расчет и конструирование береговой опоры
Конструкция береговой опоры показана на рисунках 2.2 и 2.3.
Рисунок 2.2 Конструкция береговой опоры. Фасад.
Рисунок 2.3 Конструкция береговой опоры: а – со стороны насыпи,
б – со стороны пролетного строения.
Береговая опора представляет собой столбчатые опоры на сваях-оболочках диаметром 1.6 м с бесплитным фундаментом, объединённых блоками ригеля. Шкафные блоки применены согласно типового 3.503.1-100 выпуск 3. Плиты мягко въезда применены в соответствии с указаниями из типового проекта 3.503.1-96. Столбы впоследствии заполняются бетоном классом B25 по прочности, F300 по морозостойкости, W6 водонепроницаемости.
Береговая опора так же была рассчитана в программе «ОПОРА_Х». Исходные данные и результаты приведены в Приложении Д.
В первом просчете программа показала, что длины свай посчитанных эскизно в Приложении А недостаточно. Длина свай была увеличена и пересчитана. Результаты приведены в Приложении Д.
3. ТЕХНОЛОГИЯ РАБОТ И ОРГАНИЗАЦИЯ СТРОИТЕЛЬСТВА МОСТА
3.1 Сооружение опоры
Перед началом работ по возведению опоры моста рабочая площадка планируется под отметку 413.00, обустраиваются необходимые подъезды к рабочей площадке, съезды для автотранспорта. Размеры рабочей площадки назначены таким образом, чтобы свободно разместить механизмы, необходимые для сооружения опоры. Проводится разбивка осей.
Работы по сооружению промежуточных опор моста ведутся в следующей технологической последовательности
1. Сооружение столбов;
2. Устройство надфундаментной части;
3. Устройство шкафных блоков, деформационных швов для крайних опор.
3.1.1 Сооружение столбов
Стадия №1. Сооружение направляющих каркасов.
Перед началом работ не обходимо уложить ж.б. плиты под кран Liebherr lr 1100. Сооружается направляющий каркас для свай оболочек, из МИК-С, прокатного профиля двутавра №55, с оборудованием ходов и ограждений. Кран устанавливается в рабочее положение.
Стадия №2. Погружение свай-оболочек.
С помощью длниномера привозится за ранее изготовленные блоки свай оболочки объединённые между собой. На сваю-оболочку устанавливается наголовник и ножевая секция, и она подается в направляющий каркас. Далее вибропогружателем PTC 65 HD происходит погружение свай в грунт до отметки 402,456. В соответствии с СНиП III-Б.6-62 «Фундаменты и опоры из свай и оболочек. Шпунтовые ограждения. Правила производства и приемки работ» периодически погружение должно останавливаться для проверки болтовых соединений крепежа. В процессе погружения трос подвески вибропогружателя не должен быть натянут и крюк крана, на котором подвешен вибропогружатель, по мере погружения свай должен опускаться плавно с той же скоростью, с которой погружается свая. При вибропогружении свай-оболочек надлежит вести журнал вибропогружения. К журналу должны быть приложены сводная ведомость и план расположения погруженных свай-оболочек с указанием их номеров, проектных и фактических расстояний между ними, а также величины угла наклона их.














