Для студентов по предмету Механика жидкости и газа (МЖГ или Гидравлика)Вода из точки водозабора насосом подается в бак, из которого перетекает в точку «К». Дано: Z0=100 м; Z1=? м; Z2=93 м; люк Ø 0,5 м; hл=0,3 м; β=45º; Р0Вода из точки водозабора насосом подается в бак, из которого перетекает в точку «К». Дано: Z0=100 м; Z1=? м; Z2=93 м; люк Ø 0,5 м; hл=0,3 м; β=45º; Р0
5,00518161
2020-09-202020-09-20СтудИзба
Вода из точки водозабора насосом подается в бак, из которого перетекает в точку «К». Дано: Z0=100 м; Z1=? м; Z2=93 м; люк Ø 0,5 м; hл=0,3 м; β=45º; Р0=32 КПа (манометрическое); Р1=0,1 бар (вакуумметрическое); Р2=? бар. (абсо-лютное); Zн=50
Описание
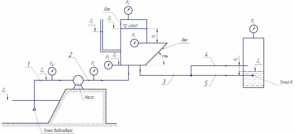
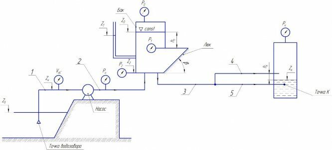
Вода из точки водозабора насосом подается в бак, из которого перетекает в точку «К».
Дано: Z0=100 м; Z1=? м; Z2=93 м; люк Ø 0,5 м; hл=0,3 м; β=45º; Р0=32 КПа (манометрическое); Р1=0,1 бар (вакуумметрическое); Р2=? бар. (абсолютное); Zн=50 м; Zв=? м; Рн=7 ат (манометрическое); Vас=0,4 ат (вакуумметрическое); d1=32 мм; l1=80 м; d2=25 мм; l2=150 м; d3=100 мм; l3=80 м; d4=300 мм; l4=100 м; d5=50 мм; l5=300 м; Zк=? м; Рк=1,5 ат (абсолютное); hк=3 м.
Определить:
- Те величины, которые обозначены знаком вопроса. Величины давлений определить в тех единицах, которые указаны в исходных данных.
- Силу давления воды на люк в стенке бака и глубину погружения точки приложения этой силы (центр давления).
- Расходы на участках водоводов до бака и режимы движения воды в них.
- Какова будет скорость истечения воды из отверстия расположенного в дне бака.
- Определить увеличение давления в водоводе 2 при аварийной остановке насоса (трубы из стали).
-
Характеристики решённой задачи
Программы
Просмотров
17
Размер
159,56 Kb
Список файлов
20.06.18 .docx
