Для студентов по предмету Механика жидкости и газа (МЖГ или Гидравлика)Сосуд высотой h=1,2 м, полностью заполненный водой (см. рисунок), накрывают сверху поршнем (диаметр поршня 0,1 м, масса mп.=1,5 кг) и устанавливают наСосуд высотой h=1,2 м, полностью заполненный водой (см. рисунок), накрывают сверху поршнем (диаметр поршня 0,1 м, масса mп.=1,5 кг) и устанавливают на
5,00518038
2020-08-272020-08-27СтудИзба
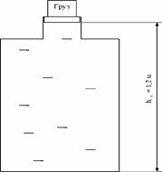
Сосуд высотой h=1,2 м, полностью заполненный водой (см. рисунок), накрывают сверху поршнем (диаметр поршня 0,1 м, масса mп.=1,5 кг) и устанавливают на него сверху груз массой mгр.=5 кг. Определить гидростатическое, избыточное и абсолютное давление на
Описание
Сосуд высотой h=1,2 м, полностью заполненный водой (см. рисунок), накрывают сверху поршнем (диаметр поршня 0,1 м, масса mп.=1,5 кг) и устанавливают на него сверху груз массой mгр.=5 кг. Определить гидростатическое, избыточное и абсолютное давление на дно сосуда (сжимаемостью воды пренебречь). ![]()

Характеристики решённой задачи
Просмотров
87
Качество
Идеальное компьютерное
Размер
23,97 Kb
Список файлов
