Для студентов МГТУ им. Н.Э.Баумана по предмету Детали машин (ДМ)Одноступенчатый планетарный редуктор с цепной передачей, курсовой проект, 3d модель в инвенторе+листы+рпзОдноступенчатый планетарный редуктор с цепной передачей, курсовой проект, 3d модель в инвенторе+листы+рпз
5,0051
2021-04-072021-04-07СтудИзба
Курсовая работа: Одноступенчатый планетарный редуктор с цепной передачей, курсовой проект, 3d модель в инвенторе+листы+рпз
Описание
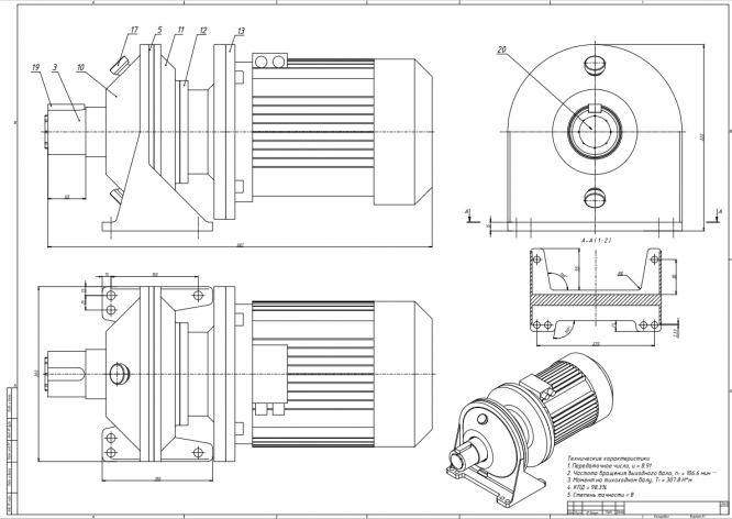
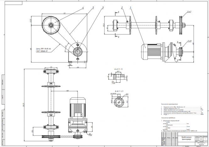
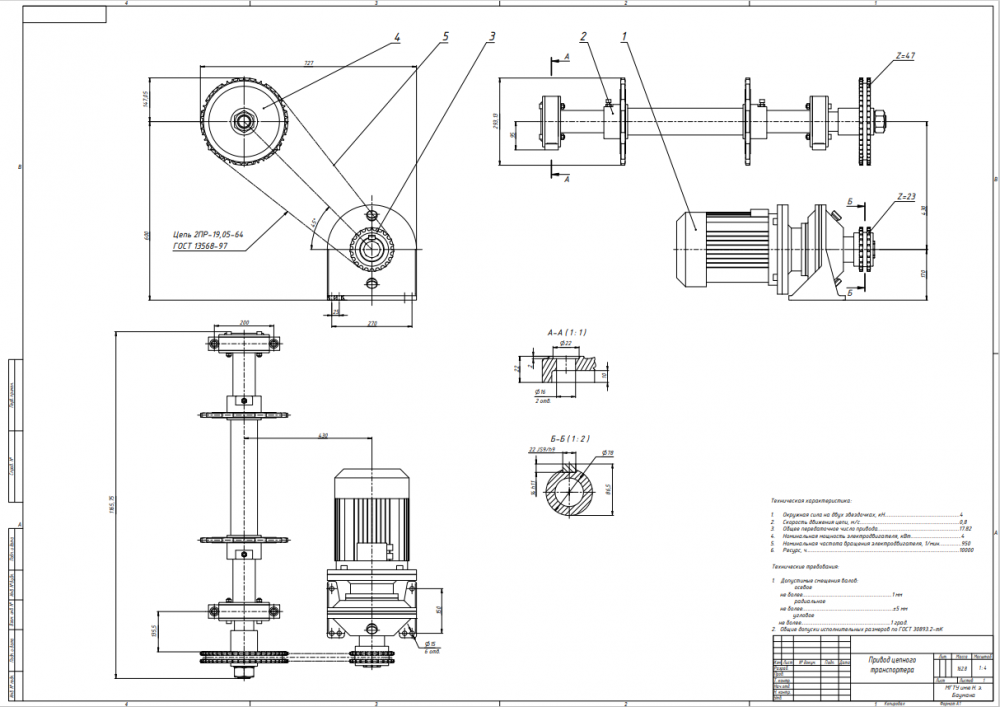
Курсовой проект, сделанный на совесть, с моделями в инвенторе 19, листами ПДФ, готовой РПЗ и необходимыми спецификациями.
В файле:
-фотография задания
-папка "Файлы инвентора" где находятся 3d модели редуктора, приводного вала и привода в сборе, все листы в dwg формате,которые можно отредактировать.
- папка "Листы в ПДФ, РПЗ, спецификации", где находятся листы формата ПДФ, две спецификации в формате файла Excel.
Пример двух чертежей из 6-ти прилагаю.
![]()
В файле:
-фотография задания
-папка "Файлы инвентора" где находятся 3d модели редуктора, приводного вала и привода в сборе, все листы в dwg формате,которые можно отредактировать.
- папка "Листы в ПДФ, РПЗ, спецификации", где находятся листы формата ПДФ, две спецификации в формате файла Excel.
Пример двух чертежей из 6-ти прилагаю.



Характеристики курсовой работы
Предмет
Учебное заведение
Семестр
Просмотров
62
Качество
Идеальное компьютерное
Размер
41,76 Mb